Bénéficiez des services de nos partenaires locaux soigneusement sélectionnés
pour vous accompagner dans votre parcours d'achat immobilier

Maison 2 chambres centre de Plancoët

— Plancoet 22130 —
157 500 €
59 m² / 132 m²
4 pièces
parkingjardin

Nos partenaires locaux
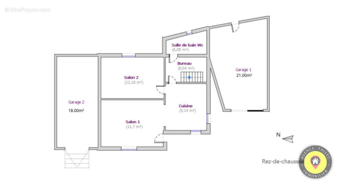
EXCLUSIVITÉ TALLEC IMMOBILIER, A proximité immédiate des commerces et de la gare, cette maison lumineuse d'environ 59,56 m² offre un cadre de vie pratique et agréable, idéal pour une résidence principale ou un investissement locatif. Au rez-de-chaussée, vous découvrirez : -un salon de 11,70 m², -une cuisine ouverte sur le séjour de 9,14 m², -une chambre de 12,18 m², -un bureau de 8,64 m², -une salle d'eau avec WC de 6,05 m². A l'étage : -une chambre de 9,05 m², -un dressing de 2,80 m². L'ensemble est complété par deux garages fermés d'environ 16 m² et 21 m², ainsi qu'une cour à l'arrière, idéale pour profiter d'un extérieur au calme. Maison fonctionnelle, lumineuse et bien située, proche de toutes les commodités. (5.00 % honoraires TTC à la charge de l'acquéreur.)
Voir plus

Référence: 61
Honoraires d'agence de 5% à la charge de l'acquéreur
Barème des honoraires
DPE
A
B
C
D
E
F
G
GES
A
B
C
D
E
F
G
Maison à PLANCOET
Maison à PLANCOET
Maison à PLANCOET
Maison à PLANCOET
Maison à PLANCOET
Maison à PLANCOET
Maison à PLANCOET
Maison à PLANCOET
Maison à PLANCOET
Maison à PLANCOET
Maison à PLANCOET
Maison à PLANCOET
Maison à PLANCOET
Maison à PLANCOET
Maison à PLANCOET
Géorisques

Les informations sur les risques auxquels ce bien est exposé sont disponibles sur le site Géorisques : www.georisques.gouv.fr

Ce site est protégé par hCaptcha Politique de confidentialité et Conditions d’utilisation s’appliquent.