Bénéficiez des services de nos partenaires locaux soigneusement sélectionnés
pour vous accompagner dans votre parcours d'achat immobilier

T4 de 67m2 Paul Santy

— Lyon-8e 69008 —
215 000 €
67 m²
4 pièces
parkingbalcon/terrasse

Nos partenaires locaux
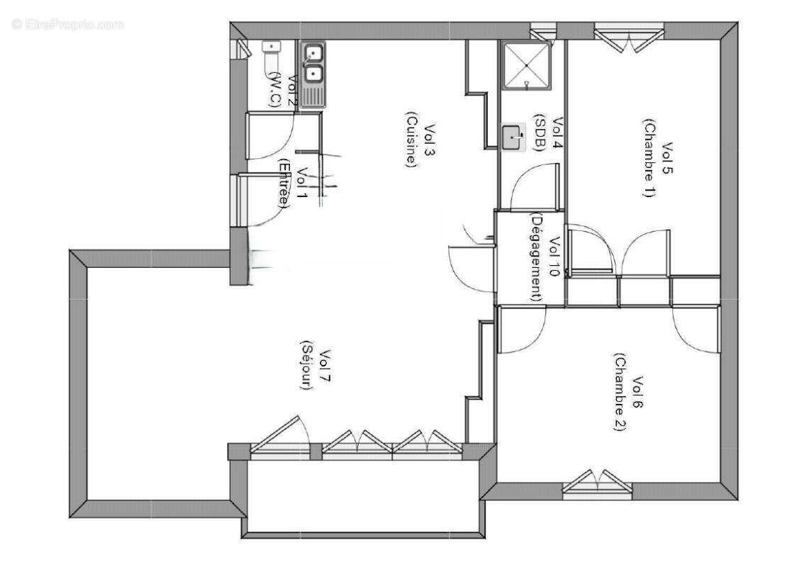
Votre agence GINET Immobilier a le plaisir de vous présenter cet appartement T4, avec deux chambres, de 67m2, idéalement situé au 2ème étage d'une résidence calme et en retrait de la rue.

Dans le secteur de Santy La Plaine, à deux pas de la place Général André et de toutes ses commodités (transports, commerces, écoles), cette adresse offre un cadre de vie agréable et pratique au quotidien.

L'appartement, rénové, traversant et baigné de lumière, se compose d'un séjour - salle à manger ouvrant sur un balcon, d'une cuisine ouverte, de deux chambres, d'une salle d'eau et de toilettes séparées.

Une cave vient compléter ce bien.
La copropriété dispose également d'un stationnement collectif pour plus de confort.

Pour organiser une visite, contactez Antoine Madelrieux O698301684
Copropriété de 264 lots - dont 88 lots habitation.

Charges annuelles : 964 euros.
Les informations sur les risques auxquels ce bien est exposé sont disponibles sur le site Géorisques : www. georisques. gouv. fr
Voir plus

Référence: 12309A1
Bien en copropriété. Nombre de lots : 264. Charges de copropriété : 80 €.
Honoraires à la charge du vendeur.
DPE
A
B
C
D
E
F
G
GES
A
B
C
D
E
F
G
Appartement à LYON-8E
Appartement à LYON-8E
Appartement à LYON-8E
Appartement à LYON-8E
Appartement à LYON-8E
Appartement à LYON-8E
Appartement à LYON-8E
Appartement à LYON-8E
Appartement à LYON-8E
Appartement à LYON-8E
Appartement à LYON-8E
Appartement à LYON-8E
Géorisques

Les informations sur les risques auxquels ce bien est exposé sont disponibles sur le site Géorisques : www.georisques.gouv.fr

Ce site est protégé par hCaptcha Politique de confidentialité et Conditions d’utilisation s’appliquent.