Bénéficiez des services de nos partenaires locaux soigneusement sélectionnés
pour vous accompagner dans votre parcours d'achat immobilier

Voir tous les partenaires locaux

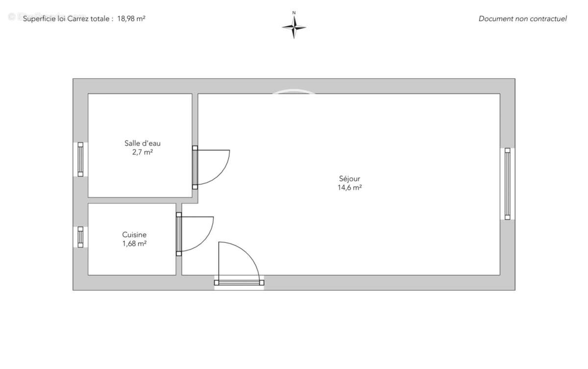
Paris 6e - CHERCHE-MIDI / SEVRES BABYLONE- Studio à vendre - 18,98m² Carrez - Étage élevé - Vue dégagée.

— Paris-6e 75006 —
335 000 €
18 m²
1 pièce
ascenseuraccès handicapé

Nos partenaires locaux
Situé au cœur d’un quartier prisé, au sixième étage par ascenseur d’un bel immeuble Art déco bien entretenu, ce charmant studio de 18,98m² loi Carrez bénéficie d’une agréable luminosité.

Traversant, ce bien se compose d’une pièce principale baignée de lumière, d’une cuisine indépendante fonctionnelle, ainsi que d’une salle de douche avec toilettes.

L’appartement, en bon état général, offre un cadre de vie calme et ensoleillé, idéal pour un pied-à-terre ou un investissement locatif de qualité.

Son emplacement recherché, à proximité immédiate des commerces, des transports et de l’effervescence de Saint-Germain des Prés, en fait un bien rare sur le marché.
Voir plus

Référence: 2034CHMSAR
Barème des honoraires
DPE
A
B
C
D
E
F
G
GES
A
B
C
D
E
F
G
Appartement à PARIS-6E
Appartement à PARIS-6E
Appartement à PARIS-6E
Appartement à PARIS-6E
Appartement à PARIS-6E
Appartement à PARIS-6E
Appartement à PARIS-6E
Appartement à PARIS-6E
Appartement à PARIS-6E
Appartement à PARIS-6E
Appartement à PARIS-6E
Appartement à PARIS-6E
Appartement à PARIS-6E
Appartement à PARIS-6E
Géorisques

Les informations sur les risques auxquels ce bien est exposé sont disponibles sur le site Géorisques : www.georisques.gouv.fr

Ce site est protégé par hCaptcha Politique de confidentialité et Conditions d’utilisation s’appliquent.