Bénéficiez des services de nos partenaires locaux soigneusement sélectionnés
pour vous accompagner dans votre parcours d'achat immobilier

Commerce 71 m² à Annecy

— Annecy 74000 —
455 000 €
71 m²

Nos partenaires locaux
Idéalement situé au coeur du très recherché triangle d'or d'Annecy, à proximité immédiate du lac et du secteur emblématique des Nouvelles Galeries, ce local commercial neuf bénéficie d'un emplacement stratégique de premier ordre.

Implanté à un carrefour particulièrement passant, il profite d'une visibilité exceptionnelle ainsi que d'un flux constant, aussi bien piéton qu'automobile. Cette implantation garantit une forte exposition pour toute activité souhaitant s'inscrire dans un environnement urbain dynamique et à forte attractivité commerciale.

Le bien s'intègre au sein d'un programme immobilier neuf porté par un promoteur reconnu pour la qualité de ses réalisations, offrant une architecture soignée et une véritable valeur patrimoniale sur le long terme.

Le local est livré brut de béton, permettant une liberté totale d'aménagement selon votre concept. Les fluides sont en attente, avec notamment l'alimentation en eau, les évacuations, l'électricité ainsi qu'une gaine de ventilation en toiture, facilitant l'installation de nombreuses activités. La hauteur sous plafond permet d'envisager un aménagement qualitatif et des volumes agréables pour accueillir votre clientèle.

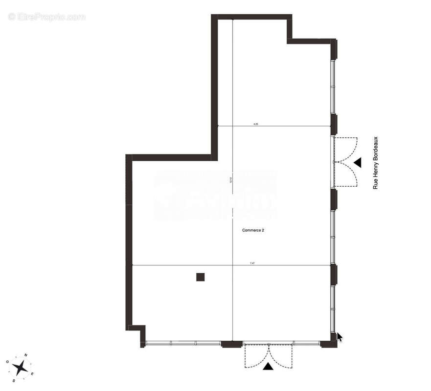
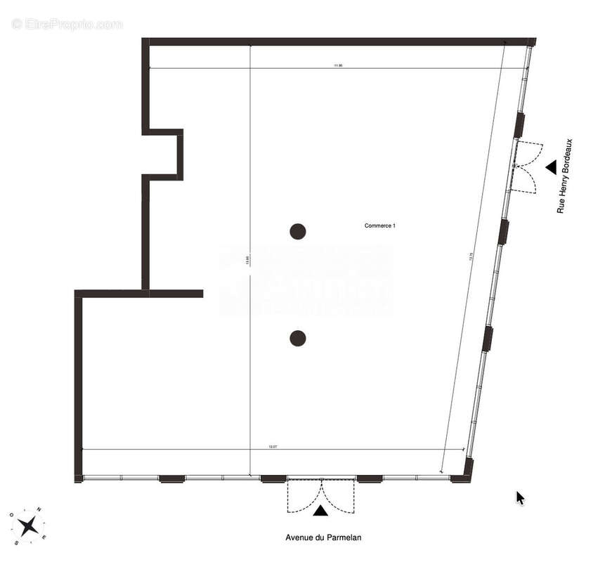
Surfaces disponibles :
- Commerce 1 : 158,29 m²
- Commerce 2 : 71,46 m²

Ces locaux conviendront parfaitement à une activité de commerce, de service ou à une enseigne souhaitant s'implanter dans un secteur premium, bénéficiant d'une excellente image et d'un fort pouvoir d'attractivité. Leur positionnement en coeur de ville, à proximité immédiate du lac, en fait une adresse particulièrement recherchée, aussi bien par les enseignes locales que nationales.

La combinaison entre emplacement stratégique, visibilité, accessibilité et qualité du programme en fait une opportunité rare sur le marché annécien, que ce soit pour une implantation ou un investissement à forte valeur patrimoniale.

Prix de vente :
- Lot 1 (158,29 m²) : 1 005 000 € HT
- Lot 2 (71,46 m²) : 455 000 € HT

Disponibilité : livraison prévisionnelle : 4? trimestre 2027

Contact : [Coordonnées masquées]

AVINIM RESEAU BROKERS est le premier cabinet immobilier d'entreprise structuré en réseau de mandataires. Nous maillons avec notre équipe de 80 Brokers une grande partie du territoire national pour accompagner nos entreprises clientes dans leurs recherches de commerces, bureaux, locaux d'activités, immeubles et fonciers.
www.reseau-brokers.com

Honoraires à la charge du vendeur. DPE en cours. Les informations sur les risques auxquels ce bien est exposé sont disponibles sur le site Géorisques : georisques.gouv.fr.

Votre conseiller AVINIM RESEAU BROKERS : Nicolas PARROCHE
Agent commercial (Entreprise individuelle)
RSAC 478800212
RCP 7953190/S17093745
Voir plus

Référence: VP51200-BROKERS
Honoraires à la charge du vendeur.
Barème des honoraires
Commerce à ANNECY
Commerce à ANNECY
Commerce à ANNECY
Commerce à ANNECY
Géorisques

Les informations sur les risques auxquels ce bien est exposé sont disponibles sur le site Géorisques : www.georisques.gouv.fr

Ce site est protégé par hCaptcha Politique de confidentialité et Conditions d’utilisation s’appliquent.

En poursuivant votre navigation sans modifier vos paramètres, vous acceptez l'utilisation de cookies susceptibles de réaliser des statistiques de visite. Cliquez ici pour plus d'informations