Bénéficiez des services de nos partenaires locaux soigneusement sélectionnés
pour vous accompagner dans votre parcours d'achat immobilier

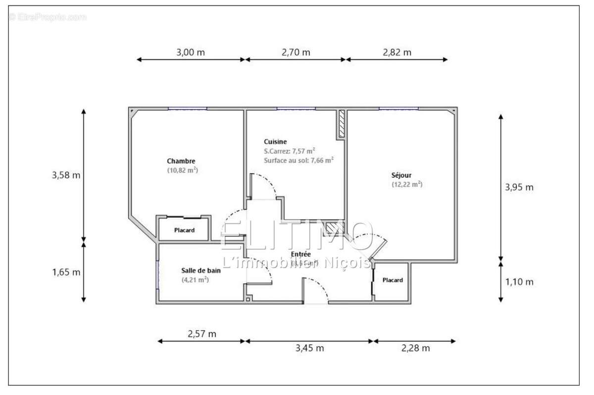
Appartement 43 m² à Nice

— Nice 06100 —
178 000 €
43 m²
2 pièces

Nos partenaires locaux
2 Pièces - Bas Gairaut

Découvrez ce charmant appartement de type 2 Pièces de 43 m², bien aménagées. Il offre un espace de vie lumineux grâce à ses grandes baies vitrées, une chambre accueillante avec placard, une cuisine indépendante et une salle de bains fonctionnelle avec WC.
Le bien est situé dans une Rue calme et résidentiel et gardant une proximité des commerces et des transports offrant un accès au centre-ville facile ce qui rend l'appartement encore plus attrayant.
Voir plus

Référence: 1062V1003A
Bien en copropriété. Nombre de lots : 24.
Honoraires à la charge de l'acquéreur.
Barème des honoraires
DPE
A
B
C
D
E
F
G
GES
A
B
C
D
E
F
G
Appartement à NICE
Appartement à NICE
Appartement à NICE
Appartement à NICE
Appartement à NICE
Appartement à NICE
Appartement à NICE
Appartement à NICE
Géorisques

Les informations sur les risques auxquels ce bien est exposé sont disponibles sur le site Géorisques : www.georisques.gouv.fr

Ce site est protégé par hCaptcha Politique de confidentialité et Conditions d’utilisation s’appliquent.

En poursuivant votre navigation sans modifier vos paramètres, vous acceptez l'utilisation de cookies susceptibles de réaliser des statistiques de visite. Cliquez ici pour plus d'informations