Bénéficiez des services de nos partenaires locaux soigneusement sélectionnés
pour vous accompagner dans votre parcours d'achat immobilier

Maison * Coeur Roucas * Garage Double

— Marseille-7e 13007 —
790 000 €
95 m²
4 pièces
parkingbalcon/terrasse

Nos partenaires locaux
Au cœur du Roucas Blanc, découvrez cette maison indépendante sans mitoyenneté, offrant intimité et une vue remarquable sur Notre-Dame de la Garde.

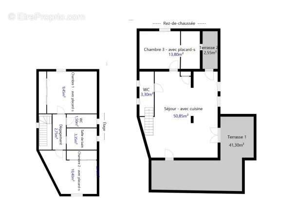
Sur deux niveaux, la maison se compose comme suit :

Au rez-de-chaussée : un beau séjour lumineux, une cuisine, une suite parentale, ainsi qu’un WC indépendant.

À l’étage : deux chambres, une salle de bains et un WC séparé.

Le bien bénéficie d’atouts rares dans le secteur : un box double et une grande cave, idéals pour le stationnement et le stockage.

La maison séduit également par sa façade vert sauge, originale et pleine de caractère, qui lui confère une identité unique.
Implantée sur un terrain en restanque, au format volontairement plus étroit, l’extérieur offre un potentiel d’aménagement à exploiter selon vos envies.

Un bien singulier, situé dans l’un des quartiers les plus prisés de Marseille, alliant vue, indépendance et potentiel, à proximité immédiate de la plage des Prophètes, des écoles et des commodités.

Joëlline
[Coordonnées masquées]
Voir plus

Référence: JGE-BOISSACRE
Barème des honoraires
DPE
A
B
C
D
E
F
G
GES
A
B
C
D
E
F
G
Maison à MARSEILLE-7E
Maison à MARSEILLE-7E
Maison à MARSEILLE-7E
Maison à MARSEILLE-7E
Maison à MARSEILLE-7E
Maison à MARSEILLE-7E
Maison à MARSEILLE-7E
Maison à MARSEILLE-7E
Maison à MARSEILLE-7E
Maison à MARSEILLE-7E
Maison à MARSEILLE-7E
Maison à MARSEILLE-7E
Maison à MARSEILLE-7E
Maison à MARSEILLE-7E
Maison à MARSEILLE-7E
Maison à MARSEILLE-7E
Maison à MARSEILLE-7E
Maison à MARSEILLE-7E
Maison à MARSEILLE-7E
Maison à MARSEILLE-7E
Maison à MARSEILLE-7E
Maison à MARSEILLE-7E
Maison à MARSEILLE-7E
Maison à MARSEILLE-7E
Géorisques

Les informations sur les risques auxquels ce bien est exposé sont disponibles sur le site Géorisques : www.georisques.gouv.fr

Ce site est protégé par hCaptcha Politique de confidentialité et Conditions d’utilisation s’appliquent.