Bénéficiez des services de nos partenaires locaux soigneusement sélectionnés
pour vous accompagner dans votre parcours d'achat immobilier

Ensemble immobilier avec deux habitations 316 m2 habitables

— La Chaise-Dieu 43160 —
249 900 €
316 m² / 547 m²
16 pièces
parkingbalcon/terrassejardin

Nos partenaires locaux
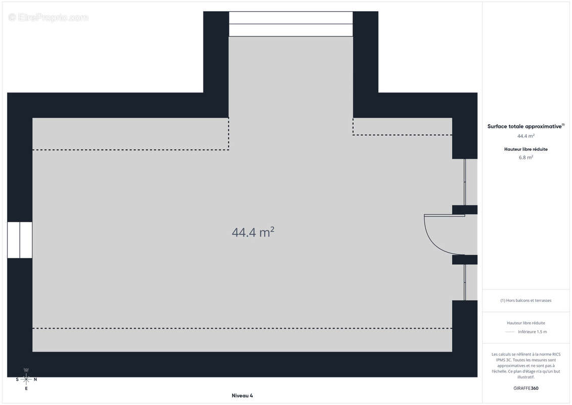
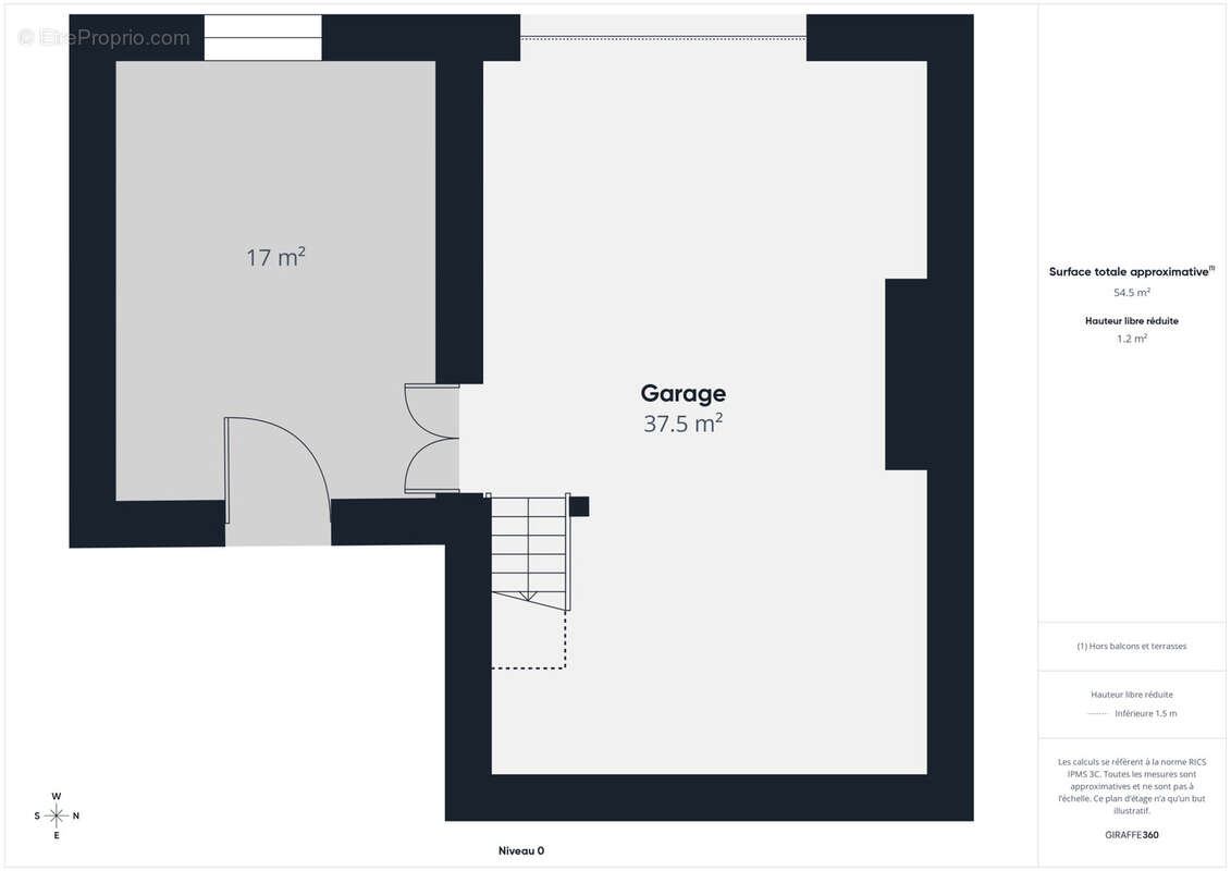
A vendre chez Dohm immobilier, en exclusivité, ensemble immobilier avec deux logements pour un total de 316 M2 sur parcelles terrain de 547 M2 . Premier logement sur 4 niveaux avec 194,22 M2 habitables . Niveau principal :cuisine indépendante , séjour, salon, salle bien être, salle de sport et garage . A l'étage : 4 chambres , salle d'eau et wc + grenier aménageable en partie. Au sous-sol : buanderie, salle de jeux et garage . Chauffage central au fuel et granulés de bois, double vitrage . Enorme potentiel pour cette habitation qui se prolonge sur un terrain avec vue panoramique . Second logement sur 2 niveaux avec 121,78 M2 . Niveau principal : Cuisine indépendante , séjour, 2 chambres dont une donnant une grande terrasse, salle de bains, wc avec à l'étage combles et une grande pèce de 30 M2 . Chauffage central au fuel; tout à l'égout . Potentiel intéressant pour ce bien indépendant de l'habitation principale pour générer locatif saisonnier ou annuel ou agrandir le premier logement .Pour plus de renseignements veuillez contacter Jean-Claude Faure au O6 32 52 98 31. Agent commercial entrepreneur individuel (RSAC 326848678)Un dossier est disponible sur les risques environnementaux pour cette propriété à première demande. Il peut également être trouvé en recherchant le village sur ce site georisques.gouv.fr Pour plus de renseignements contactez nous. SAS FF Immobilier conseils 63 10 place Saint Jean 63600 Ambert Gérant : Mr Faure Guillaume Numéro de carte professionnelle CPI 63[Coordonnées masquées]00 001- CCI de Puy de Dôme valable jusqu’au 23/11/2025 Les honoraires sont à la charge du vendeur.
Cette annonce vous est proposée par Faure Jean Claude - EI - NoRSAC: 326848678, Enregistré au Greffe du tribunal de commerce de Le Puy-en-Velay Les informations sur les risques auxquels le bien est exposé sont disponibles sur le site Géorisques : www.georisques.gouv.fr
Voir plus

Honoraires à la charge du vendeur.
Barème des honoraires
DPE
A
B
C
D
E
F
G
GES
A
B
C
D
E
F
G
Maison à LA CHAISE-DIEU
Maison à LA CHAISE-DIEU
Maison à LA CHAISE-DIEU
Maison à LA CHAISE-DIEU
Maison à LA CHAISE-DIEU
Maison à LA CHAISE-DIEU
Maison à LA CHAISE-DIEU
Maison à LA CHAISE-DIEU
Maison à LA CHAISE-DIEU
Maison à LA CHAISE-DIEU
Maison à LA CHAISE-DIEU
Maison à LA CHAISE-DIEU
Maison à LA CHAISE-DIEU
Maison à LA CHAISE-DIEU
Maison à LA CHAISE-DIEU
Maison à LA CHAISE-DIEU
Maison à LA CHAISE-DIEU
Maison à LA CHAISE-DIEU
Maison à LA CHAISE-DIEU
Maison à LA CHAISE-DIEU
Maison à LA CHAISE-DIEU
Maison à LA CHAISE-DIEU
Maison à LA CHAISE-DIEU
Maison à LA CHAISE-DIEU
Maison à LA CHAISE-DIEU
Maison à LA CHAISE-DIEU
Maison à LA CHAISE-DIEU
Maison à LA CHAISE-DIEU
Maison à LA CHAISE-DIEU
Maison à LA CHAISE-DIEU
Maison à LA CHAISE-DIEU
Maison à LA CHAISE-DIEU
Maison à LA CHAISE-DIEU
Maison à LA CHAISE-DIEU
Maison à LA CHAISE-DIEU
Maison à LA CHAISE-DIEU
Maison à LA CHAISE-DIEU
Maison à LA CHAISE-DIEU
Géorisques

Les informations sur les risques auxquels ce bien est exposé sont disponibles sur le site Géorisques : www.georisques.gouv.fr

Ce site est protégé par hCaptcha Politique de confidentialité et Conditions d’utilisation s’appliquent.

En poursuivant votre navigation sans modifier vos paramètres, vous acceptez l'utilisation de cookies susceptibles de réaliser des statistiques de visite. Cliquez ici pour plus d'informations