Bénéficiez des services de nos partenaires locaux soigneusement sélectionnés
pour vous accompagner dans votre parcours d'achat immobilier

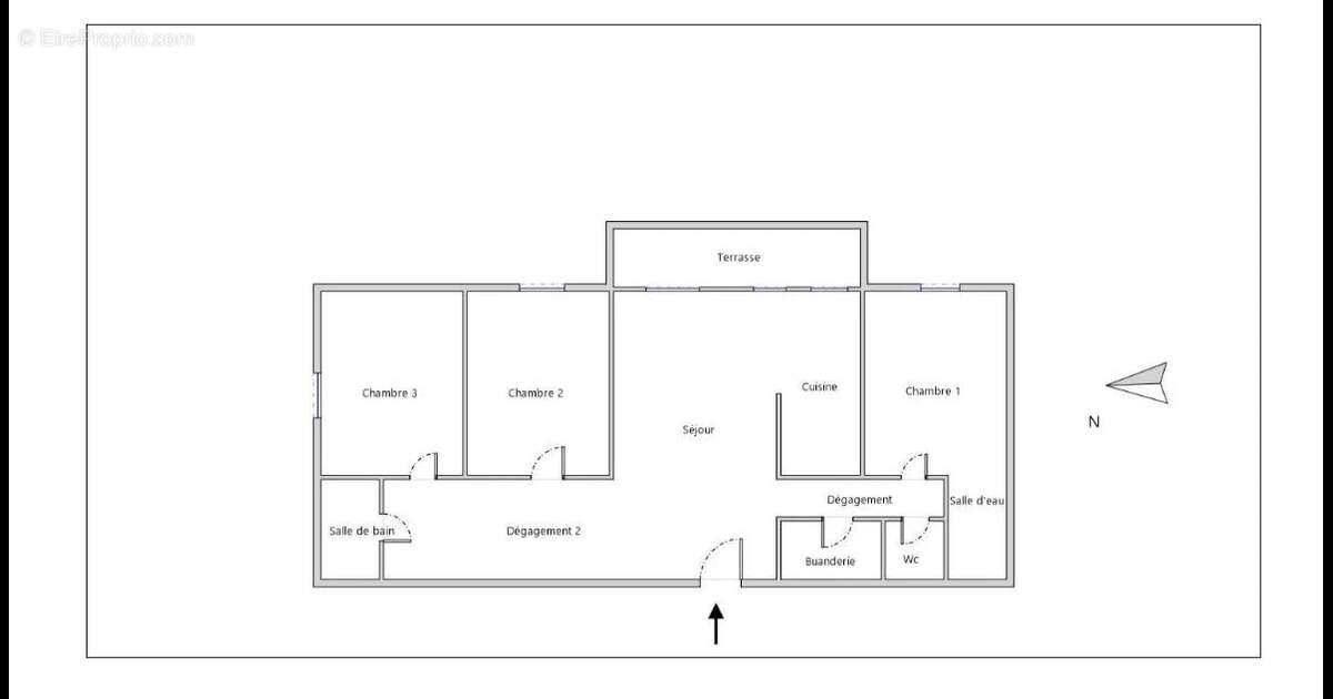
4 pièces – Dernier étage – 86,42m²

— Frejus 83600 —
286 000 €
86 m²
4 pièces
parkingbalcon/terrasseascenseur

Nos partenaires locaux
Situé au dernier étage, cet appartement lumineux offre de beaux volumes et un espace de vie agréable, facile à aménager pour un quotidien confortable.

Il se compose de 3 chambres, 2 salles de bain et 2 toilettes. Vous bénéficierez également de la climatisation réversible, d’une piscine dans la copropriété et d’un parking collectif à proximité immédiate.

Une grande terrasse avec vue dégagée vient compléter le bien, idéale pour profiter de l’extérieur.

Emplacement pratique, proche de toutes commodités :
– À 900 m de la gare de Fréjus
– À 600 m du centre-ville
– À 5 minutes en voiture des plages

Un appartement fonctionnel et bien situé, parfait pour une vie confortable au quotidien. Vous souhaitez visiter ou simplement avoir plus d'informations sur le bien ? Contactez vite votre agent Home Immo 06 Alysson KLOPP [Coordonnées masquées] [Coordonnées masquées]
Voir plus

Référence: 86916261
Barème des honoraires
DPE
A
B
C
D
E
F
G
GES
A
B
C
D
E
F
G
Appartement à FREJUS
Appartement à FREJUS
Appartement à FREJUS
Appartement à FREJUS
Appartement à FREJUS
Appartement à FREJUS
Appartement à FREJUS
Appartement à FREJUS
Appartement à FREJUS
Appartement à FREJUS
Appartement à FREJUS
Appartement à FREJUS
Appartement à FREJUS
Appartement à FREJUS
Appartement à FREJUS
Géorisques

Les informations sur les risques auxquels ce bien est exposé sont disponibles sur le site Géorisques : www.georisques.gouv.fr

Ce site est protégé par hCaptcha Politique de confidentialité et Conditions d’utilisation s’appliquent.

En poursuivant votre navigation sans modifier vos paramètres, vous acceptez l'utilisation de cookies susceptibles de réaliser des statistiques de visite. Cliquez ici pour plus d'informations