Bénéficiez des services de nos partenaires locaux soigneusement sélectionnés
pour vous accompagner dans votre parcours d'achat immobilier

Appartement

— Paris-17e 75017 —
1 350 000 €
120 m²
4 pièces
parkingbalcon/terrasseascenseur

Nos partenaires locaux
Paris XVII TERNES / NIEL - Appartement 4 pièces LUXUEUSEMENT RENOVE avec Extérieurs, cave & parking

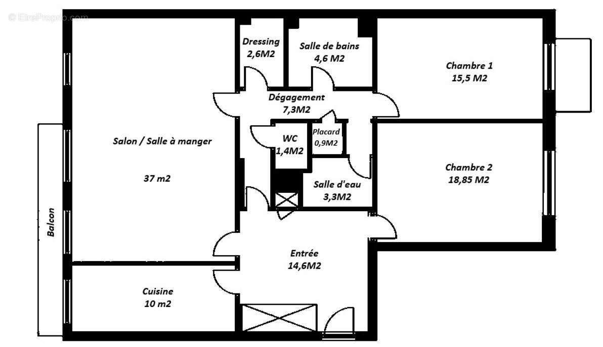
Joëlle Perrody mandataire indépendante du réseau Efficity vous présente un SUPERBE APPARTEMENT de 120m2 (surface pondérée, 116m2 Loi carrez + 2 balcons - 6m2) récemment rénové par architecte, TRAVERSANT, LUMINEUX et CALME au 2ème étage d'une résidence de grand standing, parfaitement entretenue et sécurisée (gardien).

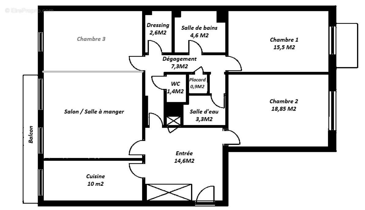
Entièrement climatisé, ce bien se compose d'une entrée avec dressing qui dessert coté rue une cuisine dinatoire équipée (Bulthaup) et l'espace de vie de 37m2, avec balcon, lumineux grâce à ses 3 porte-fenêtres. La 3ème chambre présente à l'origine peut être facilement recréée grâce à une simple cloison, de même que la cuisine peut aisément être réunie avec le salon.
Les 2 chambres sont très confortables (19 et 15,5m2), au calme sur jardin et ensoleillées. L'une bénéficie d'un second balcon.
Ce bien dispose également d'une salle de bains, d'une salle d'eau, de toilettes séparées et de 2 dressings supplémentaires.

Ses atouts sont nombreux :

- Un agencement harmonieux et une rénovation contemporaine élégante, à la fois de grande qualité, sobre et fonctionnelle (parquet massif, éclairages, climatisation, alarme…),
- Une belle luminosité constante (double exposition),
- Un excellent DPE en D,
- Deux espaces extérieurs.

Une cave et une place de parking (en option) complètent ce bien de grand standing.

L'immeuble se situe dans l'un des secteurs les plus prisés du 17ème arrondissement, proche de tous commerces et des écoles dans le triangle Niel / Courcelles / Wagram. Il se trouve plus précisément à 6' à pied du marché Poncelet et à moins de 10' du Parc Monceau.
Très proche également des différents campus de l'EIB.

Extrêmement bien desservi par les transports, il se situe entre les métros Ternes (L2) et Pereire (L3 & RER C), et à 10' de Charles de Gaulle - Etoile (RER A, L1,2 & 6).
De nombreux bus à proximité immédiate.

Une visite virtuelle complète est disponible sur demande.
Les informations sur les risques auxquels ce bien est exposé sont disponibles sur le site Georisque : georisques. gouv. fr
Joelle Perrody - EI - est Agent Commercial mandataire en immobilier, immatriculé au Registre Spécial des Agents Commerciaux du Tribunal de Commerce de Paris sous le n°883216384.
Siège social du mandant : effiCity, 48 avenue de Villiers - 75017 PARIS - Société par Actions Simplifiée, société au capital de 132 373,05 euros, immatriculée au RCS Paris 497 617 746 et titulaire de la Carte professionnelle CPI 75[Coordonnées masquées]02 025 - CCI Paris IDF - Caisse de Garantie : GALIAN Assurances 89 rue de la Boétie 75008 Paris
Voir plus

Référence: 213012
Bien en copropriété. Nombre de lots : 90. Charges de copropriété : 608 €.
Honoraires d'agence de 3.5% à la charge de l'acquéreur
Barème des honoraires
DPE
A
B
C
D
E
F
G
GES
A
B
C
D
E
F
G
Appartement à PARIS-17E
Appartement à PARIS-17E
Appartement à PARIS-17E
Appartement à PARIS-17E
Appartement à PARIS-17E
Appartement à PARIS-17E
Appartement à PARIS-17E
Appartement à PARIS-17E
Appartement à PARIS-17E
Appartement à PARIS-17E
Appartement à PARIS-17E
Appartement à PARIS-17E
Appartement à PARIS-17E
Appartement à PARIS-17E
Appartement à PARIS-17E
Appartement à PARIS-17E
Appartement à PARIS-17E
Appartement à PARIS-17E
Appartement à PARIS-17E
Appartement à PARIS-17E
Géorisques

Les informations sur les risques auxquels ce bien est exposé sont disponibles sur le site Géorisques : www.georisques.gouv.fr

Ce site est protégé par hCaptcha Politique de confidentialité et Conditions d’utilisation s’appliquent.