Bénéficiez des services de nos partenaires locaux soigneusement sélectionnés
pour vous accompagner dans votre parcours d'achat immobilier

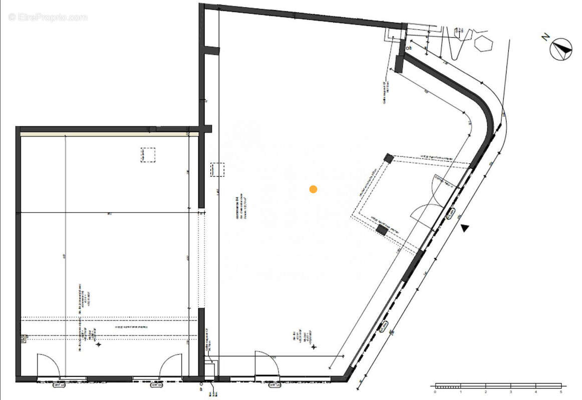
Commerce 190 m² à Avrille

— Avrille 49240 —
444 140 €
190 m²

Nos partenaires locaux
A vendre local commercial d'angle Les Hauts Saint-Aubin
Commune d'Avrillé Quartier Bois du Roy

Local commercial d'angle d'environ 190 m² en rez-de-chaussée
avec linéaire vitrine de 16 mètres et plusieurs accès en façade compatibles PMR.
La cellule commerciale est brut de béton , fourreaux en attente, huisseries posées.
L'aménagement à prévoir en fonction de l'activité.

Idéalement positionné dans le quartier Bois du Roy, à deux pas du centre-ville d'Avrillé, à 10 min en voiture du centre-ville d'Angers, l'emplacement s'inscrit dans un environnement résidentiel dense avec une zone de chalandise captive de près de 15 000 habitants.
Le secteur est desservi par le tramway ligne A (arrêts Plateau de la Mayenne et/ou Bois du Roy) ainsi que le Bus ligne 7.

Vous souhaitez investir ou implanter votre activité dans un quartier en pleine expansion sur le Territoire Angevin ?
Contactez-nous pour plus d'information.

Conditions de vente :
Prix de vente HT net vendeur 419 000 €
Honoraires de commercialisation à la charge de l'acquéreur 6% HT en sus du prix de vente HT net vendeur, soit 25 140 € HT.

Honoraires inclus de 6% HT à la charge de l'acquéreur. Prix hors honoraires 419 000 € HT. Dans une copropriété de 1 lots. Aucune procédure n'est en cours. Non soumis au DPE. Les informations sur les risques auxquels ce bien est exposé sont disponibles sur le site Géorisques : georisques.gouv.fr.

Votre conseiller LOCAUX-BUREAUX-COMMERCES : Nicolas FOULON
Agent commercial (Entreprise individuelle)
RSAC ADC 44[Coordonnées masquées]00 873
RCP RCACO-20-016231 GALIAN SMA BTP.
LOCAUX-BUREAUX-COMMERCES [Coordonnées masquées]
Voir plus

Référence: NFV1504A-LBC44
Bien en copropriété. Nombre de lots : 1.
Honoraires d'agence de 6% à la charge de l'acquéreur
Barème des honoraires
Commerce à AVRILLE
Commerce à AVRILLE
Commerce à AVRILLE
Commerce à AVRILLE
Commerce à AVRILLE
Commerce à AVRILLE
Commerce à AVRILLE
Commerce à AVRILLE
Géorisques

Les informations sur les risques auxquels ce bien est exposé sont disponibles sur le site Géorisques : www.georisques.gouv.fr

Ce site est protégé par hCaptcha Politique de confidentialité et Conditions d’utilisation s’appliquent.