Bénéficiez des services de nos partenaires locaux soigneusement sélectionnés
pour vous accompagner dans votre parcours d'achat immobilier

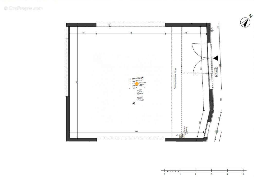
Commerce 60 m² à Avrille

— Avrille 49240 —
148 000 €
60 m²
accès handicapé

Nos partenaires locaux
A vendre Commune d'Avrillé Quartier Bois du Roy

Local commercial d'angle d'environ 60 m² en rez-de-chaussée
avec accès PMR en façade.
La cellule commerciale est brut de béton , fourreaux en attente, huisseries posées.
L'aménagement à prévoir en fonction de l'activité.
L'emplacement est desservi par le tramway ligne A (arrêts Plateau de la Mayenne-Bois du Roy) et par le Bus ligne 7

Idéalement positionné Plateau de la Mayenne à 10 minute du centre-ville d'Angers et à deux pas du centre-ville d'Avrillé, L'emplacement est stratégique dans un environnement résidentiel dense.

Vous souhaitez investir ou implanter votre activité dans un quartier en pleine expansion sur une commune dynamique?
Contactez-nous pour plus d'information.

Conditions de vente :
Prix de vente HT net vendeur 139 000 €
Honoraires de commercialisation forfaitaire 8 500 € HT en sus du prix de vente HT net vendeur à la charge de l'acquéreur.

Honoraires inclus de 6.09% HT à la charge de l'acquéreur. Prix hors honoraires 139 500 € HT. Dans une copropriété de 1 lots. Aucune procédure n'est en cours. Non soumis au DPE. Les informations sur les risques auxquels ce bien est exposé sont disponibles sur le site Géorisques : georisques.gouv.fr.

Votre conseiller LOCAUX-BUREAUX-COMMERCES : Nicolas FOULON
Agent commercial (Entreprise individuelle)
RSAC ADC 44[Coordonnées masquées]00 873
RCP RCACO-20-016231 GALIAN SMA BTP.
LOCAUX-BUREAUX-COMMERCES [Coordonnées masquées]
Voir plus

Référence: NFV15043-LBC44
Bien en copropriété. Nombre de lots : 1.
Honoraires d'agence de 6.09% à la charge de l'acquéreur
Barème des honoraires
Commerce à AVRILLE
Commerce à AVRILLE
Commerce à AVRILLE
Commerce à AVRILLE
Commerce à AVRILLE
Commerce à AVRILLE
Commerce à AVRILLE
Commerce à AVRILLE
Géorisques

Les informations sur les risques auxquels ce bien est exposé sont disponibles sur le site Géorisques : www.georisques.gouv.fr

Ce site est protégé par hCaptcha Politique de confidentialité et Conditions d’utilisation s’appliquent.