Bénéficiez des services de nos partenaires locaux soigneusement sélectionnés
pour vous accompagner dans votre parcours d'achat immobilier

Jolie maison de ville de 80 m2 sur une parcelle de 216 m2

— Saint-Chef 38890 —
199 000 €
80 m² / 216 m²
3 pièces
parkingbalcon/terrassejardin

Nos partenaires locaux
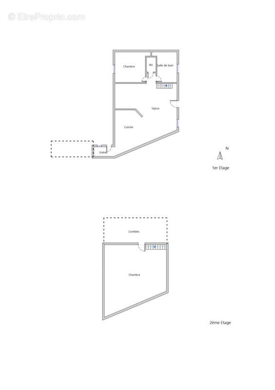
Venez découvrir cette charmante maison de ville d’environ 80 m2, idéalement située à 12 minutes de Ruy-Montceau et à 13 mns de la sortie 8.
La maison dispose, d’un extérieur privatif ainsi que d’une agréable terrasse, idéale pour profiter de moments de détente en toute tranquillité lors des beaux jours.
Au premier étage,vous découvrirez une entrée avec son placard pour deposer vos effets personnel, donnat sur une pièce de vie de 38 m2 avec cuisine ouverte, lumineuse grâce à ses portes-fenêtres donnant directement accès à la terrasse.
Ce niveau comprend également une chambre de 10 m2, une salle de bain ainsi que des toilettes séparées.
À l’étage supérieur, un escalier mène à une spacieuse chambre offrant un cachet certain avec ses poutres apparentes et ses placards de rangement.
Côté confort, la maison est équipée d’un chauffage électrique par radiateurs, de fenêtres en PVC double vitrage, de volets roulants manuels ,d'un portail motorisé et du tout-à-l’égout.
Enfin au RDC, une pièce de rangement de 15 m2 avec carrelage, attenante à un garage de 23 m2 lui aussi carrelé et avec espace buanderie et une cave , vient compléter harmonieusement l’ensemble.

Les informations sur les risques auxquels ce bien est exposé sont disponibles sur le site Géorisques : www.georisques.gouv.fr. Pour toutes questions complémentaires ,contactez Nathalie Grangier de chez Love immo Tel :[Coordonnées masquées] Agent commercial en EI immatriculé au RSAC de Vienne sous le numéro 850 511 304
Voir plus

Référence: 6881NG
Honoraires à la charge du vendeur.
Barème des honoraires
DPE
A
B
C
D
E
F
G
GES
A
B
C
D
E
F
G
Maison à SAINT-CHEF
Maison à SAINT-CHEF
Maison à SAINT-CHEF
Maison à SAINT-CHEF
Maison à SAINT-CHEF
Maison à SAINT-CHEF
Maison à SAINT-CHEF
Maison à SAINT-CHEF
Maison à SAINT-CHEF
Maison à SAINT-CHEF
Maison à SAINT-CHEF
Maison à SAINT-CHEF
Maison à SAINT-CHEF
Maison à SAINT-CHEF
Maison à SAINT-CHEF
Géorisques

Les informations sur les risques auxquels ce bien est exposé sont disponibles sur le site Géorisques : www.georisques.gouv.fr

Ce site est protégé par hCaptcha Politique de confidentialité et Conditions d’utilisation s’appliquent.