Bénéficiez des services de nos partenaires locaux soigneusement sélectionnés
pour vous accompagner dans votre parcours d'achat immobilier

Maison non mitoyenne, garage, parcelle de 444 m2.

— Rueil-Malmaison 92500 —
740 000 €
120 m²
5 pièces
parking

Nos partenaires locaux
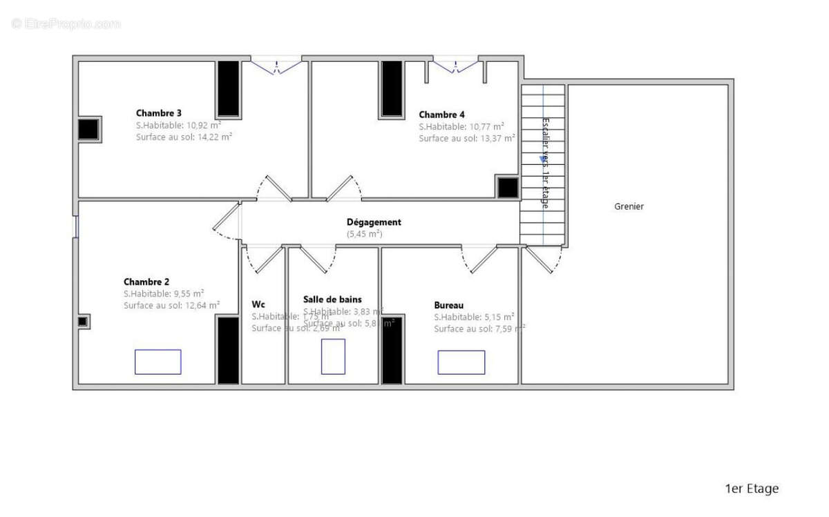
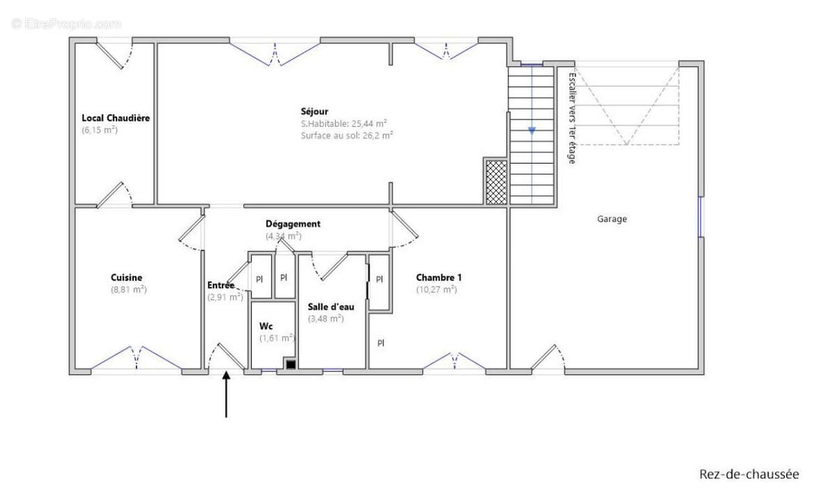
L’Agence de l’Empereur vous présente cette agréable maison non mitoyenne de plus de 104 m2 habitables (125 m2 au sol, hors garage), construite en 1960 et surélevée en 1990 sur une parcelle de 444 m2. Située dans un environnement très calme, en retrait de plusieurs dizaines de mètres d'une petite rue résidentielle, à 10 minutes du centre-ville et à seulement 12 minutes des nombreux commerces de l'éco-quartier de l'Arsenal, en plein essor, et de la future gare de la ligne 15. Elle se compose au rez-de-chaussée : une entrée avec placard, un séjour de 25,5 m2 (pouvant être facilement agrandi de 6 m2), orientée Sud-Est, donnant de plain-pied sur le jardin, une cuisine séparée, une chambre, une salle d’eau et des toilettes séparées. Au premier étage : un dégagement, trois chambres de plus de 11 m2, un bureau, une salle de bains et des toilettes séparées. Possibilité d’aménager le grenier, accessible directement depuis le dégagement, créant ainsi une 5e chambre d’environ 15 m2. Un garage et possibilité de stationner plusieurs voitures sur la parcelle. Un jardin propice aux jeux des enfants et aux moments de convivialité. Rénovation complète à prévoir. Chauffage et production d’eau chaude par chaudière gaz ELM Leblanc. Taxe foncière : 860 euros. Visite en vidéo 4K : https://www.youtube.com/watch?v=EWFPk-t0Ulc
Voir plus

Référence: 8551
Honoraires à la charge du vendeur.
Barème des honoraires
DPE
A
B
C
D
E
F
G
GES
A
B
C
D
E
F
G
Maison à RUEIL-MALMAISON
Maison à RUEIL-MALMAISON
Maison à RUEIL-MALMAISON
Maison à RUEIL-MALMAISON
Maison à RUEIL-MALMAISON
Maison à RUEIL-MALMAISON
Maison à RUEIL-MALMAISON
Maison à RUEIL-MALMAISON
Maison à RUEIL-MALMAISON
Maison à RUEIL-MALMAISON
Maison à RUEIL-MALMAISON
Maison à RUEIL-MALMAISON
Maison à RUEIL-MALMAISON
Maison à RUEIL-MALMAISON
Maison à RUEIL-MALMAISON
Maison à RUEIL-MALMAISON
Maison à RUEIL-MALMAISON
Maison à RUEIL-MALMAISON
Maison à RUEIL-MALMAISON
Maison à RUEIL-MALMAISON
Géorisques

Les informations sur les risques auxquels ce bien est exposé sont disponibles sur le site Géorisques : www.georisques.gouv.fr

Ce site est protégé par hCaptcha Politique de confidentialité et Conditions d’utilisation s’appliquent.

En poursuivant votre navigation sans modifier vos paramètres, vous acceptez l'utilisation de cookies susceptibles de réaliser des statistiques de visite. Cliquez ici pour plus d'informations