Terrain - Viabilisé - 713m²

— Diemoz 38790 —
190 000 €

La Team MAUGÉ vous propose un superbe terrain situé sur la Rue de la Chapelle à Diémoz. Avec une surface généreuse de 713 m², ce bien est une opportunité rare pour réaliser la maison de vos rêves ou pour un projet de loisir. Niché dans un cadre agréable et accessible, ce terrain bénéficie d'une situation idéale au cœur de la commune de Diémoz.

Disposition :
- Terrain de 713 m²

Caractéristiques du bien :
- Surface de 713m²
- Terrain viabilisé, avec cloture et pilier de portail
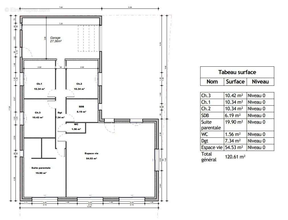
- Permis déposé et accepté pour une maison de 120m² en L
- Zone Ub
- 156m² de pleine terre
- Situation idéale à Diémoz
- Opportunité d'aménagement varié
- À proximité des écoles, parcs, et commerces locaux
- Les informations sur les risques auxquels ce bien est exposé sont disponibles sur le site Géorisques : www.georisques.gouv.fr
- Honoraires charge vendeur

Kathleen MEUNIER
Agent Commercial Immobilier
RSAC 895 038 594 délivré à Vienne
EI

MAUGÉ Immobilier
SASU au capital de 10.000 €
RCS n°893 649 889 délivré à Vienne
CPI n°38[Coordonnées masquées]00004 délivrée par la CCI Nord-Isère

À très vite !
La Team MAUGÉ Immobilier
Voir plus

Référence: DOM31676
Honoraires à la charge du vendeur.
Terrain à DIEMOZ
Terrain à DIEMOZ
Terrain à DIEMOZ
Terrain à DIEMOZ
Terrain à DIEMOZ
Terrain à DIEMOZ
Terrain à DIEMOZ
Terrain à DIEMOZ
Terrain à DIEMOZ
Géorisques

Les informations sur les risques auxquels ce bien est exposé sont disponibles sur le site Géorisques : www.georisques.gouv.fr

Ce site est protégé par hCaptcha Politique de confidentialité et Conditions d’utilisation s’appliquent.