Bénéficiez des services de nos partenaires locaux soigneusement sélectionnés
pour vous accompagner dans votre parcours d'achat immobilier

Emplacement exceptionnel à découvrir sans tarder !

— Bossey 74160 —
1 100 000 €
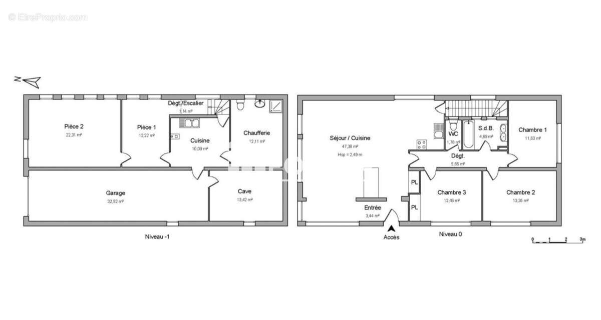
160 m²
4 pièces

Nos partenaires locaux
Sur les hauteurs de Bossey, ce magnifique terrain de 1 700 m², exposé plein sud, offre une vue panoramique imprenable sur le Léman et son environnement privilégié.
La propriété comprend une maison existante, dont le potentiel réside principalement dans le terrain. Vous aurez ainsi la liberté de rénover l'existant ou de développer un nouveau projet : un permis de construire a d'ores et déjà été accordé pour la réalisation de deux habitations.
Un bien rare, idéal pour un projet de résidence(s) d'architecte dans un cadre calme et recherché.
Contact : Patrice LABEILLE O6 02 14 91 84
Voir plus

Référence: 00799581
Honoraires à la charge du vendeur.
Barème des honoraires
DPE
A
B
C
D
E
F
G
GES
A
B
C
D
E
F
G
Maison à BOSSEY
Maison à BOSSEY
Maison à BOSSEY
Maison à BOSSEY
Maison à BOSSEY
Maison à BOSSEY
Maison à BOSSEY
Maison à BOSSEY
Maison à BOSSEY
Maison à BOSSEY
Maison à BOSSEY
Maison à BOSSEY
Géorisques

Les informations sur les risques auxquels ce bien est exposé sont disponibles sur le site Géorisques : www.georisques.gouv.fr

Ce site est protégé par hCaptcha Politique de confidentialité et Conditions d’utilisation s’appliquent.