Bénéficiez des services de nos partenaires locaux soigneusement sélectionnés
pour vous accompagner dans votre parcours d'achat immobilier

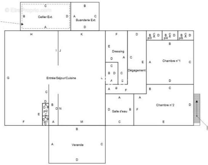
Maison 242 m² à Eyguieres

— Eyguieres 13430 —
799 000 €
242 m² / 18 411 m²
7 pièces
parking

Nos partenaires locaux
13430 - EYGUIERES - PROPRIETE 2 HABITATIONS - 7 PIECES - 5 CHAMBRES - 242.0M2 - 1.8 HECTARES DE TERRAIN - DEPENDANCES - A VISITER SANS TARDER !

Chrystelle Debray du groupe EffiCity, l'agence qui estime votre bien en ligne, vous propose de découvrir cette belle propriété agricole située en campagne d'Eyguières.

Vous rêvez d'espace, de nature et de liberté à deux pas des Alpilles ?
Découvrez cette propriété rare située sur la commune d'Eyguières, à seulement 5 minutes de l'accès autoroutier.
Un cadre de vie privilégié, alliant calme absolu, accessibilité et potentiel exceptionnel.
Un environnement unique :
•Terrain agricole de 18 411 m² (1,8 ha)
•Aucun vis-à-vis
•Environnement verdoyant au pied des Alpilles
Idéal pour chevaux, activité agricole ou projet de vie au vert

Installations équestres
•Box à chevaux existants

Un véritable atout pour les passionnés ou pour développer une activité équestre sans aménagement lourd

Dépendances – environ 600m² de potentiel
Un ensemble rare comprenant :
•granges
•hangar
•bergerie
Parfait pour artisan, stockage, activité professionnelle, projet agricole ou gîtes

Les habitations :
Maison principale – environ 186 m²
Maison de type ferme, saine, à rafraîchir (principalement extérieur), offrant de beaux volumes :
•Pièce de vie avec cuisine ouverte sur salle à manger
•Salon avec possibilité d'installer un poêle à bois
•Buanderie
•2 chambres avec salle d'eau wc et dressing
•2 chambres à l'étage avec salle d'eau et wc
•dont une avec accès indépendant, facilement transformable en T2
Idéal pour :
•revenu locatif
•activité indépendante
•logement autonome pour un proche

Propriété sous fosse septique et forage + puit et eau du canal.

Confort moderne :
•Pompe à chaleur
•Chauffage au sol rafraîchissant
•DPE A / GES A

Maison secondaire – environ 56m² avec garage
Indépendante, elle permet :
•d'accueillir famille et amis
•ou de générer un revenu locatif immédiat

Un bien à fort potentiel :
Résidence principale, projet équestre, activité professionnelle ou investissement locatif : cette propriété s'adapte à vos ambitions.

Les + qui font la différence :
Au cœur du secteur prisé, entre Arles, Aix-en-Provence, et Marseille dans l'écrin naturel des Alpilles.
Accès rapide autoroute
Excellent DPE (A/A)
Double habitation
Dépendances + installations équestres
Terrain de 1,8 hectare

Ne manquez pas l'opportunité de visiter cette belle propriété familiale, idéale pour les amoureux de la nature et du calme.

Prix : 799 000 € Honoraires Agence Inclus à charge vendeurs

Contactez-moi dès aujourd'hui pour organiser une visite et laissez-vous séduire par le charme de cet havre de paix à Eyguières.
Les informations sur les risques auxquels ce bien est exposé sont disponibles sur le site Georisque : georisques. gouv. fr
Chrystelle Debray - EI - est Agent Commercial mandataire en immobilier, immatriculé au Registre Spécial des Agents Commerciaux du Tribunal de Commerce de Salon-de-Provence sous le n°909902165.
Siège social du mandant : effiCity, 48 avenue de Villiers - 75017 PARIS - Société par Actions Simplifiée, société au capital de 132 373,05 euros, immatriculée au RCS Paris 497 617 746 et titulaire de la Carte professionnelle CPI 75[Coordonnées masquées]02 025 - CCI Paris IDF - Caisse de Garantie : GALIAN Assurances 89 rue de la Boétie 75008 Paris
Voir plus

Référence: 213795
Honoraires à la charge du vendeur.
Barème des honoraires
DPE
A
B
C
D
E
F
G
GES
A
B
C
D
E
F
G
Maison à EYGUIERES
Maison à EYGUIERES
Maison à EYGUIERES
Maison à EYGUIERES
Maison à EYGUIERES
Maison à EYGUIERES
Maison à EYGUIERES
Maison à EYGUIERES
Maison à EYGUIERES
Maison à EYGUIERES
Maison à EYGUIERES
Maison à EYGUIERES
Maison à EYGUIERES
Maison à EYGUIERES
Maison à EYGUIERES
Maison à EYGUIERES
Maison à EYGUIERES
Maison à EYGUIERES
Maison à EYGUIERES
Maison à EYGUIERES
Maison à EYGUIERES
Géorisques

Les informations sur les risques auxquels ce bien est exposé sont disponibles sur le site Géorisques : www.georisques.gouv.fr

Ce site est protégé par hCaptcha Politique de confidentialité et Conditions d’utilisation s’appliquent.