Bénéficiez des services de nos partenaires locaux soigneusement sélectionnés
pour vous accompagner dans votre parcours d'achat immobilier

3 pieces - ordener

— Paris-18e 75018 —
549 000 €
62 m²
3 pièces
parkingbalcon/terrasseascenseur

Nos partenaires locaux
RUE ORDENER

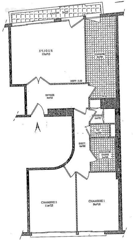
Au 3ème étage par ascenseur d'un immeuble des années 1970, L'IMMOBILIERE Bernard LACOSTE vous propose cet appartement traversant 3 pièces d'une surface de 62,16 m² Loi Carrez à rénover.

L'appartement comprend une entrée, un séjour ouvrant sur un balcon et sur la rue Ordener - exposition plein Sud, une cuisine séparée avec possibilité d'ouverture sur le séjour, deux chambres ouvrant sur cour, un dressing, une salle d'eau et un wc séparé. Chauffage et eau chaude collectifs. Vue dégagée. Possibilité de créer un bel espace de vie en ouvrant sur l'entrée et la cuisine sur le séjour actuel. Cave et parking double en sous-sol. Métro Ligne 12 (Jules Joffrin ou Lamarck) à 5 minutes. A visiter rapidement !!

Bien soumis au statut de la copropriété. Nombre de lots : 20. Quote part du budget prévisionnel annuel : 3 938,44 Euros. Honoraires TTC inclus à la charge de lacquéreur : 4,57 %. Pour toute demande dinformations et organiser une visite, contactez Adrien au [Coordonnées masquées].
Voir plus

Référence: UW137-2132
DPE
A
B
C
D
E
F
G
GES
A
B
C
D
E
F
G
Appartement à PARIS-18E
Appartement à PARIS-18E
Géorisques

Les informations sur les risques auxquels ce bien est exposé sont disponibles sur le site Géorisques : www.georisques.gouv.fr

Ce site est protégé par hCaptcha Politique de confidentialité et Conditions d’utilisation s’appliquent.