Bénéficiez des services de nos partenaires locaux soigneusement sélectionnés
pour vous accompagner dans votre parcours d'achat immobilier

Maison 122m², 7 pièces dont 5 chambres sur 2833m² de terrain

— Bourges 18000 —
189 500 €
122 m² / 2 833 m²
7 pièces
jardin

Nos partenaires locaux
A vendre à Bourges (route des Coulangis).

Maison sur sous-sol complet de 122m² habitables, 7 pièces dont 5 chambres, garage indépendant, le tout sur un terrain de 2833m².

Chauffage avec poêle à bois, clim réversible dans 3 chambres et radiateur électrique, double vitrage, volet roulant motorisé, portail et porte de garage motorisés, fibre optique …

Classe énergétique D.


Elle se compose au rez-de-chaussée d'une entrée avec placard, double séjour avec poêle à bois, cuisine aménagée et équipée, salle d'eau avec grande douche à l'Italienne, 3 chambres ainsi que d'un WC indépendant avec fenêtre.


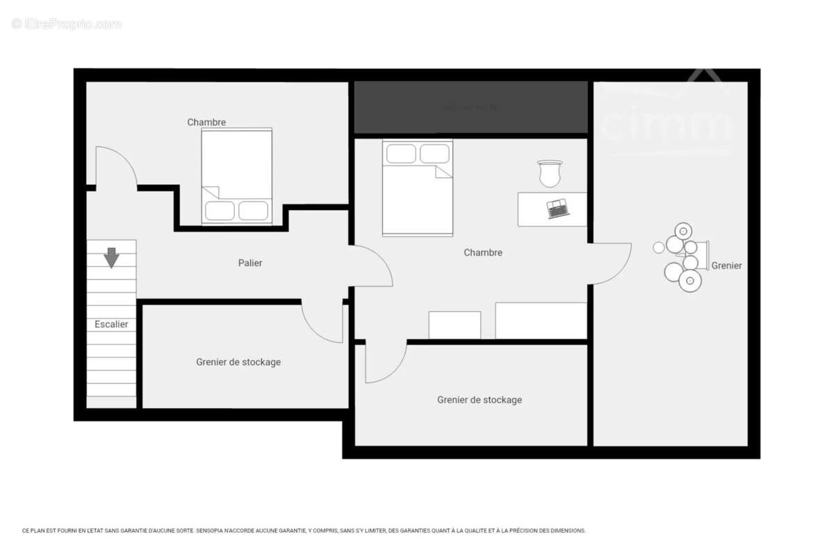
A l'étage un palier dessert une première petite chambre, un espace de stockage, ainsi qu'une grande chambre avec accès à deux grenier.


Sous sol complet composée d'une grande pièce, espace garage ainsi que d'une cuisine d'été/buanderie.

Terrasse à l'avant, beau terrain clos et arboré de 2833m² avec garage indépendant.

N'hésitez pas à me contacter pour plus d'information. Honoraires à la charge du vendeur - Montant estimé des dépenses annuelles d'énergie pour un usage standard, établi à partir des prix de l'énergie de l'année 2021 : 1470€ ~ 2000€ - Floris JOLY - Agent commercial - EI - RSAC BOURGES 819184201 - RCS 4[Coordonnées masquées]465 L'immobilier vous intéresse, contactez-moi
Voir plus

Référence: 86934950
Barème des honoraires
DPE
A
B
C
D
E
F
G
GES
A
B
C
D
E
F
G
Maison à BOURGES
Maison à BOURGES
Maison à BOURGES
Maison à BOURGES
Maison à BOURGES
Maison à BOURGES
Maison à BOURGES
Maison à BOURGES
Maison à BOURGES
Maison à BOURGES
Maison à BOURGES
Maison à BOURGES
Maison à BOURGES
Maison à BOURGES
Maison à BOURGES
Maison à BOURGES
Maison à BOURGES
Maison à BOURGES
Maison à BOURGES
Maison à BOURGES
Maison à BOURGES
Maison à BOURGES
Maison à BOURGES
Maison à BOURGES
Maison à BOURGES
Géorisques

Les informations sur les risques auxquels ce bien est exposé sont disponibles sur le site Géorisques : www.georisques.gouv.fr

Ce site est protégé par hCaptcha Politique de confidentialité et Conditions d’utilisation s’appliquent.