Terrain - Viabilisé - 700m²

— Diemoz 38790 —
190 000 €

La Team MAUGÉ vous propose un superbe terrain sur Diémoz. Avec une surface généreuse de 700 m², ce bien est une opportunité rare pour réaliser la maison de vos rêves ou pour un projet de loisir. Niché dans un cadre agréable et accessible, ce terrain bénéficie d'une situation idéale au cœur de la commune de Diémoz.

Disposition :
- Terrain de 700 m²

Caractéristiques du bien :
- Surface de 700m²
- Terrain viabilisé, avec cloture et pilier de portail
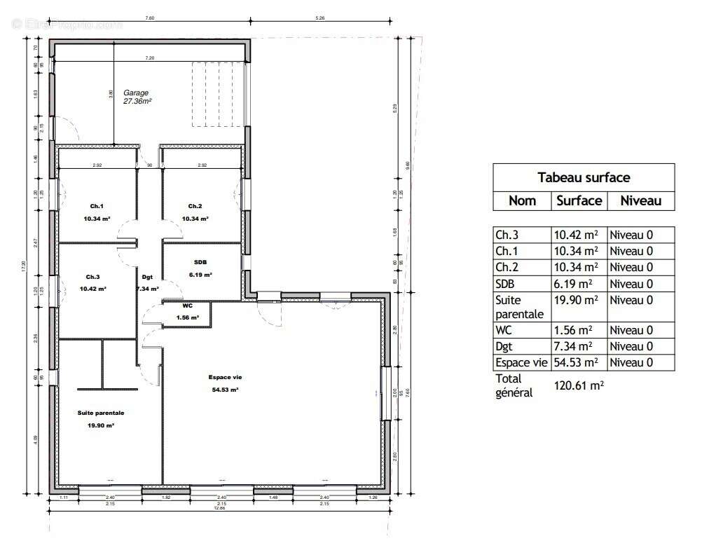
- Permis déposé et accepté pour une maison de 90m² en L
- Libre constructeur
- Possibilité d'acheter le terrain et de faire construire avec le promoteur pour un montant total de 330.000€ (hors cuisine, intérieurs de placards, portail ) comprenant carrelage 90x90, peinture, pompe a chaleur au sol chauffant et rafraîchissant, faïences, Clôtures....)
- Zone Ub
- 156m² de pleine terre
- Situation idéale à Diémoz
- Opportunité d'aménagement varié
- À proximité des écoles, parcs, et commerces locaux
- Les informations sur les risques auxquels ce bien est exposé sont disponibles sur le site Géorisques : www.georisques.gouv.fr
- Honoraires charge vendeur

Kathleen MEUNIER
Agent Commercial Immobilier
RSAC 895 038 594 délivré à Vienne
EI

MAUGÉ Immobilier
SASU au capital de 10.000 €
RCS n°893 649 889 délivré à Vienne
CPI n°38[Coordonnées masquées]00004 délivrée par la CCI Nord-Isère

À très vite !
La Team MAUGÉ Immobilier
Voir plus

Référence: DOM31711
Honoraires à la charge du vendeur.
Terrain à DIEMOZ
Terrain à DIEMOZ
Terrain à DIEMOZ
Terrain à DIEMOZ
Terrain à DIEMOZ
Terrain à DIEMOZ
Terrain à DIEMOZ
Terrain à DIEMOZ
Géorisques

Les informations sur les risques auxquels ce bien est exposé sont disponibles sur le site Géorisques : www.georisques.gouv.fr

Ce site est protégé par hCaptcha Politique de confidentialité et Conditions d’utilisation s’appliquent.