Bénéficiez des services de nos partenaires locaux soigneusement sélectionnés
pour vous accompagner dans votre parcours d'achat immobilier

Maison Alsacienne à colombage au coeur de la nature

— Niedersteinbach 67510 —
226 000 €
150 m² / 1 479 m²
5 pièces
parkingbalcon/terrassejardin

Nos partenaires locaux
Maison alsacienne à colombage avec terrain, au cœur de la nature – Niedersteinbach

Au calme absolu, en zone classée Natura 2000, à la lisière immédiate de la forêt, cette maison alsacienne à colombage bâtie sur un solide soubassement en grès rose des Vosges offre un cadre rare. Conçue dans les années 70 et rénovée progressivement jusqu'en 1990, elle propose aujourd'hui un fort potentiel ainsi qu'un charme authentique.

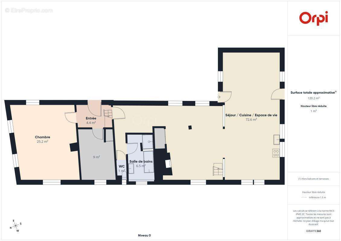
Le rez-de-chaussée réunit deux garages, une cave, une chaufferie et une pièce isolée avec poêle et point d'eau, idéale pour un atelier ou une cuisine d'été.

L'étage principal accueille une grande pièce de vie en L avec salon et cuisine ouverte sur 66m², accompagnée d'une cheminée. On y trouve aussi une salle de bain avec douche, un WC, un bureau (ou chambre) et une chambre.

Le deuxième étage est divisé en deux espaces indépendants, chacun avec son accès séparé.
Dans la première partie se trouvent une chambre et l'accès au grenier.
La seconde partie propose une mezzanine, un WC, une grande pièce pouvant servir de chambre ou d'atelier ainsi qu'une petite chambre.

La maison est implantée sur une cour orientée à l'est et bénéficie à l'arrière d'un vaste jardin d'environ 1.5 ares exposé plein sud. Une partie du terrain est en pente, donnant du relief au paysage. Deux terrasses en pierre complètent l'ensemble, l'une accessible directement depuis le salon cuisine, l'autre juste au dessus.

Des travaux de rafraîchissement et de modernisation sont à prévoir afin de révéler pleinement le potentiel de la maison et l'adapter aux standards actuels.

Un bien avec un vrai caractère, pour ceux qui cherchent un environnement naturel préservé et un potentiel d'aménagement important.

Contactez-nous pour organiser une visite.

Jean-Nicolas COUSQUER – Agent commercial (EI) - Consultant immobilier Orpi myHome
Immatriculé au RSAC de Strasbourg n° 101 276 566
Titulaire d'une assurance RCP n° RCACO-26-034031
Référence agence : 3296
Voir plus

Référence: UD51-ZFE-AZS
Barème des honoraires
DPE
A
B
C
D
E
F
G
GES
A
B
C
D
E
F
G
Maison à NIEDERSTEINBACH
Maison à NIEDERSTEINBACH
Maison à NIEDERSTEINBACH
Maison à NIEDERSTEINBACH
Maison à NIEDERSTEINBACH
Maison à NIEDERSTEINBACH
Maison à NIEDERSTEINBACH
Maison à NIEDERSTEINBACH
Maison à NIEDERSTEINBACH
Maison à NIEDERSTEINBACH
Maison à NIEDERSTEINBACH
Maison à NIEDERSTEINBACH
Maison à NIEDERSTEINBACH
Maison à NIEDERSTEINBACH
Maison à NIEDERSTEINBACH
Maison à NIEDERSTEINBACH
Maison à NIEDERSTEINBACH
Maison à NIEDERSTEINBACH
Maison à NIEDERSTEINBACH
Maison à NIEDERSTEINBACH
Maison à NIEDERSTEINBACH
Géorisques

Les informations sur les risques auxquels ce bien est exposé sont disponibles sur le site Géorisques : www.georisques.gouv.fr

Ce site est protégé par hCaptcha Politique de confidentialité et Conditions d’utilisation s’appliquent.