Bénéficiez des services de nos partenaires locaux soigneusement sélectionnés
pour vous accompagner dans votre parcours d'achat immobilier

Maison 154 m² à Courchamps

— Courchamps 49260 —
278 000 €
154 m² / 1 109 m²
7 pièces
parkingbalcon/terrassejardin

Nos partenaires locaux
COURCHAMPS (10min sud Saumur) – Pavillon rénové – 7 pièces – 4 chambres – Vie de plain-pied

NOUVEAUTÉ & EXCLUSIVITÉ CHEZ EFFICITY

Description :
Dans un environnement calme et agréable, découvrez ce pavillon de 1986 entièrement rénové, offrant une vie de plain-pied et un excellent état général.
Le rez-de-chaussée se compose d'une entrée, d'un salon-séjour avec insert, d'une cuisine équipée ouverte sur la salle à manger, d'une chambre, d'une salle de douche, d'un dressing, d'une lingerie ainsi que d'une seconde pièce de vie et de deux débarras.
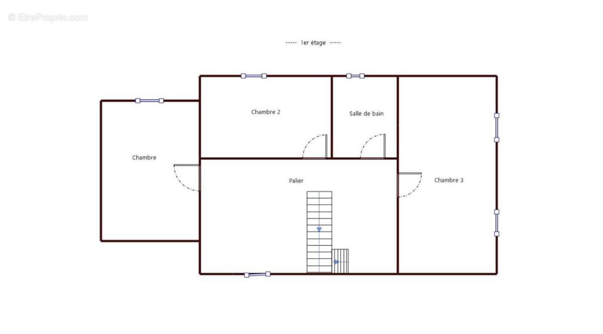
À l'étage, une mezzanine dessert trois chambres mansardées et une salle de bains avec WC.
À l'extérieur, vous profiterez d'un terrain entièrement clos avec deux terrasses, deux cabanons, un garage en bois et un préau.

Points forts :
- Vie de plain-pied
- Maison rénovée, très bon état
- Chauffage insert bois économe + électrique
- Double vitrage
- Terrain clos avec dépendances
- Environnement calme

Commodités :
Cadre paisible à proximité des commodités et axes principaux.

À visiter sans tarder !
Intéressé(e) ?
Contactez-moi pour organiser une visite.
Thomas Astié – Conseiller immobilier Efficity
Services : estimation gratuite, accompagnement dans vos projets.
Les informations sur les risques auxquels ce bien est exposé sont disponibles sur le site Georisque : georisques. gouv. fr
Thomas Astié - EI - est Agent Commercial mandataire en immobilier, immatriculé au Registre Spécial des Agents Commerciaux du Tribunal de Commerce de Angers sous le n°897406021.
Siège social du mandant : effiCity, 48 avenue de Villiers - 75017 PARIS - Société par Actions Simplifiée, société au capital de 132 373,05 euros, immatriculée au RCS Paris 497 617 746 et titulaire de la Carte professionnelle CPI 75[Coordonnées masquées]02 025 - CCI Paris IDF - Caisse de Garantie : GALIAN Assurances 89 rue de la Boétie 75008 Paris
Voir plus

Référence: 210920
Honoraires à la charge du vendeur.
Barème des honoraires
DPE
A
B
C
D
E
F
G
GES
A
B
C
D
E
F
G
Maison à COURCHAMPS
Maison à COURCHAMPS
Maison à COURCHAMPS
Maison à COURCHAMPS
Maison à COURCHAMPS
Maison à COURCHAMPS
Maison à COURCHAMPS
Maison à COURCHAMPS
Maison à COURCHAMPS
Maison à COURCHAMPS
Maison à COURCHAMPS
Maison à COURCHAMPS
Maison à COURCHAMPS
Maison à COURCHAMPS
Maison à COURCHAMPS
Maison à COURCHAMPS
Maison à COURCHAMPS
Maison à COURCHAMPS
Géorisques

Les informations sur les risques auxquels ce bien est exposé sont disponibles sur le site Géorisques : www.georisques.gouv.fr

Ce site est protégé par hCaptcha Politique de confidentialité et Conditions d’utilisation s’appliquent.