Bénéficiez des services de nos partenaires locaux soigneusement sélectionnés
pour vous accompagner dans votre parcours d'achat immobilier

Maison 116 m² à Thouarce

— Thouarce 49380 —
309 000 €
116 m² / 1 633 m²
7 pièces
parkingbalcon/terrassejardin

Nos partenaires locaux
BELLEVIGNE EN LAYON, cadre paisible – MAISON FAMILIALE 118 m² habitables - 5 CHAMBRES – TERRAIN 1631 m² - DPE A/A

Efficity, l'agence qui estime votre bien en ligne, vous propose cette maison récente avec de beaux volumes, alliant confort moderne et excellente performance énergétique.

Située sur le secteur de Bellevigne en Layon, cette maison de 2018 ne manque pas d'atouts :
•Lumineuse et fonctionnelle
• Surface au sol 142 m²
•5 chambres dont une suite parentale de plain-pied
•Prestations modernes et confort optimal
•Grand terrain

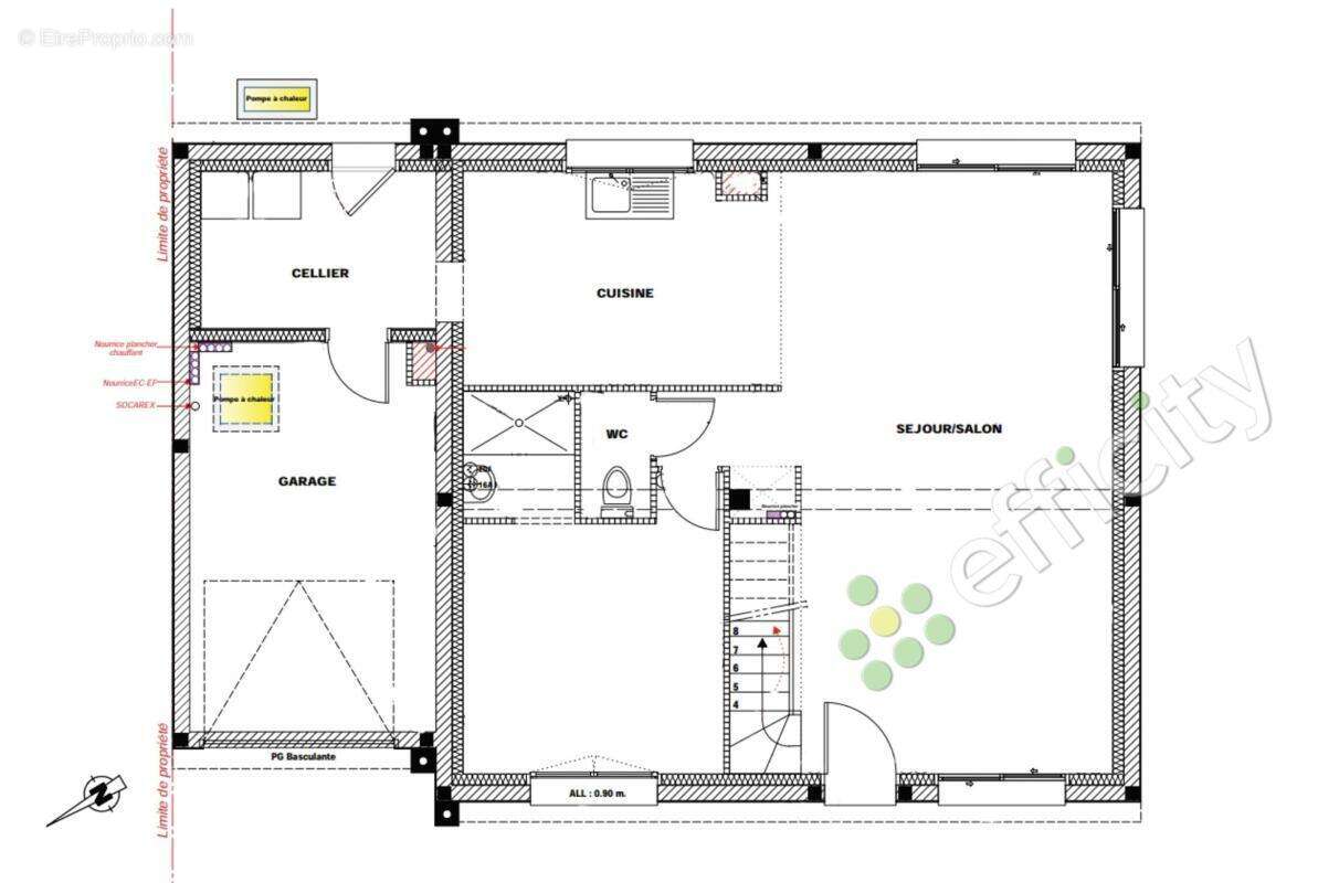
Au rez-de-chaussée, vous serez séduit par une spacieuse pièce de vie traversante de 44 m², baignée de lumière et ouverte sur le jardin, comprenant salon, salle à manger et cuisine aménagée et équipée.
Une arrière-cuisine / buanderie complète cet espace de manière pratique, avec accès direct au garage.

La vie de plain-pied est facilitée grâce à une suite parentale avec dressing et salle d'eau privative. Des WC indépendants viennent compléter ce niveau.

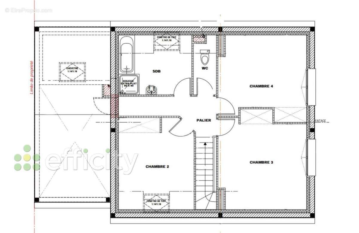
A l'étage, l'espace nuit propose 4 chambres, une salle de bain avec douche, des WC séparés, offrant une distribution fluide et adaptée à une vie de famille.

Confort & équipements :
•Chauffage au sol par pompe à chaleur air/eau
•Aspiration centralisée
•Volets roulants électriques
•Construction récente aux normes d'isolation performantes et normes antisismiques
•Garantie décennale jusqu'en 2028

Extérieurs :
•Terrain de 1 631 m², au calme et piscinable
•Terrasse de 47 m² pour profiter des beaux jours
•Garage
•Cabanon de jardin de 16 m²
•Puits
Les informations sur les risques auxquels ce bien est exposé sont disponibles sur le site Georisque : georisques. gouv. fr
Valérie Christophe - EI - est Agent Commercial mandataire en immobilier, immatriculé au Registre Spécial des Agents Commerciaux du Tribunal de Commerce de Angers sous le n°808781926.
Siège social du mandant : effiCity, 48 avenue de Villiers - 75017 PARIS - Société par Actions Simplifiée, société au capital de 132 373,05 euros, immatriculée au RCS Paris 497 617 746 et titulaire de la Carte professionnelle CPI 75[Coordonnées masquées]02 025 - CCI Paris IDF - Caisse de Garantie : GALIAN Assurances 89 rue de la Boétie 75008 Paris
Voir plus

Référence: 211075
Honoraires à la charge du vendeur.
Barème des honoraires
DPE
A
B
C
D
E
F
G
GES
A
B
C
D
E
F
G
Maison à THOUARCE
Maison à THOUARCE
Maison à THOUARCE
Maison à THOUARCE
Maison à THOUARCE
Maison à THOUARCE
Maison à THOUARCE
Maison à THOUARCE
Maison à THOUARCE
Maison à THOUARCE
Maison à THOUARCE
Maison à THOUARCE
Maison à THOUARCE
Maison à THOUARCE
Maison à THOUARCE
Maison à THOUARCE
Maison à THOUARCE
Maison à THOUARCE
Maison à THOUARCE
Maison à THOUARCE
Maison à THOUARCE
Maison à THOUARCE
Géorisques

Les informations sur les risques auxquels ce bien est exposé sont disponibles sur le site Géorisques : www.georisques.gouv.fr

Ce site est protégé par hCaptcha Politique de confidentialité et Conditions d’utilisation s’appliquent.