Bénéficiez des services de nos partenaires locaux soigneusement sélectionnés
pour vous accompagner dans votre parcours d'achat immobilier

Appartement

— La Garenne-Colombes 92250 —
548 000 €
85 m²
4 pièces
parkingbalcon/terrasseascenseur

Nos partenaires locaux
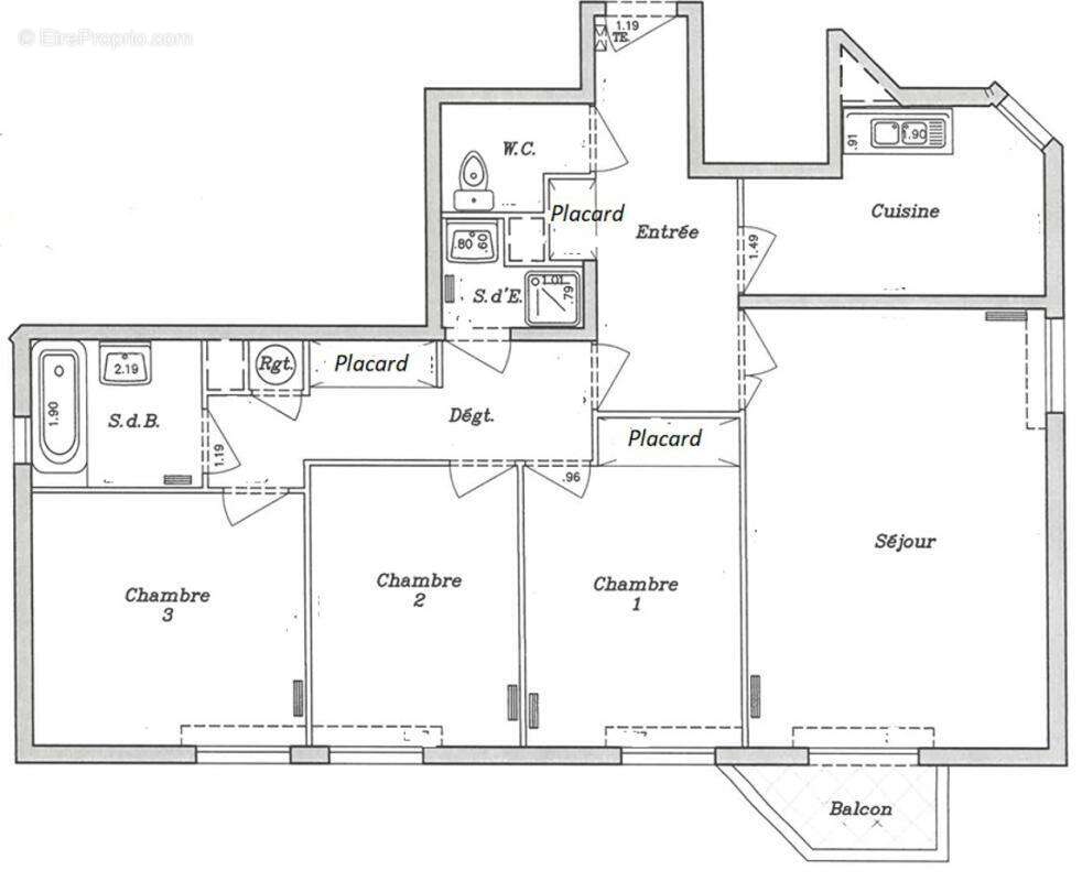
92250 LA GARENNE-COLOMBES – LES VALLÉES – 4 PIÈCES de 85,08 m² – AU CALME SUR JARDIN, EXPOSÉ SUD ET EST – CAVE et PARKING - DPE D

Efficity, l'agence immobilière qui estime votre bien en ligne, vous propose en exclusivité, cet appartement familial de 85,08 m² Carrez, situé au premier étage avec ascenseur d'un immeuble récent dont le ravalement et les parties communes viennent d'être refait.

Il se compose d'une entrée desservant un séjour lumineux de plus de 21 m², exposé sud-est, ouvrant sur un balcon. La cuisine indépendante est à aménager selon vos envies.
L'espace nuit comprend trois chambres (de 9,52 m² à plus de 11 m²), une salle de bain, une salle d'eau ainsi que des WC séparés.

De nombreux rangements sont présents grâce à de grands placards intégrés dans l'entrée et le couloir.

L'appartement bénéficie d'un environnement calme, donnant entièrement sur jardin.

Une cave saine ainsi qu'une place de parking complètent ce bien.
Grand parking à vélo au sein de la copropriété.

Idéalement situé, il se trouve à 5 minutes à pied de la GARE DES VALLÉES, à proximité immédiate des commerces et des écoles.

Chauffage et eau chaude individuels
Charges mensuelles 200€
Les informations sur les risques auxquels ce bien est exposé sont disponibles sur le site Georisque : georisques. gouv. fr
Ghislaine Desenfant - EI - est Agent Commercial mandataire en immobilier, immatriculé au Registre Spécial des Agents Commerciaux du Tribunal de Commerce de Nanterre sous le n°828200204.
Siège social du mandant : effiCity, 48 avenue de Villiers - 75017 PARIS - Société par Actions Simplifiée, société au capital de 132 373,05 euros, immatriculée au RCS Paris 497 617 746 et titulaire de la Carte professionnelle CPI 75[Coordonnées masquées]02 025 - CCI Paris IDF - Caisse de Garantie : GALIAN Assurances 89 rue de la Boétie 75008 Paris
Voir plus

Référence: 211166
Bien en copropriété. Nombre de lots : 118. Charges de copropriété : 200 €.
Honoraires à la charge du vendeur.
Barème des honoraires
DPE
A
B
C
D
E
F
G
GES
A
B
C
D
E
F
G
Appartement à LA GARENNE-COLOMBES
Appartement à LA GARENNE-COLOMBES
Appartement à LA GARENNE-COLOMBES
Appartement à LA GARENNE-COLOMBES
Appartement à LA GARENNE-COLOMBES
Appartement à LA GARENNE-COLOMBES
Appartement à LA GARENNE-COLOMBES
Appartement à LA GARENNE-COLOMBES
Appartement à LA GARENNE-COLOMBES
Appartement à LA GARENNE-COLOMBES
Appartement à LA GARENNE-COLOMBES
Appartement à LA GARENNE-COLOMBES
Appartement à LA GARENNE-COLOMBES
Appartement à LA GARENNE-COLOMBES
Appartement à LA GARENNE-COLOMBES
Appartement à LA GARENNE-COLOMBES
Géorisques

Les informations sur les risques auxquels ce bien est exposé sont disponibles sur le site Géorisques : www.georisques.gouv.fr

Ce site est protégé par hCaptcha Politique de confidentialité et Conditions d’utilisation s’appliquent.