Bénéficiez des services de nos partenaires locaux soigneusement sélectionnés
pour vous accompagner dans votre parcours d'achat immobilier

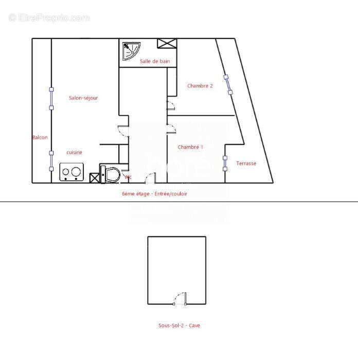
Appartement 65 m² à La Garenne-Colombes

— La Garenne-Colombes 92250 —
489 000 €
65 m²
3 pièces
balcon/terrasseascenseur

Nos partenaires locaux
? Off Market – Dernier étage avec terrasse plein sud
? Colombes – secteur recherché

À proximité immédiate du Station Jacqueline Auriol, et à quelques minutes à pied de la Gare de La Garenne-Colombes (liaison directe La Défense et Gare Saint-Lazare), appartement 3 pièces de 62 m² Carrez situé au dernier étage avec ascenseur d'un immeuble de standing aux parties communes soignées.

Entièrement rénové avec des prestations haut de gamme, ce bien séduit par sa luminosité exceptionnelle, son exposition plein sud et ses extérieurs rares sur le secteur.

L'appartement se compose d'une séjour lumineux exposé plein sud avec une cuisine contemporaine aux finitions élégantes

Deux chambres confortables

Salle de bain en marbre avec douche et baignoire

Rangements sur mesure (placards intégrés et dressing)

Extérieurs

Terrasse et balcon – 22 m²

Exposition plein sud

Vue dégagée sans vis-à-vis

Surface pondérée : 69,9 m²

Prestations

Parquet point de Hongrie

Matériaux nobles

Appartement entièrement rénové

Dernier étage avec ascenseur

Informations complémentaires

Diagnostics : aucune anomalie

Charges : 312 € / trimestre

Taxe foncière : 1 382 €

Parking en sous-sol possible en sus

? Bien rare sur le marché de La Garenne-Colombes, idéal pour une clientèle recherchant un appartement lumineux avec extérieur à proximité immédiate des transports.

? Dossier complet, photos et vidéo disponibles sur demande. Diffusion confidentielle.

Honoraires inclus de 4.26% TTC à la charge de l'acquéreur. Prix hors honoraires 469 000 €. Dans une copropriété de 60 lots. Aucune procédure n'est en cours. Classe énergie D, Classe climat B Montant moyen estimé des dépenses annuelles d'énergie pour un usage standard, établi à partir des prix de l'énergie de l'année 2021 : entre 1000.00 et 2000.00 €. Les informations sur les risques auxquels ce bien est exposé sont disponibles sur le site Géorisques : georisques.gouv.fr.
Voir plus

Référence: VA2819-HORE
Bien en copropriété. Nombre de lots : 60.
Honoraires d'agence de 4.26% à la charge de l'acquéreur
Barème des honoraires
DPE
A
B
C
D
E
F
G
GES
A
B
C
D
E
F
G
Appartement à LA GARENNE-COLOMBES
Appartement à LA GARENNE-COLOMBES
Appartement à LA GARENNE-COLOMBES
Appartement à LA GARENNE-COLOMBES
Appartement à LA GARENNE-COLOMBES
Appartement à LA GARENNE-COLOMBES
Appartement à LA GARENNE-COLOMBES
Géorisques

Les informations sur les risques auxquels ce bien est exposé sont disponibles sur le site Géorisques : www.georisques.gouv.fr

Ce site est protégé par hCaptcha Politique de confidentialité et Conditions d’utilisation s’appliquent.