Bénéficiez des services de nos partenaires locaux soigneusement sélectionnés
pour vous accompagner dans votre parcours d'achat immobilier

Appart. familiale parisien/atypique de 5 p., 4 ch., traversant, beaux volumes, calme, clair,

— Paris-1e 75001 —
1 295 000 €
96 m²
5 pièces

Nos partenaires locaux
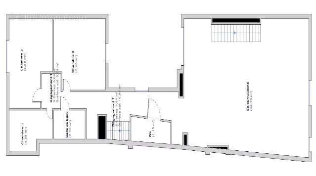
PARIS Ier - SAINT-HONORE/LES HALLES : Appartement familiale de 96 m² (surface totale au sol 108 m² et 84,75 m² carrez) situé au 4ème étage SANS ASCENSEUR d'un immeuble de 1760. Il est traversant, calme et clair.

Situé au cœur du 1er arrondissement, cet appartement atypique vous propose de beaux volumes, de belles prestations et matériaux.

La superficie est optimisée (architecte) pour proposer 4 chambres (une suite parentale et 3 chambres d'enfant).

Des poutres apparentes, du parquet, un plein 'ciel-zinc', une distribution centrale autour d’une cour intérieure qui vous fera sentir 'comme dans une maison' grâce aux fenêtres lumineuses ; sont autant d'éléments qui vous promettent une ambiance cosy.

Un escalier au 4ème étage vous mène dans l'appartement qui se compose en deux espaces.

Le premier espace : la pièce de vie avec une cuisine ouverte de plus de 44 m² et un accès à la suite parentale située en mezzanine fermée. un toilette séparé.

Le deuxième espace : le coin des nuits des enfants composé actuellement de 3 chambres, une salle de bain, un espace buanderie. Chaque chambre d'enfant permet un lit, un bureau et des rangements.

Les charges de copropriété sont maitrisées (500 euros par trimestre) dans cette ‘petite’ copropriété.

LES POINTS + : LOCALISATION – DISTIBUTION – COSY – ATYPIQUE
Voir plus

Référence: 86941325
Barème des honoraires
DPE
A
B
C
D
E
F
G
GES
A
B
C
D
E
F
G
Appartement à PARIS-1E
Appartement à PARIS-1E
Appartement à PARIS-1E
Appartement à PARIS-1E
Appartement à PARIS-1E
Appartement à PARIS-1E
Appartement à PARIS-1E
Appartement à PARIS-1E
Appartement à PARIS-1E
Appartement à PARIS-1E
Appartement à PARIS-1E
Appartement à PARIS-1E
Appartement à PARIS-1E
Appartement à PARIS-1E
Géorisques

Les informations sur les risques auxquels ce bien est exposé sont disponibles sur le site Géorisques : www.georisques.gouv.fr

Ce site est protégé par hCaptcha Politique de confidentialité et Conditions d’utilisation s’appliquent.