Appartement Marseille 1 pièce(s) 21 m2 - Saint Pierre - Dernier étage - Investisseurs

— Marseille-12e 13012 —
46 000 €
21 m²
1 pièce
parkingascenseur

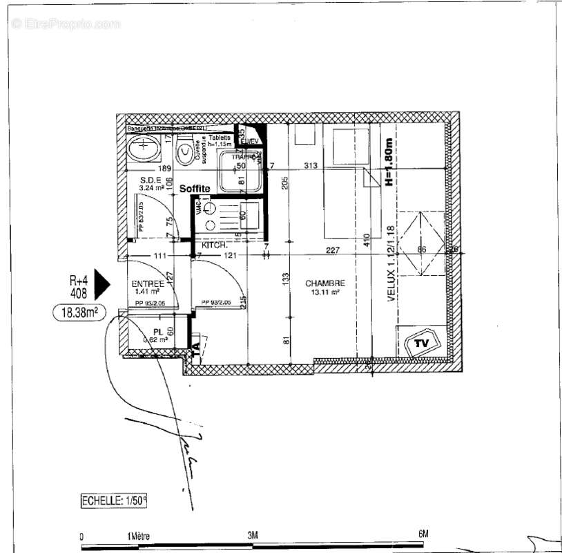
Aixty Marseille - Vous propose en exclusivité Dans le secteur Saint pierre entre le 12eme et le 5eme, un studio de 19 m² carrez avec Parking + Bail Commercial en cours mais que l'on peut rompre avec un délai de 6 mois. Construction de 2008, dans une résidence propre et entretenue, exploité en meublé de tourisme. Actuellement, il existe une gestion complète et simplifiée, avec un loyer garanti de 239 euros/mois. Possibilité de sortir du bail commercial en le rachetant. (voir conditions) Situé au 4ème et dernier étage, le bien bénéficie d'une vue dégagée. Le studio est meublé et dispose d'une kitchenette équipée (plaques + réfrigérateur), d'une salle d'eau avec WC, d'un dressing dans l'entré, ainsi que du double vitrage. La résidence propose également un lave-linge en parties communes, un gardien, et un accès rapide aux autoroutes. A seulement 5 minutes à pied du tramway, cet investissement combine tranquillité, accessibilité et rentabilité. Oui, studio exposé sud Oui, le parking est en sous sol, Oui, proximité immédiate avec les transports en communs, Oui actuellement exploité en bail commercial (révocablement facilement) Non, pas de balcon ni de terrasse Non, il n'y a pas de cave. - Potentiel locatif 650 euros / mois en exploitation hors bail commercial (Studio + Parking) Informations techniques DPE : C (optimisable) GES : C Charges : environ 145 euros / mois Taxe foncière : environ 750 euros Procédures : aucunes en cours à notre connaissance Prix de vente : 46 000 euros Honoraires à la charge vendeur RCS : 982 785 834 Marseille Les informations sur les risques auxquels ce bien est exposé sont disponibles sur le site Géorisques : www.georisques.gouv.fr Retrouvez toutes les photos, le descriptif détaillé et les infos quartier sur www.aixty.com Copropriété de 50 lots.
Voir plus

Référence: 0147
Bien en copropriété. Nombre de lots : 50.
Honoraires à la charge du vendeur.
Barème des honoraires
DPE
A
B
C
D
E
F
G
GES
A
B
C
D
E
F
G
Appartement à MARSEILLE-12E
Appartement à MARSEILLE-12E
Appartement à MARSEILLE-12E
Appartement à MARSEILLE-12E
Appartement à MARSEILLE-12E
Appartement à MARSEILLE-12E
Appartement à MARSEILLE-12E
Appartement à MARSEILLE-12E
Géorisques

Les informations sur les risques auxquels ce bien est exposé sont disponibles sur le site Géorisques : www.georisques.gouv.fr

Ce site est protégé par hCaptcha Politique de confidentialité et Conditions d’utilisation s’appliquent.