Bénéficiez des services de nos partenaires locaux soigneusement sélectionnés
pour vous accompagner dans votre parcours d'achat immobilier

2 pièces rénové avec grande terrasse Paris 17e

— Paris-17e 75017 —
569 000 €
41 m²
2 pièces
parkingbalcon/terrasse

Nos partenaires locaux
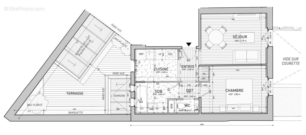
Situé au sein d'une charmante copropriété en cours de rénovation intégrale, découvrez ce superbe appartement 2 pièces au 1er étage de 41,91 m² habitables, complétés par deux terrasses de 14 et 8m².
L'entrée de l'appartement dessert un séjour/cuisine de 23,60m². La chambre, de 12,29 m², dispose d'une belle hauteur sous plafond avec parquet d'origine rénové. Une salle d'eau avec vasque en pierre naturelle et douche à l'italienne, ainsi qu'un WC séparé, complètent l'agencement de ce bien.
Les prestations intérieures sont de qualité : parquet rénové dans les pièces sèches, carrelage grès cérame dans les pièces humides, menuiseries extérieures en double vitrage, chauffage électrique individuel par radiateurs à inertie. Le confort acoustique et thermique est assuré grâce aux doublages et aux équipements techniques performants (VMC individuelle, ballon d'eau chaude plat, etc.).
La terrasse, est aménagée en bois exotique sur plots et entourée de pare-vues élégants. Des bacs plantés agrémentent l'espace, créant une atmosphère végétale.
La résidence, répartie en deux bâtiments desservis chacun par une cage d'escalier, fait l'objet d'une rénovation globale menée par un promoteur reconnu. Les parties communes bénéficient d'un traitement architectural raffiné avec miroirs, cimaises, éclairages soignés et tapis d'escalier. Un local à vélos, des caves, ainsi qu'un système de contrôle d'accès par badge et digicode complètent les équipements collectifs. Ce programme de réhabilitation offre un cadre de vie sécurisé.
Contactez-nous pour plus d'informations !
Cave incluse dans le prix
Images d'illustration, non contractuelles !
Voir plus

Référence: 86848700
Barème des honoraires
DPE
A
B
C
D
E
F
G
GES
A
B
C
D
E
F
G
Appartement à PARIS-17E
Appartement à PARIS-17E
Appartement à PARIS-17E
Appartement à PARIS-17E
Géorisques

Les informations sur les risques auxquels ce bien est exposé sont disponibles sur le site Géorisques : www.georisques.gouv.fr

Ce site est protégé par hCaptcha Politique de confidentialité et Conditions d’utilisation s’appliquent.