Bénéficiez des services de nos partenaires locaux soigneusement sélectionnés
pour vous accompagner dans votre parcours d'achat immobilier

Bel appartement T3 idéal investisseur

— Besancon 25000 —
171 000 €
65 m²
3 pièces

Nos partenaires locaux
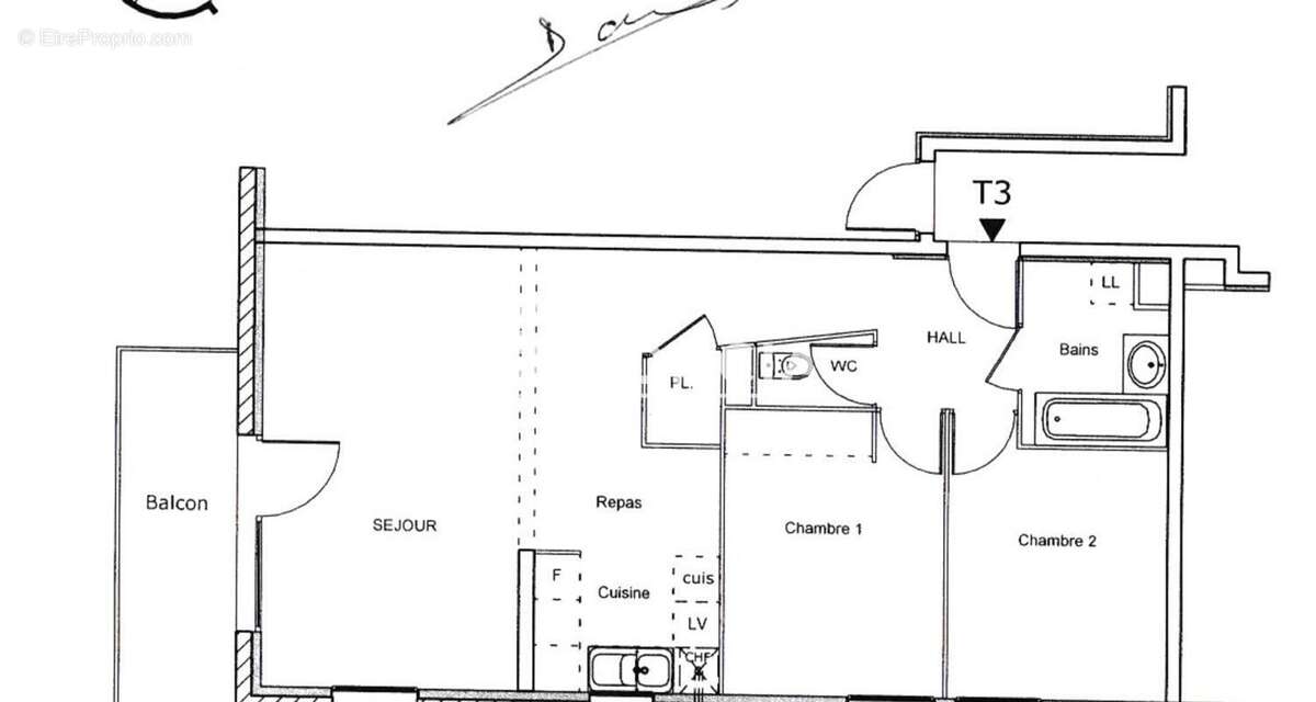
Foncia vous propose de découvrir ce charmant appartement 3 pièces de 66 m², idéalement situé au sein d'une copropriété récente et bien entretenue. Actuellement loué, il constitue une belle opportunité d'investissement.
Situé au 1er étage d'un immeuble de 2 étages, cet appartement lumineux vous séduira par son cadre de vie agréable. Vous profiterez d'un spacieux salon-séjour baigné de lumière, ouvert sur une grande terrasse de 13.50 m², parfaite pour vos moments de détente en extérieur, d'une cuisine aménagée, de deux belles chambres avec parquet, d'une salle de bains ainsi que de WC indépendants.
Un garage individuel de 17 m² vient compléter ce bien.
Le chauffage est individuel au gaz. Les dépenses énergétiques annuelles estimées selon le nouveau DPE en vigueur s'élèvent entre 870 € et 1220€ (prix moyens des énergies indexés sur les années 2021, 2022, 2023 (abonnement compris).

Ce bien est actuellement loué avec un bail en cours depuis mars 2019.

La copropriété compte 28 lots principaux répartis en 3 bâtiments et n'a pas de procédure en cours.
Les informations sur les risques auxquels ce bien est exposé sont disponibles sur le site Géorisques.
Les charges annuelles incombant aux propriétaires s'élèvent à 1858,31€ comprenant l'eau froide et les charges communes générales.
Les honoraires sont à la charge du vendeur.
Voir plus

Référence: 00777955
Honoraires à la charge du vendeur.
Barème des honoraires
DPE
A
B
C
D
E
F
G
GES
A
B
C
D
E
F
G
Appartement à BESANCON
Appartement à BESANCON
Appartement à BESANCON
Appartement à BESANCON
Appartement à BESANCON
Appartement à BESANCON
Géorisques

Les informations sur les risques auxquels ce bien est exposé sont disponibles sur le site Géorisques : www.georisques.gouv.fr

Ce site est protégé par hCaptcha Politique de confidentialité et Conditions d’utilisation s’appliquent.