Bénéficiez des services de nos partenaires locaux soigneusement sélectionnés
pour vous accompagner dans votre parcours d'achat immobilier

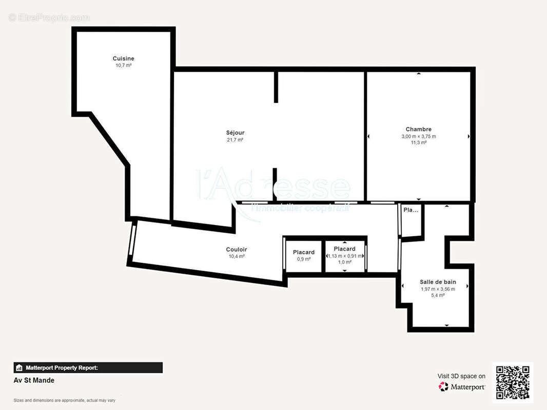
Grand 2 P / 1 chambre - 62.5m² - Au pied du métro PICPUS // Balcon

— Paris-12e 75012 —
554 900 €
62 m²
2 pièces
balcon/terrasseascenseur

Nos partenaires locaux
** Visite Virtuelle DISPONIBLE ** ------------------------------- PROFESSIONS LIBERALES AUTORISEES ------------------------------- L'Adresse Paris 12 vous propose cet appartement actuellement configuré en 2P/1 chambre, de 62.5m² , situé dans le 12ème arrondissement, à proximité immédiate de notre agence, et à 2 pas de la rue du rendez-vous. Il se trouve dans une très belle copropriété semi-récente recherchée, très bien entretenue et avec gardien. Vous pourrez également profiter d'un grand local à vélo sécurisé au rez-de-chaussée, spécialement prévu à cet effet. Situé au 2ème étage avec ascenseur, cet appartement donne sur la terrasse végétalisée de la copropriété. En très bon état général, mais nécessitant une rénovation complète, il est composé de : - 1 entrée - 1 chambre - 1 grande cuisine d'environ 12m², ouvrable sur le séjour - 1 double séjour d'environ 22m², qu'il est possible de refermer pour créer une 2ème vraie chambre - 1 salle de bains + WC - plusieurs placards Toutes les fenêtres sont en double vitrage à isolation renforcée, et ont été changées récemment. Celle de la cuisine est en + équipée d'un volet roulant électrique. Cerise sur le gâteau : un petit balcon pour déguster votre café du matin. Travaux de rénovation à prévoir pour réagencer les pièces et redécorer les espaces selon vos goûts. Provisions pour charges courantes : environ 3.460 euros/an , incluant eauc Taxe foncière 2025 : 1.293 euros Honoraires à la charge du vendeur Pas de procédure en cours. A VISITER RAPIDEMENT ! Pour plus d'informations, contactez votre conseillère l'Adresse : Jessica ATLANI Agent commercial (EI) immatriculée au RSAC de CRETEIL sous le numéro 898 815 089, au [Coordonnées masquées] Copropriété de 153 lots - dont 53 lots habitation. Charges annuelles : 3462 euros.
Voir plus

Référence: 0272
Bien en copropriété. Nombre de lots : 153. Charges de copropriété : 3462 €.
Honoraires à la charge du vendeur.
Barème des honoraires
DPE
A
B
C
D
E
F
G
GES
A
B
C
D
E
F
G
Appartement à PARIS-12E
Appartement à PARIS-12E
Appartement à PARIS-12E
Appartement à PARIS-12E
Appartement à PARIS-12E
Appartement à PARIS-12E
Appartement à PARIS-12E
Appartement à PARIS-12E
Appartement à PARIS-12E
Appartement à PARIS-12E
Appartement à PARIS-12E
Appartement à PARIS-12E
Appartement à PARIS-12E
Appartement à PARIS-12E
Appartement à PARIS-12E
Appartement à PARIS-12E
Appartement à PARIS-12E
Appartement à PARIS-12E
Géorisques

Les informations sur les risques auxquels ce bien est exposé sont disponibles sur le site Géorisques : www.georisques.gouv.fr

Ce site est protégé par hCaptcha Politique de confidentialité et Conditions d’utilisation s’appliquent.