Bénéficiez des services de nos partenaires locaux soigneusement sélectionnés
pour vous accompagner dans votre parcours d'achat immobilier

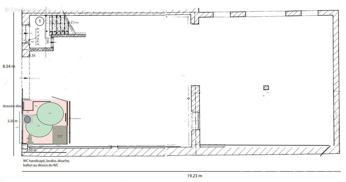
Fonds de commerce La Londe Les Maures 130 m2

— La Londe-Les-Maures 83250 —
394 000 €
130 m²

Nos partenaires locaux
Emplacement stratégique : En plein coeur de La Londe-les-Maures, profitez d'une visibilité exceptionnelle et d'un passage piétonnier et automobile dense. Idéal pour commerce, bureau, activité libérale ou investissement locatif. Surface totale : 130 m², entièrement neuf et prêt à être exploité. Équipements : Local équipé de douche, toilettes et lave-mains, conforme aux normes d'accessibilité et d'hygiène. Modulable : Possibilité de diviser l'espace en plusieurs cellules selon vos besoins, offrant une grande flexibilité d'aménagement. Investissement rentable : Potentiel de rendement locatif attractif grâce à la forte demande en centre-ville et à la rareté des locaux neufs disponibles. Atouts clés : Local neuf, clé en main, sans travaux à prévoir Emplacement central, proche de toutes commodités Visibilité et accessibilité optimales Possibilité de division en plusieurs espaces Idéal pour commerçants, professions libérales ou investisseurs ? Contactez-nous dès maintenant pour visiter ce local d'exception et concrétiser votre projet Les informations sur les risques auxquels ce bien est exposé sont disponibles sur le site Géorisques https://www.georisques.gouv.fr/Si vous voulez plus d'informations ou avez besoin d'aide dans votre recherche de logement, entrez rapidement en contact avec votre agent commercial Laurent PREVOT [Coordonnées masquées] rcs 484230982 Laurent PREVOT (EI) Agent Commercial - Numéro RSAC : 484230982 EI - .
Voir plus

Référence: 27
Bien en copropriété. Nombre de lots : 2. Procédure en cours.
Honoraires à la charge du vendeur.
Barème des honoraires
Commerce à LA LONDE-LES-MAURES
Commerce à LA LONDE-LES-MAURES
Commerce à LA LONDE-LES-MAURES
Commerce à LA LONDE-LES-MAURES
Commerce à LA LONDE-LES-MAURES
Géorisques

Les informations sur les risques auxquels ce bien est exposé sont disponibles sur le site Géorisques : www.georisques.gouv.fr

Ce site est protégé par hCaptcha Politique de confidentialité et Conditions d’utilisation s’appliquent.