Bénéficiez des services de nos partenaires locaux soigneusement sélectionnés
pour vous accompagner dans votre parcours d'achat immobilier

Ancienne ferme rénovée

— Vignoux-Sur-Barangeon 18500 —
190 000 €
132 m² / 2 000 m²
5 pièces
jardinpiscine

Nos partenaires locaux
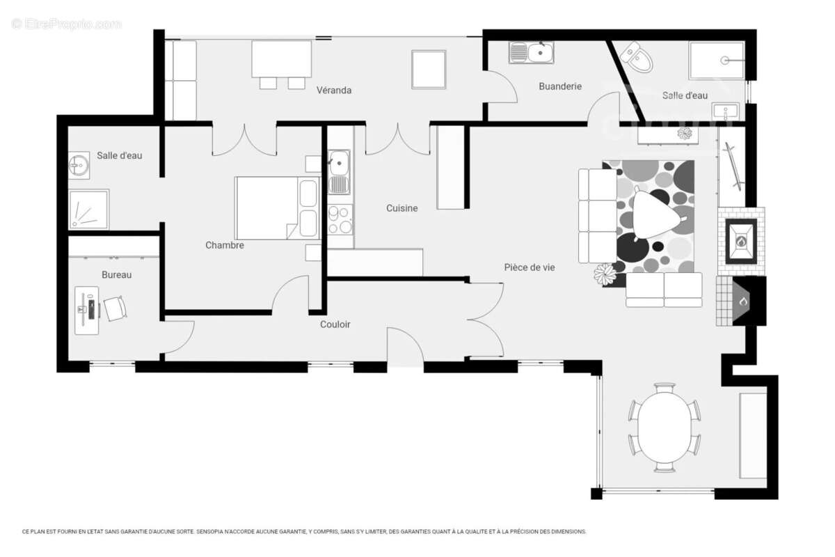
A vendre à Vignoux-sur-Barangeon, ancienne ferme rénovée de 1850.

Elle dispose de 132.71m² habitables, 5 pièces dont 3 chambres, double garage, piscine creusée, nombreuses dépendances, le tout sur un terrain de 2000m².

Elle se compose au rez-de-chaussée d'une entrée, pièce de vie avec insert bois et ancien four à pain, cuisine semi ouverte donnant sur la véranda et la piscine, une salle d'eau avec wc, buanderie, un bureau/dressing ainsi qu'une suite parental composée d'une chambre avec salle d'eau ouverte.

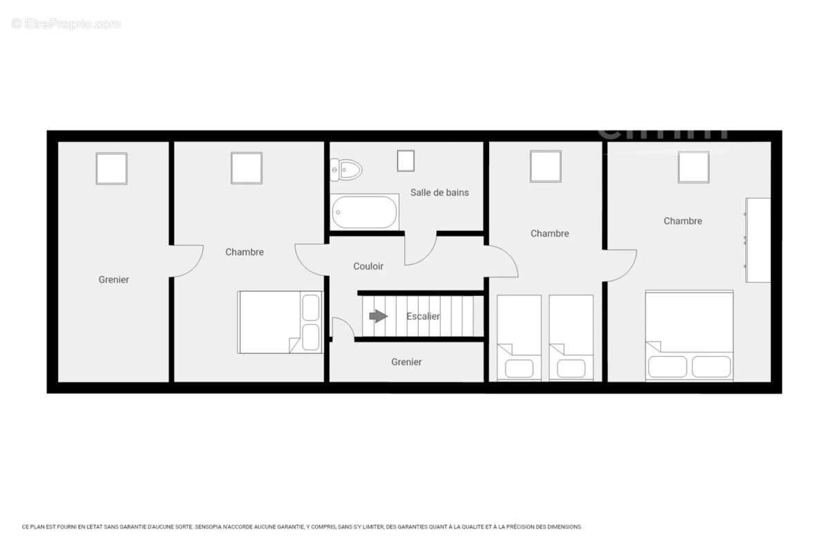
A l'étage un palier dessert une salle de bain avec wc (à rafraichir), une chambre avec grand dressing, et deux chambres en enfilade (compté comme une seule).

Elle dispose également d'un grand double garage de 44m², terrasse, piscine creusée (max 2m30 de profondeur) avec volet roulant motorisé, terrasse sous préau semi ouvert ainsi qu'un grand espace de stockage couvert de 73m² et d'un espace cave.

Jardin paysagé clos avec portail motorisé.
Chauffage électrique et insert bois.
Assainissement individuel récent. Honoraires à la charge du vendeur - Montant estimé des dépenses annuelles d'énergie pour un usage standard, établi à partir des prix de l'énergie de l'année 2021 : 3290€ ~ 4470€ - Floris JOLY - Agent commercial - EI - RSAC BOURGES 819184201 - RCS 4[Coordonnées masquées]465 L'immobilier vous intéresse, contactez-moi
Voir plus

Référence: 86954545
Barème des honoraires
DPE
A
B
C
D
E
F
G
GES
A
B
C
D
E
F
G
Maison à VIGNOUX-SUR-BARANGEON
Maison à VIGNOUX-SUR-BARANGEON
Maison à VIGNOUX-SUR-BARANGEON
Maison à VIGNOUX-SUR-BARANGEON
Maison à VIGNOUX-SUR-BARANGEON
Maison à VIGNOUX-SUR-BARANGEON
Maison à VIGNOUX-SUR-BARANGEON
Maison à VIGNOUX-SUR-BARANGEON
Maison à VIGNOUX-SUR-BARANGEON
Maison à VIGNOUX-SUR-BARANGEON
Maison à VIGNOUX-SUR-BARANGEON
Maison à VIGNOUX-SUR-BARANGEON
Maison à VIGNOUX-SUR-BARANGEON
Maison à VIGNOUX-SUR-BARANGEON
Maison à VIGNOUX-SUR-BARANGEON
Maison à VIGNOUX-SUR-BARANGEON
Maison à VIGNOUX-SUR-BARANGEON
Maison à VIGNOUX-SUR-BARANGEON
Maison à VIGNOUX-SUR-BARANGEON
Maison à VIGNOUX-SUR-BARANGEON
Maison à VIGNOUX-SUR-BARANGEON
Maison à VIGNOUX-SUR-BARANGEON
Maison à VIGNOUX-SUR-BARANGEON
Maison à VIGNOUX-SUR-BARANGEON
Maison à VIGNOUX-SUR-BARANGEON
Maison à VIGNOUX-SUR-BARANGEON
Maison à VIGNOUX-SUR-BARANGEON
Géorisques

Les informations sur les risques auxquels ce bien est exposé sont disponibles sur le site Géorisques : www.georisques.gouv.fr

Ce site est protégé par hCaptcha Politique de confidentialité et Conditions d’utilisation s’appliquent.