Maison 73 m² à Penta-Di-Casinca

— Penta-Di-Casinca 20213 —
279 500 €
73 m² / 193 m²
3 pièces
parkingjardin

Iad France - Claude Durand vous propose : Maison Neuve T3 avec Jardin - Penta-di-Casinca
Localisation : Secteur Folelli, Route de San Pellegrino
Idéalement située au sein du lotissement résidentiel 'Fiore d'Alisu', cette maison mitoyenne de type T3 en R + 1 offre un cadre de vie privilégié. Emplacement stratégique par excellence, le bien se trouve à seulement 3 minutes de la mer (plage de San Pellegrino) et à proximité immédiate du centre-ville de Folelli, de ses commerces, écoles et services. Livrée en 2026, cette construction neuve bénéficie de toutes les garanties décennales.

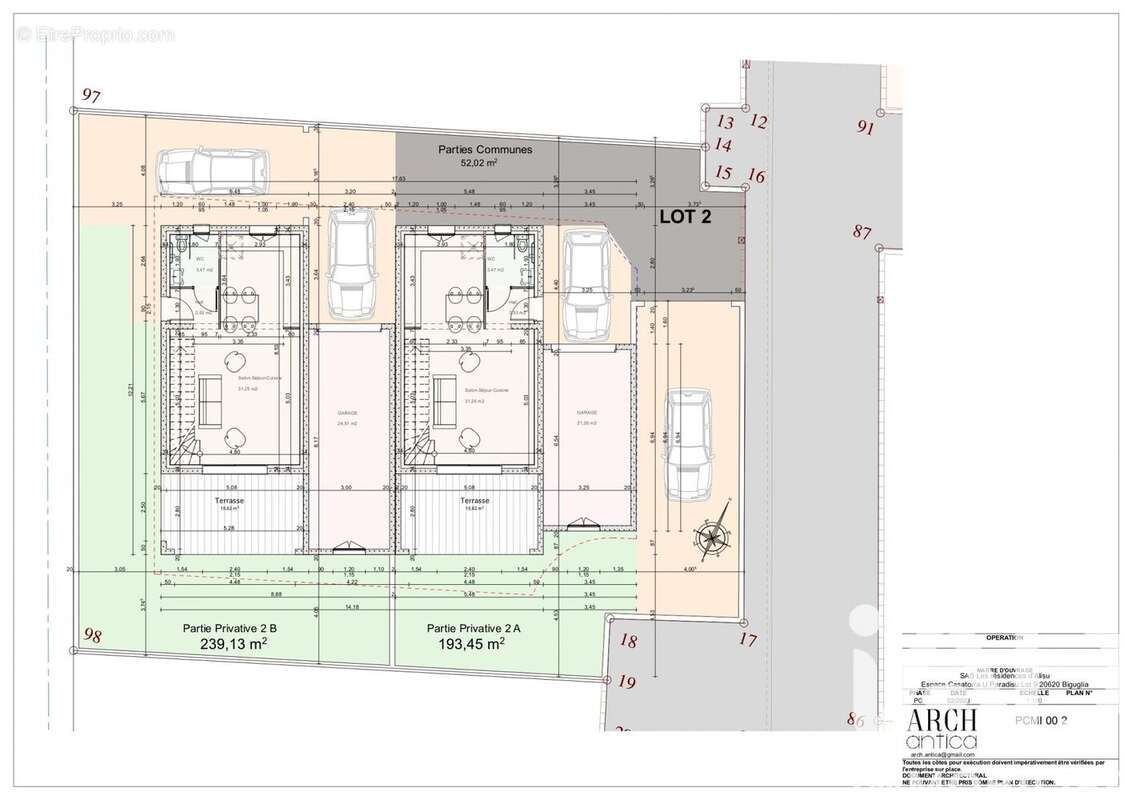
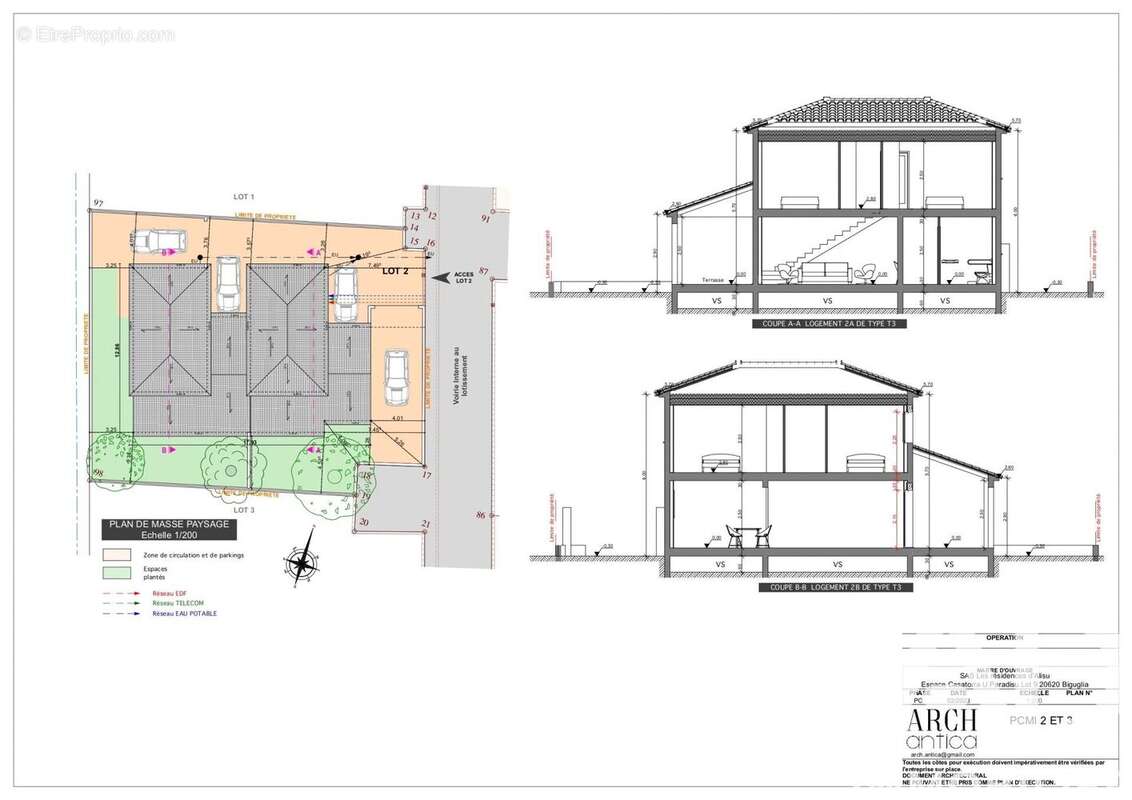
Descriptif du bien (Lot 2A)
La maison dispose d'une surface habitable de 73,02 m² implantée sur une parcelle privative totale de 193,45 m².

Rez-de-chaussée : Espace de vie

Salon-Cuisine : Une pièce de vie lumineuse de 31,25 m² ouvrant sur l'extérieur.

Hall d'entrée et WC indépendant.

Terrasse : Un espace extérieur de 15,62 m² idéal pour les repas en plein air.

Étage : Espace nuit

Chambre 1 : 12,49 m².

Chambre 2 : 11,00 m².

Dressing : Un espace de rangement dédié de 4,13 m² pour un confort optimal.

Salle de bain : 5,94 m².

Dégagement : 2,21 m².

Extérieurs et Annexes
Garage : Un garage privatif de 21,26 m² intégré.

Stationnement : Une place de parking extérieure supplémentaire sur le terrain.

Jardin : Un espace extérieur privatif de 102,60 m² (incluant les stationnements), livré clôturé et aménagé selon les prescriptions paysagères du lotissement.

Prestations et Environnement
Qualité de construction : Matériaux traditionnels, isolation performante et menuiseries en Aluminium ou PVC.

Viabilité complète : Terrain plat entièrement raccordé aux réseaux d'eau, d'électricité, de télécommunications et à l'assainissement collectif.

Cadre de vie : Quartier calme et résidentiel, composé exclusivement de villas individuelles.

A visiter sans tarder !

Honoraires d'agence à la charge du vendeur.
Information d'affichage énergétique sur ce bien : classe ENERGIE A indice 60 et classe CLIMAT A indice 2. Les informations sur les risques auxquels ce bien est exposé, y compris l'obligation légale de débroussaillement, sont disponibles sur le site Géorisques : http://www.georisques.gouv.fr.
La présente annonce immobilière a été rédigée sous la responsabilité éditoriale de M Claude Durand mandataire indépendant en immobilier (sans détention de fonds), agent commercial de la SAS I@D France immatriculé au RSAC de NIMES sous le numéro 918229998, titulaire de la carte de démarchage immobilier pour le compte de la société I@D France SAS.Informations LOI ALUR : Honoraires charge vendeur. (gedeon_6727_33145772)
Voir plus

Référence: 2011054
Honoraires à la charge du vendeur.
Barème des honoraires
DPE
A
B
C
D
E
F
G
GES
A
B
C
D
E
F
G
Photo 1 - Maison à PENTA-DI-CASINCA
Photo 1
Photo 2 - Maison à PENTA-DI-CASINCA
Photo 2
Photo 3 - Maison à PENTA-DI-CASINCA
Photo 3
Photo 4 - Maison à PENTA-DI-CASINCA
Photo 4
Photo 5 - Maison à PENTA-DI-CASINCA
Photo 5
Photo 6 - Maison à PENTA-DI-CASINCA
Photo 6
Photo 7 - Maison à PENTA-DI-CASINCA
Photo 7
Géorisques

Les informations sur les risques auxquels ce bien est exposé sont disponibles sur le site Géorisques : www.georisques.gouv.fr

Ce site est protégé par hCaptcha Politique de confidentialité et Conditions d’utilisation s’appliquent.