Maison 73 m² à Penta-Di-Casinca

— Penta-Di-Casinca 20213 —
279 500 €
73 m² / 239 m²
3 pièces
parkingbalcon/terrassejardin

Iad France - Claude Durand vous propose : Maison Neuve T3 avec Jardin - Penta-di-Casinca
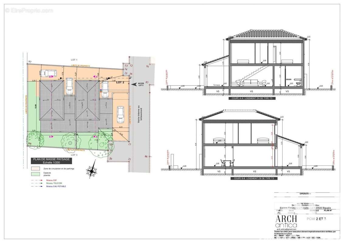
Localisation : Secteur Folelli, Route de San Pellegrino
Située au cOEur du lotissement 'Fiore d'Alisu', cette maison mitoyenne de type T3 en R + 1 offre un emplacement stratégique alliant calme résidentiel et commodités. Vous profiterez d'une proximité immédiate avec la mer, située à seulement 3 minutes, ainsi que d'un accès rapide au centre-ville de Folelli et à ses commerces. Livrée en 2026, cette construction bénéficie de toutes les garanties décennales.

Descriptif du bien
La maison dispose d'une surface habitable de 73,02 m² implantée sur une parcelle privative totale de 239,13 m².

Rez-de-chaussée : Espace de vie

Salon-Cuisine : Une pièce de vie lumineuse de 31,25 m².

Hall d'entrée et WC indépendant.

Terrasse : Un espace extérieur de 15,62 m² pour vos moments de détente.

Étage : Espace nuit

Chambre 1 : 12,49 m².

Chambre 2 : 11,00 m².

Dressing : Un espace de rangement dédié de 4,13 m².

Salle de bain : 5,94 m².

Dégagement : 2,21 m².

Extérieurs et Annexes
Garage : Un grand garage privatif de 24,51 m².

Stationnement : Une place de parking extérieure privative sur le terrain.

Jardin : Un bel espace extérieur clôturé et planté de 145,22 m² (incluant les stationnements).

Situation et Prestations
Emplacement idéal : À 3 minutes des plages de San Pellegrino et à proximité immédiate du centre-ville (écoles, commerces, services).

Construction de qualité : Matériaux traditionnels avec menuiseries performantes en Aluminium ou PVC.

Viabilité : Terrain plat entièrement raccordé aux réseaux d'eau, d'électricité, de télécommunications et à l'assainissement public.

A visiter sans tarder !

Honoraires d'agence à la charge du vendeur.
Information d'affichage énergétique sur ce bien : classe ENERGIE A indice 60 et classe CLIMAT A indice 2. Les informations sur les risques auxquels ce bien est exposé, y compris l'obligation légale de débroussaillement, sont disponibles sur le site Géorisques : http://www.georisques.gouv.fr.
La présente annonce immobilière a été rédigée sous la responsabilité éditoriale de M Claude Durand mandataire indépendant en immobilier (sans détention de fonds), agent commercial de la SAS I@D France immatriculé au RSAC de NIMES sous le numéro 918229998, titulaire de la carte de démarchage immobilier pour le compte de la société I@D France SAS.Informations LOI ALUR : Honoraires charge vendeur. (gedeon_6727_33152207)
Voir plus

Référence: 2011721
Honoraires à la charge du vendeur.
Barème des honoraires
DPE
A
B
C
D
E
F
G
GES
A
B
C
D
E
F
G
Photo 1 - Maison à PENTA-DI-CASINCA
Photo 1
Photo 2 - Maison à PENTA-DI-CASINCA
Photo 2
Photo 3 - Maison à PENTA-DI-CASINCA
Photo 3
Photo 4 - Maison à PENTA-DI-CASINCA
Photo 4
Photo 5 - Maison à PENTA-DI-CASINCA
Photo 5
Photo 6 - Maison à PENTA-DI-CASINCA
Photo 6
Photo 7 - Maison à PENTA-DI-CASINCA
Photo 7
Géorisques

Les informations sur les risques auxquels ce bien est exposé sont disponibles sur le site Géorisques : www.georisques.gouv.fr

Ce site est protégé par hCaptcha Politique de confidentialité et Conditions d’utilisation s’appliquent.