1. Accueil
  2. > Terrains à vendre
  3. > Mayenne (53)
  4. > Change

Terrains à vendre à CHANGE (53)

Terrain à CHANGE
Terrain 452 m² à Change
CHANGE
jardin
TERRAIN À CHANGÉ DANS UN QUARTIER RECHERCHÉ PRÉSENTATION DU BIEN Situé à Changé, dans un quartier recherché, ce terrain à construire bénéficie d'une surface de 452 m². Il offre une ...
90 500 €
MAISONS FRANCE CONFORT Bonchamp-lès-Laval
Terrain à CHANGE
Terrain 419 m² à Change
CHANGE
jardin
VENTE d'un terrain de 419 m² à Changé IDÉALEMENT SITUÉ - PROCHE DE LAVAL À Changé (53810) à deux pas de Laval, donnez vie à la maison de vos rêves sur ce terrain de 419 m². Dans un quarti ...
115 000 €
MAISONS FRANCE CONFORT Bonchamp-lès-Laval
Terrain à CHANGE
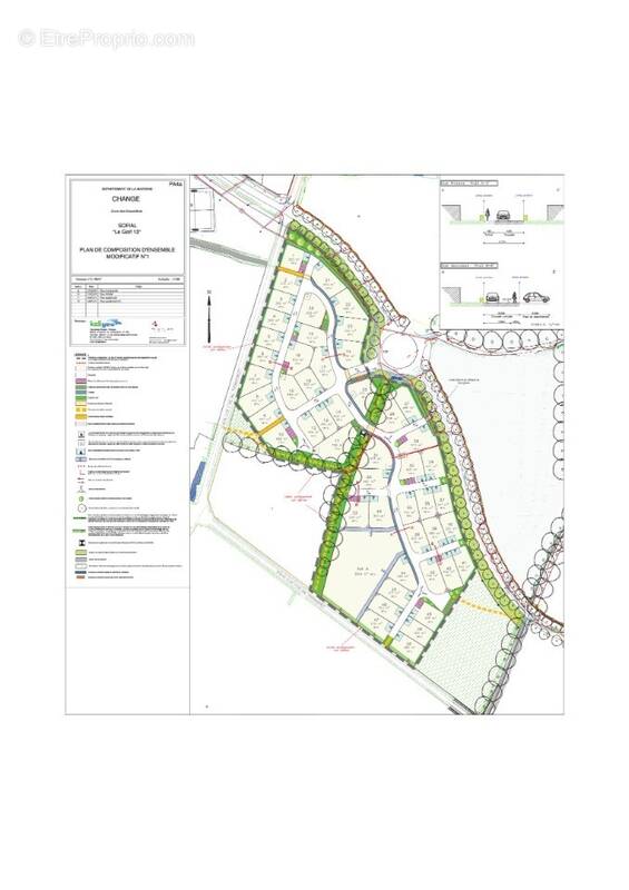
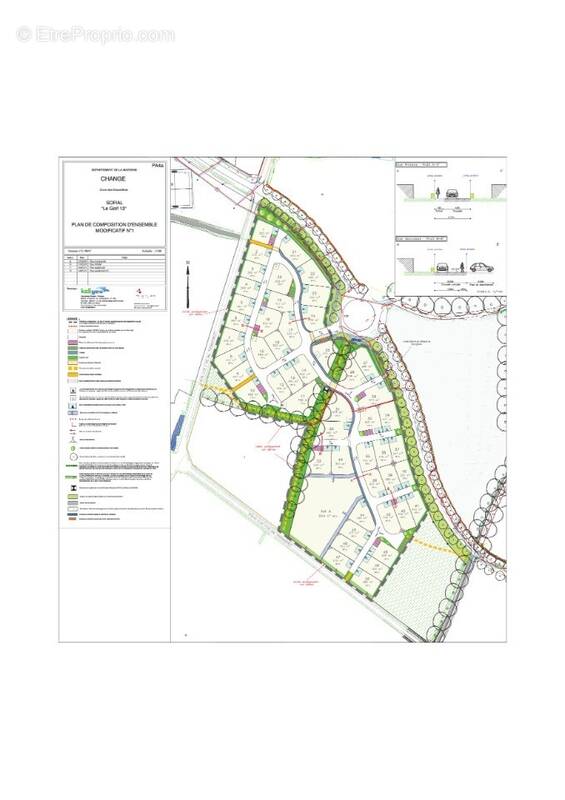
Golf XIII à seulement 5 km de Laval
CHANGE
Le lotissement "Golf XIII" est le lieu idéal pour construire votre nouvelle maison dans un cadre de vie exceptionnel. Situé sur le domaine des golfs à Changé, à seulement 5 km de Laval, ...
54 000 €
LELIEVRE Immobilier Terrains à bâtir
Terrain à CHANGE
Terrain 452 m² à Change
CHANGE
jardin
VENTE : terrain de 452 m² à Changé EMPLACEMENT PRIVILÉGIÉ - VUE PANORAMIQUE À quelques kilomètres de Laval à Changé (53810), terrain de 452 m². Il profite d'une vue panoramique. Dans un q ...
90 400 €
MAISONS FRANCE CONFORT Bonchamp-lès-Laval
Terrain à CHANGE
Terrain à bâtir de 524 m²,Libre de constructeur
CHANGE
Change53810 :Ce terrain à bâtir est une toile vierge offrant une surface idéale pour réaliser un projet de construction sur mesure. Libéré de tout constructeur, borné et viabilisé, il garantit une ...
112 800 €
megAgence
Terrain à CHANGE
Terrain à bâtir de 536 m²,libre de constructeur
CHANGE
CHANGE 53 Libre de constructeur, ce terrain à bâtir de 536 m² offre un vaste espace pour donner vie à un projet résidentiel personnalisé. Sa configuration régulière et sa taille généreuse permette ...
115 200 €
megAgence
Terrain à CHANGE
Terrain à bâtir de 462 m²Libre de constructeur
CHANGE
CHANGE 53 Libre de constructeur, ce terrain à bâtir de 536 m² offre un vaste espace pour donner vie à un projet résidentiel personnalisé. Sa configuration régulière et sa taille généreuse permette ...
99 400 €
megAgence
Terrain à CHANGE
Terrain à bâtir de 451 m² Libre de constructeur
CHANGE
CHANGE 53 Libre de constructeur, ce terrain à bâtir de 536 m² offre un vaste espace pour donner vie à un projet résidentiel personnalisé. Sa configuration régulière et sa taille généreuse permette ...
98 200 €
megAgence
Terrain à CHANGE
Terrain à bâtir de 452 m²Libre de constructeur
CHANGE
CHANGE 53 Libre de constructeur, ce terrain à bâtir de 536 m² offre un vaste espace pour donner vie à un projet résidentiel personnalisé. Sa configuration régulière et sa taille généreuse permette ...
98 400 €
megAgence
Photo 1 - Terrain à CHANGE
Terrain 339 m² à Change
CHANGE
Iad France - Faël Soulé Ali vous propose : CHANGÉ - TERRAIN DE LOISIR AVEC UNE CABANE DE PÊCHE ! Situé dans un environnement naturel et calme, ce terrain de loisir bénéficie d'un emplacement ...
30 000 €
iad France
Terrain à CHANGE
Terrain à bâtir de 327 m² à CHANGE (53)
CHANGE
Portes Ouvertes de MAISONS SOCOREN du 29 au 30 mai 2026 de 10h à 18h Adresse: 10 impasse des Tulipiers 35133 BEAUCE Emplacement privilégié, offrant un accès rapide aux écoles, commerces et servic ...
72 900 €
Maisons SOCOREN
Terrain à CHANGE
Terrain à bâtir de 442 m² à CHANGE (53)
CHANGE
Portes Ouvertes de MAISONS SOCOREN du 29 au 30 mai 2026 de 10h à 18h Adresse: 10 impasse des Tulipiers 35133 BEAUCE Emplacement privilégié, offrant un accès rapide aux écoles, commerces et servic ...
88 400 €
Maisons SOCOREN
Terrain à CHANGE
Terrain à bâtir de 522 m² à CHANGE (53)
CHANGE
Portes Ouvertes de MAISONS SOCOREN du 29 au 30 mai 2026 de 10h à 18h Adresse: 10 impasse des Tulipiers 35133 BEAUCE proche LAVAL proche commerce et école Prix : 65000 €. Sur ce terrain de 522 m ...
65 000 €
Maisons SOCOREN
Terrain à CHANGE
Terrain à bâtir de 425 m² à CHANGE (53)
CHANGE
Portes Ouvertes de MAISONS SOCOREN du 29 au 30 mai 2026 de 10h à 18h Adresse: 10 impasse des Tulipiers 35133 BEAUCE Emplacement privilégié, offrant un accès rapide aux écoles, commerces et servic ...
85 000 €
Maisons SOCOREN
Terrain à CHANGE
Golf XIII à seulement 5 km de Laval
CHANGE
Le lotissement "Golf XIII" est le lieu idéal pour construire votre nouvelle maison dans un cadre de vie exceptionnel. Situé sur le domaine des golfs à Changé, à seulement 5 km de Laval, ...
56 000 €
LELIEVRE Immobilier Terrains à bâtir
Terrain à CHANGE
Golf XIII à seulement 5 km de Laval
CHANGE
Le lotissement "Golf XIII" est le lieu idéal pour construire votre nouvelle maison dans un cadre de vie exceptionnel. Situé sur le domaine des golfs à Changé, à seulement 5 km de Laval, ...
64 000 €
LELIEVRE Immobilier Terrains à bâtir
Terrain à CHANGE
Golf XIII à seulement 5 km de Laval
CHANGE
Le lotissement "Golf XIII" est le lieu idéal pour construire votre nouvelle maison dans un cadre de vie exceptionnel. Situé sur le domaine des golfs à Changé, à seulement 5 km de Laval, ...
67 000 €
LELIEVRE Immobilier Terrains à bâtir
Terrain à CHANGE
Golf XIII à seulement 5 km de Laval
CHANGE
Le lotissement "Golf XIII" est le lieu idéal pour construire votre nouvelle maison dans un cadre de vie exceptionnel. Situé sur le domaine des golfs à Changé, à seulement 5 km de Laval, ...
63 000 €
LELIEVRE Immobilier Terrains à bâtir
Terrain à CHANGE
Golf XIII à seulement 5 km de Laval
CHANGE
Le lotissement "Golf XIII" est le lieu idéal pour construire votre nouvelle maison dans un cadre de vie exceptionnel. Situé sur le domaine des golfs à Changé, à seulement 5 km de Laval, ...
61 000 €
LELIEVRE Immobilier Terrains à bâtir
Terrain à CHANGE
Golf XIII à seulement 5 km de Laval
CHANGE
Le lotissement "Golf XIII" est le lieu idéal pour construire votre nouvelle maison dans un cadre de vie exceptionnel. Situé sur le domaine des golfs à Changé, à seulement 5 km de Laval, ...
61 000 €
LELIEVRE Immobilier Terrains à bâtir
Terrain à CHANGE
Golf XIII à seulement 5 km de Laval
CHANGE
Le lotissement "Golf XIII" est le lieu idéal pour construire votre nouvelle maison dans un cadre de vie exceptionnel. Situé sur le domaine des golfs à Changé, à seulement 5 km de Laval, ...
66 000 €
LELIEVRE Immobilier Terrains à bâtir
Terrain à CHANGE
Golf XIII à seulement 5 km de Laval
CHANGE
Le lotissement "Golf XIII" est le lieu idéal pour construire votre nouvelle maison dans un cadre de vie exceptionnel. Situé sur le domaine des golfs à Changé, à seulement 5 km de Laval, ...
56 000 €
LELIEVRE Immobilier Terrains à bâtir
Terrain à CHANGE
Golf XIII à seulement 5 km de Laval
CHANGE
Le lotissement "Golf XIII" est le lieu idéal pour construire votre nouvelle maison dans un cadre de vie exceptionnel. Situé sur le domaine des golfs à Changé, à seulement 5 km de Laval, ...
65 000 €
LELIEVRE Immobilier Terrains à bâtir
Terrain à CHANGE
Golf XIII à seulement 5 km de Laval
CHANGE
Le lotissement "Golf XIII" est le lieu idéal pour construire votre nouvelle maison dans un cadre de vie exceptionnel. Situé sur le domaine des golfs à Changé, à seulement 5 km de Laval, ...
65 000 €
LELIEVRE Immobilier Terrains à bâtir
Terrain à CHANGE
Golf XIII à seulement 5 km de Laval
CHANGE
Le lotissement "Golf XIII" est le lieu idéal pour construire votre nouvelle maison dans un cadre de vie exceptionnel. Situé sur le domaine des golfs à Changé, à seulement 5 km de Laval, ...
68 000 €
LELIEVRE Immobilier Terrains à bâtir
Terrain à CHANGE
Terrains libres de constructeurs
CHANGE
L'ESPRIT PAISIBLE ET FAMILIAL D'UN HAMEAU Changé, proche du centre bourg, les anciennes pépinières vont faire naître le bonheur d'un nouveau cadre de vie merveilleusement paysager. ...
90 000 €
Kerisel Immobilier