1. Accueil
  2. > Terrains à vendre
  3. > Gironde (33)
  4. > Martillac

Terrains à vendre à MARTILLAC (33)

52 Terrains à vendre à Martillac

Précisez votre recherche :
terrains constructible

Terrain à MARTILLAC
Terrain à bâtir – 1135 m² – Martillac (33650)
MARTILLAC
À vendre, beau terrain à bâtir d'une superficie totale de 1135 m², idéalement situé sur la commune recherchée de Martillac. Il comprend 438 m² en zone Ub, donc constructibles, tandis que le ...
175 090 €
GIB Construction
Terrain à MARTILLAC
Votre future maison aux portes de Bordeaux dans un environnement exceptionnel à Martillac
MARTILLAC
Situé dans la charmante petite ville de Martillac, à 15 minutes du centre de Bordeaux et à deux pas des commerces et commodités. Projetez-vous sur ce magnifique terrain de 660 m2 en seconde ligne ...
188 900 €
GIB Construction
Terrain à MARTILLAC
BAISSE DE PRIX ! Exclusif ! Beau terrain à vendre de près de 1200 m², viabilisé – Martillac (33650)
MARTILLAC
Baisse de prix ! Surface rare sur le secteur ! Découvrez ce superbe terrain constructible de 1 156 m², idéalement situé au cœur de la commune recherchée de Martillac. Avec une emprise au sol de 4 ...
219 500 €
GIB Construction
Terrain à MARTILLAC
Terrain à bâtir viabilisé entre la Brède et Villenave d'Ornon
MARTILLAC
EXCLUSIVITÉ GIB CONSTRUCTION – TERRAIN VIABILISÉE À FORT POTENTIEL AUX PORTES DES SOURCES DE CAUDALIE Situé à proximité des prestigieuses Sources de Caudalie, ce terrain rare bénéficie d'un ...
189 000 €
GIB Construction
Terrain à MARTILLAC
EXCLUSIF ! Terrain de 660 m² hors lotissement à Martillac
MARTILLAC
Profitez de cette belle opportunité pour acquérir un terrain à bâtir viabilisé, situé dans un environnement calme et agréable à Martillac. Ce terrain de 660 m² en seconde ligne offre un cadre idé ...
189 030 €
GIB Construction
Terrain à MARTILLAC
Terrain 400 m² à Martillac
MARTILLAC
jardin
Martillac : terrain de 400 m² en vente PROCHE DE BORDEAUX À Martillac (33650) à 20 km de l'océan Atlantique et à deux pas de Bordeaux, imaginez la maison de vos rêves sur ce terrain de 40 ...
165 000 €
Maisons MCA - Ayguemorte
Terrain à MARTILLAC
Terrain à bâtir de 420 m² à MARTILLAC (33)
MARTILLAC
A 5mn du Bourg, en 1ère ligne, viabilisé, bonne exposition, proche des écoles, commerces et de toutes les commodités Prix : 165000 €. Sur ce terrain de 420 m² à MARTILLAC, GIB CONSTRUCTION vous ...
165 000 €
GIB CONSTRUCTION St Médard-d'Eyrans
Terrain à MARTILLAC
Terrain à bâtir de 568 m² à MARTILLAC (33)
MARTILLAC
Faites construire votre maison avec GIB Construction ! Possibilité de construire une maison en L jusqu'à 130 m² exposée à l'ouest, dans un secteur calme, sur un terrain de 568 m². Situé ...
189 000 €
GIB CONSTRUCTION Homexpo Bordeaux-Lac
Terrain à MARTILLAC
Terrain à bâtir de 598 m² à MARTILLAC (33)
MARTILLAC
Possibilité maison de plain pied, en 1ère ligne bonne exposition, proche des écoles, des commerces et des transports en commun Prix : 185000 €. Sur ce terrain de 598 m² à MARTILLAC, GIB CONSTRUC ...
185 000 €
GIB CONSTRUCTION St Médard-d'Eyrans
Terrain à MARTILLAC
Terrain viabilisé Martillac - emplacement idéal !
MARTILLAC
Vous cherchez un village où il fait bon vivre ? Installez à Martillac ! Commune dynamique et idéalement située. Moins de 20 kms de Bordeaux Centre. Terrain viabilisé et plat de 568 m², dans un pe ...
188 980 €
GIB Construction
Terrain à MARTILLAC
Terrain viabilisé 400 m² - emplacement idéal!
MARTILLAC
Nouveau à Martillac ! Commune dynamique et idéalement située. Moins de 20 kms de Bordeaux Centre. Terrain viabilisé et plat de 400 m², dans un petit lotissement au fond d'une impasse. Enviro ...
165 000 €
GIB Construction
Terrain à MARTILLAC
Terrain viabilisé Martillac - 928 m²
MARTILLAC
Offre exceptionnelle de - 30 000€ à découvrir rapidement ! Idéalement situé. Moins de 15 kms de Bordeaux Centre. Terrain viabilisé de 928 m², exposition Sud-Ouest, 280 m² d'emprise bâtie aut ...
189 850 €
GIB Construction
Terrain à MARTILLAC
Terrain 400 m² à Martillac
MARTILLAC
jardin
Martillac : terrain de 400 m² à vendre PROCHE DE BORDEAUX Terrain de 400 m² en vente à 20 km de l'océan Atlantique et à 17 km de Bordeaux. Ce terrain se situe dans Martillac (33650). Il y ...
165 000 €
Maisons MCA - Ayguemorte
Photo 1 - Terrain à MARTILLAC
Terrain 845 m² à Martillac
MARTILLAC
Iad France - Daisy Bernasconi vous propose : Terrain LIBRE CONSTRUCTEUR - VIABILISE à Martillac (33650) - 350 m² de surface plancher possibleVous recherchez un terrain à vendre à Martillac (33650) ...
209 800 €
iad France
Terrain à MARTILLAC
Terrain 930 m² à Martillac
MARTILLAC
jardin
Terrain viabilisé de 930 m² à Martillac Idéalement situé ,dans un environnement calme et recherché, à proximité immédiate du Château Smith Haut Lafitte et à seulement 20 minutes de Bordeaux. C ...
199 850 €
VILLAS MELROSE Bordeaux
Terrain à MARTILLAC
Terrain 500 m² à Martillac
MARTILLAC
jardin
Martillac : terrain de 500 m² en vente EMPLACEMENT PRIVILÉGIÉ - VUE SANS VIS-À-VIS Terrain de 500 m² à vendre à 20 km de la côte atlantique et à 17 km de Bordeaux. Ce terrain se situe bénéfici ...
173 000 €
Maisons MCA - Le Barp
Terrain à MARTILLAC
Terrain 490 m² à Martillac
MARTILLAC
jardin
VENTE d'un terrain de 490 m² à Martillac TERRAIN HORS LOTISSEMENT AVEC TOUT A L'EGOUT IDÉALEMENT SITUÉ - PROCHE DE BORDEAUX À Martillac (33650) à 20 km de la côte atlantique et à q ...
175 000 €
Maisons MCA - Ayguemorte
Photo 1 - Terrain à MARTILLAC
Terrain 858 m² à Martillac
MARTILLAC
Iad France - Laurence Gey vous propose : SUR MARTILLAC Baisse de prix unique pour ce terrain viabilisé ! À saisir très rapidement ! Secteur attractif. Libre de constructeur terrain à bâtir (lot 8) ...
199 850 €
iad France
Photo 1 - Terrain à MARTILLAC
Terrain 576 m² à Martillac
MARTILLAC
Iad France - Laurence Gey vous propose : Opportunité Rare : Terrain à Bâtir de 576 m² au COEur de Martillac ! Vous rêvez de construire la maison de vos rêves ? Nous avons le terrain idéal pour vou ...
210 000 €
iad France
Terrain à MARTILLAC
Terrain 845 m² à Martillac
MARTILLAC
Lotissement 'Les Hauts de Martillac”, idéalement situé dans un environnement calme et recherché, à proximité immédiate du Château Smith Haut Lafitte et à seulement 20 minutes de Bordeaux. - T ...
209 800 €
La Plaine De L'immo
Terrain à MARTILLAC
Terrain 856 m² à Martillac
MARTILLAC
Lotissement 'Les Hauts de Martillac”, idéalement situé dans un environnement calme et recherché, à proximité immédiate du Château Smith Haut Lafitte et à seulement 20 minutes de Bordeaux. - T ...
189 850 €
La Plaine De L'immo
Terrain à MARTILLAC
Terrain 858 m² à Martillac
MARTILLAC
Lotissement 'Les Hauts de Martillac”, idéalement situé dans un environnement calme et recherché, à proximité immédiate du Château Smith Haut Lafitte et à seulement 20 minutes de Bordeaux. - T ...
189 850 €
La Plaine De L'immo
Photo 1 - Terrain à MARTILLAC
Terrain 604 m² à Martillac
MARTILLAC
Iad France - Laurence Gey vous propose : Baisse de prix unique pour ce terrain viabilisé ! A saisir très rapidement ! Libre de constructeur terrain à bâtir de 604 m² environ sur MARTILLAC au calme ...
205 000 €
iad France
Terrain à MARTILLAC
Terrain 928 m² à Martillac
MARTILLAC
Lotissement 'Les Hauts de Martillac”, idéalement situé dans un environnement calme et recherché, à proximité immédiate du Château Smith Haut Lafitte et à seulement 20 minutes de Bordeaux. - T ...
189 850 €
La Plaine De L'immo
Terrain à MARTILLAC
Terrain 856 m² à Martillac
MARTILLAC
Superbes terrains situés dans un cadre idyllique, au calme, en face du prestigieux château de Smith Haut Lafitte. Disponibilités de trois lots d'une superficie d'environ 900m2 situés ...
189 850 €
YD Immo Cadaujac
Terrain à MARTILLAC
Terrain à saisir sur Martillac !
MARTILLAC
MARTILLAC. Proche du centre, ce terrain viabilisé en 1ère ligne de 420m² est prêt à accueillir votre projet de vie. Un emplacement privilégié alliant sérénité et proximité des commodités. A 20mn d ...
165 000 €
GIB Construction
Terrain à MARTILLAC
Martillac – Terrain libre de constructeur
MARTILLAC
Dans un environnement recherché, ce terrain de 490 m² libre de constructeur est idéal pour la réalisation d’une maison de plain-pied. Une belle opportunité pour créer un espace de vie confortable ...
174 687 €
YD Immo Cadaujac
Terrain à MARTILLAC
Terrain 700 m² à Martillac
MARTILLAC
jardin
Terrain de 700 m² à vendre à Martillac EMPLACEMENT PRIVILÉGIÉ - VUE SANS VIS-À-VIS À Martillac (33650) à 20 km de l'océan Atlantique et à 17 km de Bordeaux, donnez vie à la maison de vos ...
171 000 €
Maisons MCA - Le Barp
Terrain à MARTILLAC
Terrain 1100 m² à Martillac
MARTILLAC
À découvrir rapidement sur MARTILLAC ! Terrain hors lotissement de 1100m², situé dans un secteur calme et recherché, à proximité des commerces, écoles. Caractéristiques du terrain : •Superficie ...
170 000 €
IMMO CONSTRUCTION CADAUJAC
Terrain à MARTILLAC
Terrain 500 m² à Martillac
MARTILLAC
jardin
Terrain de 500 m² en vente à Martillac EMPLACEMENT PRIVILÉGIÉ - VUE SANS VIS-À-VIS À Martillac (33650) à 20 km de l'océan Atlantique et à 17 km de Bordeaux, imaginez la maison de vos rêve ...
172 000 €
Maisons MCA - Le Barp
Terrain à MARTILLAC
Terrain 858 m² à Martillac
MARTILLAC
jardin
Terrain viabilisé de 858m2 parfaitement exposé et au calme proche de Caudalie. Possibilité d'implanter un plain pied ou un étage, prévoir assainissement individuel. Pour concevoir votre futur ...
199 850 €
VILLAS MELROSE Bordeaux
Terrain à MARTILLAC
Terrain 604 m² à Martillac
MARTILLAC
Terrain libre constructeur à Martillac Honoraires inclus de 5% TTC à la charge de l'acquéreur. Prix hors honoraires 200 000 €. Les informations sur les risques auxquels ce bien est exposé ...
210 000 €
La Plaine De L'immo
Photo 1 - Terrain à MARTILLAC
Terrain 858 m² à Martillac
MARTILLAC
Très beau terrain LIBRE DE CONSTRUCTEUR sur la commune de Martillac (33650) Emprise au sol construction : 260 m². Surface plancher possible jusqu'à 330 m². Vous pourrez réaliser un projet de ...
199 850 €
Safti
Terrain à MARTILLAC
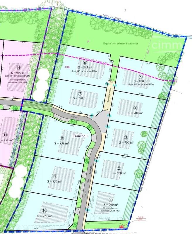
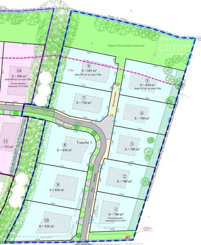
"Lotissement" Terrain a batir 720m2 Martillac 33 Gironde
MARTILLAC
Cécilia Rivot vous propose des terrains à Bâtir à Martillac 33 Gironde Découvrez ce superbe terrain à bâtir de 720 m² idéalement situé à Martillac, en France. Niché dans un environnement paisib ...
179 800 €
Cimm Immobilier
Terrain à MARTILLAC
Terrain 845 m² à Martillac
MARTILLAC
33650 – MARTILLAC – Exclusivité effiCity – TERRAIN VIABILISE LIBRE DE CONSTRUCTEUR ! LOTISSEMENT "LES HAUTS DE MARTILLAC" - Terrain à bâtir de 845m² dans le Lotissement « Les Hauts de Ma ...
219 800 €
Réseau Efficity
Terrain à MARTILLAC
Terrain 856 m² à Martillac
MARTILLAC
33650 – MARTILLAC – Exclusivité effiCity – TERRAIN VIABILISE LIBRE DE CONSTRUCTEUR ! LOTISSEMENT "LES HAUTS DE MARTILLAC" - Terrain à bâtir de 856m² dans le Lotissement « Les Hauts de Ma ...
199 850 €
Réseau Efficity
Terrain à MARTILLAC
Terrain 858 m² à Martillac
MARTILLAC
33650 – MARTILLAC – Exclusivité effiCity – TERRAIN VIABILISE LIBRE DE CONSTRUCTEUR ! LOTISSEMENT "LES HAUTS DE MARTILLAC" - Terrain à bâtir de 858m² dans le Lotissement « Les Hauts de Ma ...
199 850 €
Réseau Efficity
Photo 1 - Terrain à MARTILLAC
Terrain 928 m² à Martillac
MARTILLAC
Ce terrain de 928 m² offre un cadre idéal pour réaliser un projet immobilier de qualité, situé à Martillac, commune prisée pour son atmosphère paisible et ses paysages verdoyants, connue pour son ...
199 850 €
Safti
Photo 1 - Terrain à MARTILLAC
Terrain 720 m² à Martillac
MARTILLAC
Très beau terrain LIBRE DE CONSTRUCTEUR sur la commune de Martillac (33650) Emprise au sol construction : 230 m². Surface plancher possible jusqu'à 295 m². Vous pourrez réaliser un projet de ...
179 800 €
Safti
Terrain à MARTILLAC
Terrain à Bâtir 928 m2 à Martillac 33 Gironde
MARTILLAC
Terrain à Bâtir à Martillac 33 Gironde Découvrez ce superbe terrain à bâtir de 928 m² idéalement situé à Martillac, en France. Niché dans un environnement paisible et verdoyant, ce lot offre un c ...
199 850 €
Cimm Immobilier
Terrain à MARTILLAC
Terrain constructible Martillac 33 Gironde
MARTILLAC
Terrain à Bâtir à Martillac 33 Gironde Découvrez ce superbe terrain à bâtir de 845 m² idéalement situé à Martillac, en France. Niché dans un environnement paisible et verdoyant, ce lot offre un c ...
219 800 €
Cimm Immobilier
Terrain à MARTILLAC
Terrain à Bâtir 856 m2 à Martillac 33 Gironde
MARTILLAC
Découvrez ce superbe terrain à bâtir de 856 m² idéalement situé à Martillac, en France. Niché dans un environnement paisible et verdoyant, ce lot offre un cadre de vie privilégié à seulement quelq ...
199 850 €
Cimm Immobilier
Terrain à MARTILLAC
Terrain constructible 858 m2 Martillac 33 Gironde
MARTILLAC
Découvrez ce superbe terrain à bâtir de 858 m² idéalement situé à Martillac, en France. Niché dans un environnement paisible et verdoyant, ce lot offre un cadre de vie privilégié à seulement quelq ...
199 850 €
Cimm Immobilier
Terrain à MARTILLAC
Terrain 720 m² à Martillac
MARTILLAC
Superbes terrains situés dans un cadre idyllique, au calme, en face du prestigieux château de Smith Haut Lafitte. Disponibilités de deux lots d'une superficie d'environ 700 m2 situés ...
179 800 €
YD Immo Cadaujac
Terrain à MARTILLAC
Terrain 568 m² à Martillac
MARTILLAC
Terrain Constructible Idéal pour Votre Projet de Rêve ZONE UC Imaginez-vous en train de concevoir la maison de vos rêves sur ce magnifique terrain constructible de 568 m². Situé dans un cadre pa ...
210 000 €
La Plaine De L'immo
Terrain à MARTILLAC
Terrain 564 m² à Martillac
MARTILLAC
ZONE UC Découvrez ce magnifique terrain constructible de 564 m², une toile vierge où vos rêves de maison idéale peuvent prendre vie. Imaginez-vous concevoir une demeure qui reflète parfaitement v ...
210 000 €
La Plaine De L'immo
Terrain à MARTILLAC
Belle opportunité !
MARTILLAC
jardin
Découvrez cette rare opportunité d'acquérir un terrain situé au coeur de l'appellation prestigieuse Pessac-Léognan, réputée pour ses vins d'exception. Ce terrain est idéal pour les ...
215 000 €
IMMOSOLUTION
Photo 1 - Terrain à MARTILLAC
Terrain 850 m² à Martillac
MARTILLAC
REMISE EXCEPTIONNELLE DE 30.000 EUR SUR LE PRIX AFFICHÈ NE TARDEZ PAS Très beau terrain LIBRE DE CONSTRUCTEURParcelle de 850 m² Viabilisée et piscinable.Emprise au sol construction : 280 m². Surfa ...
232 800 €
Safti
Terrain à MARTILLAC
Terrain 700 m² à Martillac
MARTILLAC
33650 – MARTILLAC – Exclusivité effiCity – TERRAIN VIABILISE LIBRE DE CONSTRUCTEUR ! LOTISSEMENT "LES HAUTS DE MARTILLAC" - Terrain à bâtir de 700m² dans le Lotissement « Les Hauts de Ma ...
181 180 €
Réseau Efficity
Terrain à MARTILLAC
Terrain 700 m² à Martillac
MARTILLAC
33650 – MARTILLAC – Exclusivité effiCity – TERRAIN VIABILISE LIBRE DE CONSTRUCTEUR ! LOTISSEMENT "LES HAUTS DE MARTILLAC" - Terrain à bâtir de 700m² dans le Lotissement « Les Hauts de Ma ...
179 850 €
Réseau Efficity
Terrain à MARTILLAC
Terrain 490 m² à Martillac
MARTILLAC
TAB LIBRE DE CONSTRUCTEUR ! Terrain non viabilisé, idéalement placé sur la commune de Martillac, d'une superficie de 490m², il permet une construction plain pied de 147M², il possible égalem ...
176 470 €
La Plaine De L'immo
Terrain à MARTILLAC
MARTILLAC, Terrains à bâtir viabilisés
MARTILLAC
Dans un charmant lotissement, 5 terrains à bâtir viabilisés, de 531m² à 748m². A partir de 206 000 € FAI. Surface Plancher A partir de 240m² /lot. Environnement agréable. A voir rapidement.
206 000 €
Morpan Dubourg Immobilier

En poursuivant votre navigation sans modifier vos paramètres, vous acceptez l'utilisation de cookies susceptibles de réaliser des statistiques de visite. Cliquez ici pour plus d'informations