1. Accueil
  2. > Commerces à vendre
  3. > Ain (01)
  4. > Nantua

Commerces à vendre à NANTUA (01)

Commerce à NANTUA
Locaux/Biens immobiliers
NANTUA
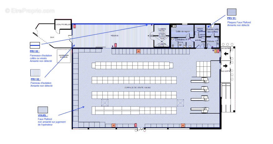
À VENDRE – BÂTIMENT COMMERCIAL À NANTUA AVEC GRAND PARKING Situé à Nantua, ville dynamique et touristique, réputée pour son lac, sa situation stratégique entre Lyon, Genève et le Haut-Jura, ce bâ ...
450 000 €
Réseau Efficity
Commerce à NANTUA
Local indust. / activites nantua - 1100 m2
NANTUA
parkingjardin
Haut Bugey, commune de Nantua. Locaux professionnels, commerciaux et habitation d'environ 1100m2 sur terrain de 7932m2. surfaces divisibles Proche 3 entrées autoroutes A40/404 1h de Lyon, Gen ...
399 000 €
MAGIC IMMOBILIER
Commerce à NANTUA
Fonds de commerce restauration
NANTUA
balcon/terrasse
Haut Bugey. Sur une localisation touristique avec axe de passage à grande fréquentation devant l'établissement, fonds de commerce de type restauration avec licence IV. Etablissement en bon ét ...
299 000 €
MAGIC IMMOBILIER
Commerce à NANTUA
Charmant local commercial à deux pas du lac de Nantua
NANTUA
Situé dans la pittoresque ville de Nantua, ce local commercial de 50,30 m² vous immerge au cœur d'un environnement dynamique et propice aux affaires. L'ambiance y est chaleureuse, renfor ...
70 000 €
BSK Immobilier
Photo 1 - Commerce à NANTUA
Commerce 301 m² à Nantua
NANTUA
Situé dans la Rue Commerçante de la ville, à 200 m du lac de Nantua, entre Montagnes et Lacs, proche des Stations de Ski, Région Touristique Été comme Hiver, à moins d'une heure de Lyon et de ...
344 000 €
Safti
Commerce à NANTUA
Local commercial NANTUA - 62.73 m2
NANTUA
Nantua, centre ville local commercial de 62.73m2. grande vitrine. toutes activités sauf restauration/bar. contact Fabrice GUY Copropriété de 19 lots - dont 5 lots habitation. Charges annuelles : ...
51 500 €
MAGIC IMMOBILIER

Achat commerce dans les villes à proximité