Achat d'appartement à ORCHIES

25 Appartements disponibles -
Prix moyen: 223 507 €

Appartement à ORCHIES
Appartement t3 de 64m² à orchies
ORCHIES
ascenseur
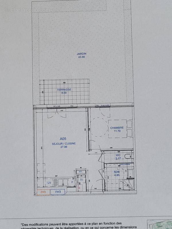
REF 99515 - Grand appartement 3 pièces de 64m2 situé au 2ème étage sur 3 avec ascenseur.  Séjour/cuisine ouverte de 27m2 prolongé par un balcon, pour profiter des beaux jours ou pour ajouter une t ...
219 800 €
Mapetiteagence.com
Appartement à ORCHIES
Appartement t3 de 61m² à orchies
ORCHIES
ascenseur
REF 99462 - Appartement 3 pièces lumineux grâce à son expositiion Sud/Ouest et situé en étage. Séjour/cuisine ouverte de 25m2 prolongé par un balcon, pour profiter des beaux jours ou pour ajouter ...
225 400 €
Mapetiteagence.com
Appartement à ORCHIES
Appartement t4 de 83m² à orchies
ORCHIES
ascenseur
REF 99463 - Appartement 4 pièces de 83m2 situé en étage, composé d'un séjour/cuisine convivial, prolongé par un balcon pour profiter des beaux jours ou pour ajouter une touche de verdure à vo ...
253 900 €
Mapetiteagence.com
Affichage de 3 sur 25 propriétes

Le marché immobilier des appartements à Orchies

Données et tendances du marché
Prix moyen/m2
3 148 €
Prix moyen
223 507 €
Annonces
25

Estimations des prix basées sur les annonces d’etreproprio.com, en savoir plus

Obtenir un prêt immobilier au meilleur taux ?

En poursuivant votre navigation sans modifier vos paramètres, vous acceptez l'utilisation de cookies susceptibles de réaliser des statistiques de visite. Cliquez ici pour plus d'informations