1. Accueil
  2. > Terrains à vendre
  3. > Pas-de-Calais (62)
  4. > Pernes

Terrains à vendre à PERNES (62)

Terrain à PERNES
Pernes terrain libre de constructeur
PERNES
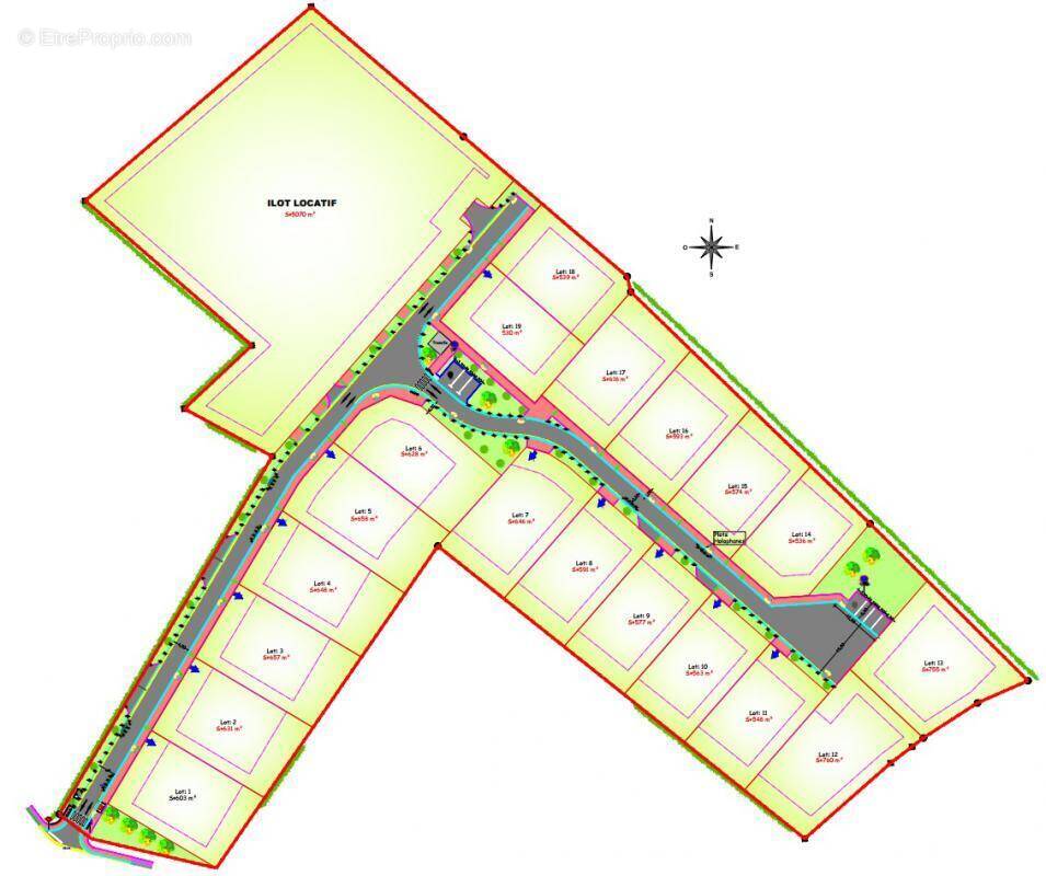
Parcelles bornées, viabilisées, libres de constructeur rue de L'église à Pernes (62550). proximité St Pol sur Ternoise, Béthune, Lillers, Bruay la buissière. Surface : 628 m². Prix : 58 400 € ...
58 400 €
Habitat 62-59
Terrain à PERNES
Pernes terrain libre de constructeur
PERNES
Parcelles bornées, viabilisées, libres de constructeur rue de L'église à Pernes (62550). proximité St Pol sur Ternoise, Béthune, Lillers, Bruay la buissière. Surface : 563 m². Prix : 59 500 € ...
59 500 €
Habitat 62-59
Terrain à PERNES
Pernes en artois terrain libre de constructeur
PERNES
Parcelles bornées, viabilisées, libres de constructeur rue de L'église à Pernes (62550). proximité St Pol sur Ternoise, Béthune, Lillers, Bruay la buissière. Surface : 563 m². Prix : 59 500 € ...
59 500 €
Habitat 62-59
Terrain à PERNES
Pernes terrain libre de constructeur
PERNES
Parcelles bornées, viabilisées, libres de constructeur rue de L'église à Pernes (62550). proximité St Pol sur Ternoise, Béthune, Lillers, Bruay la buissière. Surface : 628 m². Prix : 58 400 € ...
58 400 €
Habitat 62-59
Photo 1 - Terrain à PERNES
Terrain 468m² à pernes
PERNES
Iad France - Christine Demandrille vous propose : Sur la commune de PernesTerrain à Bâtir idéalement situé d'une superficie de 468 m².Façade 11 m, profondeur 41 m.Rare sur le secteur !CU en c ...
35 000 €
iad France
Terrain à PERNES
Terrain à vendre de 15273 pernes (62)
PERNES
A vendre dans le secteur de Pernes en Artois, à 20 mn de Béthune, magnifique terrain à lotir de 15273 m² au prix de 100000 euros (FAI). Lotisseur, Investisseur, Promoteur immobilier, Particulier, ...
100 000 €
Optimhome Immobilier
Obtenir un prêt immobilier au meilleur taux ?

En poursuivant votre navigation sans modifier vos paramètres, vous acceptez l'utilisation de cookies susceptibles de réaliser des statistiques de visite. Cliquez ici pour plus d'informations