Bénéficiez des services de nos partenaires locaux soigneusement sélectionnés
pour vous accompagner dans votre parcours d'achat immobilier

T4 neuf livré

— Lyon-3e 69003 —
449 000 €
84 m²
4 pièces
balcon/terrasseascenseuraccès handicapé

Nos partenaires locaux
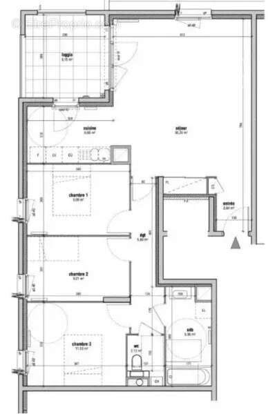
Découvrez dès maintenant ce superbe appartement de type T4, situé dans un quartier dynamique et au *** d'une résidence flambant neuve qui s'étend sur six niveaux.

L'intérieur de cette propriété se compose d'une entrée accueillante qui vous mène vers un séjour lumineux et ouvert sur une cuisine et dispose d'un spacieux balcon de 10 m², idéal pour vos moments de détente en plein air. Coté nuit, vous trouverez un couloir qui dessert trois chambres en parquet dont une PMR, une salle de bains moderne et un WC indépendant.

L'emplacement de cette résidence est idéal, au calme tout en étant à proximité des boutiques animées du cours Lafayette, ainsi que des écoles et de toutes les commodités. De plus, vous bénéficierez de l'accès facile au bus C3 pour vos déplacements, la station de métro A se trouve à seulement 10', ce qui facilite vos trajets. Un garage double est disponible en sus.

N'hésitez pas à me contacter O7 5O 5O 46 5O afin d'organiser une visite rapidement pour découvrir par vous-même tout ce que cet appartement a à offrir ! EI Honoraires à la charge du vendeur - Montant moyen de la quote-part de charges courantes 540 €/an - Montant estimé des dépenses annuelles d'énergie pour un usage standard : 850€ ~ 1200€ - Amor ZAAFRANE - Agent commercial - EI - RSAC Lyon 4477666890 - RCS 4[Coordonnées masquées]036 - Caisse de garantie QBE L'immobilier vous intéresse, contactez-moi
Voir plus

Référence: 83394286
Barème des honoraires
DPE
A
B
C
D
E
F
G
GES
A
B
C
D
E
F
G

Prêt immobilier

Vous souhaitez connaître votre capacité d’emprunt et trouver le meilleur crédit immobilier ?
Réaliser une simulation gratuite

Appartement à LYON-3E
Appartement à LYON-3E
Appartement à LYON-3E
Appartement à LYON-3E
Appartement à LYON-3E
Appartement à LYON-3E
Appartement à LYON-3E
Appartement à LYON-3E
Appartement à LYON-3E
Appartement à LYON-3E
Appartement à LYON-3E
Appartement à LYON-3E
Appartement à LYON-3E
Appartement à LYON-3E
Appartement à LYON-3E
Appartement à LYON-3E
Appartement à LYON-3E
Appartement à LYON-3E
Appartement à LYON-3E
Appartement à LYON-3E
Appartement à LYON-3E
Appartement à LYON-3E
Appartement à LYON-3E
Appartement à LYON-3E
Appartement à LYON-3E
Appartement à LYON-3E
Appartement à LYON-3E
Ce site est protégé par reCAPTCHA la Politique de confidentialité et les Conditions d’utilisation de Google s’appliquent.
Obtenir un prêt immobilier au meilleur taux ?

En poursuivant votre navigation sans modifier vos paramètres, vous acceptez l'utilisation de cookies susceptibles de réaliser des statistiques de visite. Cliquez ici pour plus d'informations