Bénéficiez des services de nos partenaires locaux soigneusement sélectionnés
pour vous accompagner dans votre parcours d'achat immobilier

Bel appartement neuf 79m2 - duplex

— Cormelles-Le-Royal 14123 —
273 000 €
79 m²
3 pièces
balcon/terrasse

Nos partenaires locaux
Cormelles-Le-Royal - A saisir, et à découvrir le confort moderne dans un cadre verdoyant avec notre nouveau programme immobilier à Cormelles le Royal !
Ce programme est à proximité de toutes les commodités à 2h40min de Paris, 40min de Deauville, 15 min de Caen et 20 min de la mer. Parfaitement au calme et à seulement 80m des commerces, et des services du centre-ville.
les 3 derniers lots en duplex disponibles du programme sont :
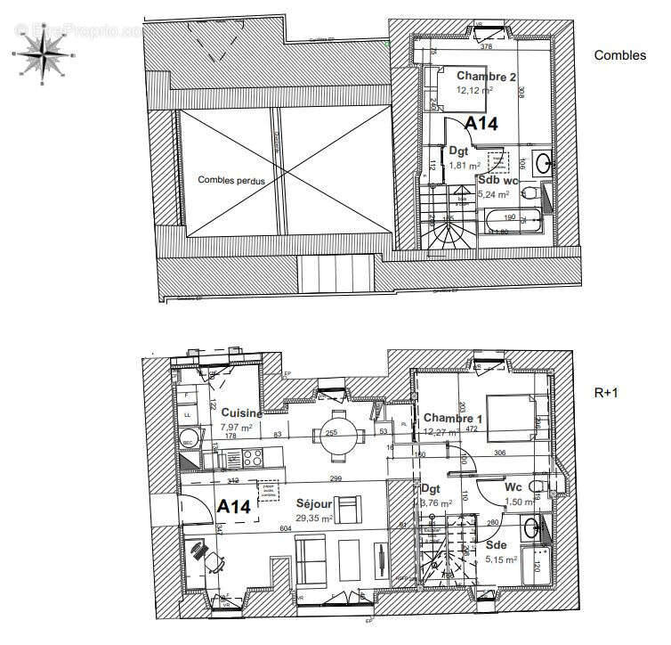
- T3 de 79.17m2 N1+comble, traversant nord/sud avec place de parking extérieur au prix de 273 000€ (Lot A14).
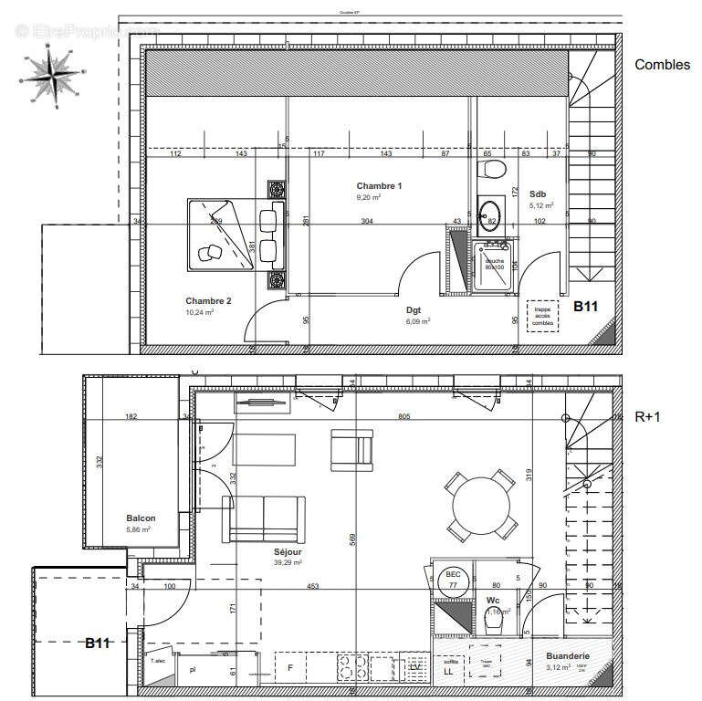
- T3 de 74.22m2 N1+comble, avec balcon de 5.86m2, exposée Ouest avec place de parking extérieur au prix de 279 000€ (Lot B11).
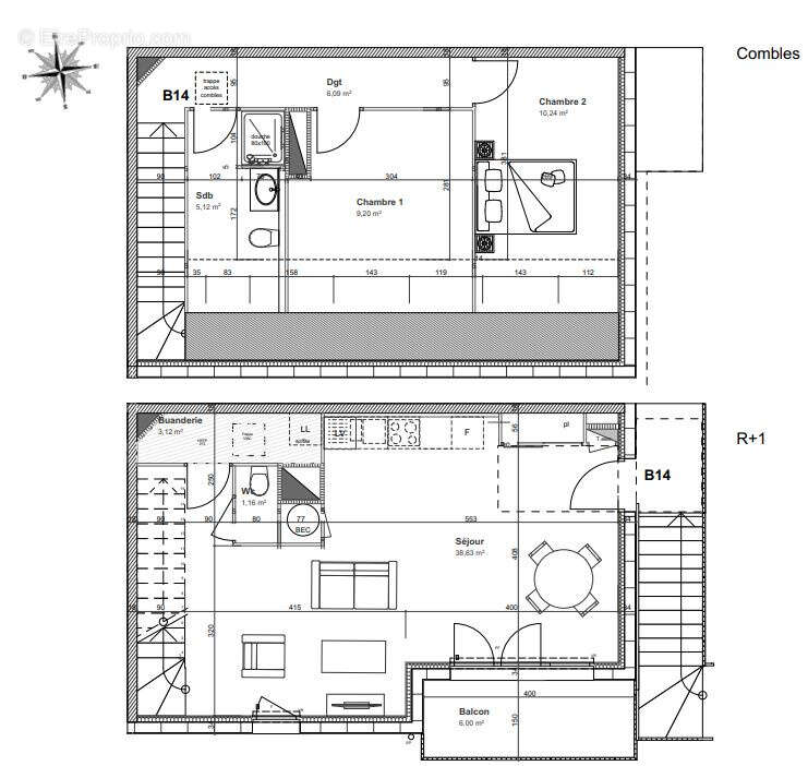
- T3 de 73.56m2 N1+comble, avec balcon de 6m2, exposée Sud avec place de parking extérieur au prix de 276 000€ (Lot B14).
Bien non soumis au DPE. Construction achevée. Éligible Pinel 14%. FRAIS DE NOTAIRE REDUIT.
Contact Responsable agence Justine CUEILLE RCS Rouen 917 697 781 ADC 76[Coordonnées masquées]00 016 Sous la carte professionnelle No : CPI 76[Coordonnées masquées]00 016
Voir plus

Barème des honoraires

Prêt immobilier

Vous souhaitez connaître votre capacité d’emprunt et trouver le meilleur crédit immobilier ?
Réaliser une simulation gratuite

Appartement à CORMELLES-LE-ROYAL
Appartement à CORMELLES-LE-ROYAL
Appartement à CORMELLES-LE-ROYAL
Appartement à CORMELLES-LE-ROYAL
Appartement à CORMELLES-LE-ROYAL
Appartement à CORMELLES-LE-ROYAL
Appartement à CORMELLES-LE-ROYAL
Appartement à CORMELLES-LE-ROYAL
Appartement à CORMELLES-LE-ROYAL
Ce site est protégé par reCAPTCHA la Politique de confidentialité et les Conditions d’utilisation de Google s’appliquent.
Obtenir un prêt immobilier au meilleur taux ?

En poursuivant votre navigation sans modifier vos paramètres, vous acceptez l'utilisation de cookies susceptibles de réaliser des statistiques de visite. Cliquez ici pour plus d'informations