Bénéficiez des services de nos partenaires locaux soigneusement sélectionnés
pour vous accompagner dans votre parcours d'achat immobilier

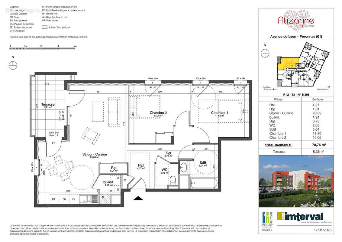
Alizarine péronnas centre programme neuf

— Peronnas 01960 —
234 000 €
71 m² / 8 m²
3 pièces
balcon/terrassejardinascenseur

Nos partenaires locaux
Au coeur de Péronnas, ALIZARINE est la dernière pièce du projet COEUR de VILLE, menée avec la mairie, qui restructure le centre-ville. Venez découvrir nos T2 et T3 en étage élevé, dans une jolie résidence à taille humaine : des appartements lumineux, confortables et bien agencés ! ALIZARINE sait faire la différence : des prestations de qualité, des espaces de vie extérieurs généreux, un bâtiment optimisé RE2020 pour votre confort au quotidien, des murs finis en peinture, des placards équipés et une cuisine semi équipée : tout est pensé pour vous simplifier la vie !
Voir plus

Référence: 573
Honoraires à la charge du vendeur.
Barème des honoraires

Prêt immobilier

Vous souhaitez connaître votre capacité d’emprunt et trouver le meilleur crédit immobilier ?
Réaliser une simulation gratuite

Appartement à PERONNAS
Appartement à PERONNAS
Appartement à PERONNAS
Ce site est protégé par reCAPTCHA la Politique de confidentialité et les Conditions d’utilisation de Google s’appliquent.
Obtenir un prêt immobilier au meilleur taux ?

En poursuivant votre navigation sans modifier vos paramètres, vous acceptez l'utilisation de cookies susceptibles de réaliser des statistiques de visite. Cliquez ici pour plus d'informations