Bénéficiez des services de nos partenaires locaux soigneusement sélectionnés
pour vous accompagner dans votre parcours d'achat immobilier

Superbe vue sur loire appartement 2 pièces de 47,25 m² balcon exposé sud cave parking sous-sol

— Orleans 45000 —
123 061 €
47 m²
2 pièces
ascenseur

Nos partenaires locaux
Exclusivité Orléans, bords de Loire dans Résidence

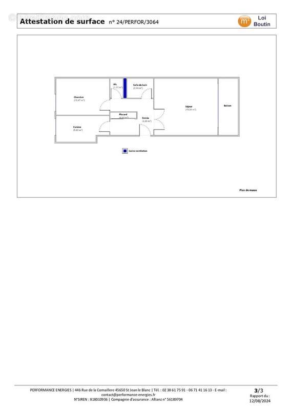
Au 6ème étage avec une superbe vue sur Loire, très agréable appartement de 2 pièces d'une superficie de 47,25 m²

Il se compose d’une entrée, d’une cuisine, d’un séjour de 19,34 m2 avec porte-fenêtre ouvrant sur balcon exposé Sud, d’une chambre de 10,47 m², d’une salle de bains de 2,94 m² et d’un wc

Un balcon de 6,00 m².

Il dispose également d’une cave de 2,90 m² et d’une place de parking en sous-sol.

Les informations sur les risques auxquels ce bien est exposé sont disponibles sur le site Géorisques : www.georisques.gouv.fr

Voici les classements de l’appartement indiqués dans le DPE
Classe énergie : F, Consommation : 323 kWh ep/m².an. Classe Emissions Gaz à effet de serre : F, Estimation des émissions : 70 kg eqCO2/m².an.
Montant estimé des dépenses annuelles d’énergie pour un usage standard : entre 1200 € et 1670 € par an.
Prix moyens des énergies indexés sur les années 2021, 2022, 2023 (abonnements compris)

Prix 123.061,00 Euros honoraires inclus
Prix 115.000,00 Euros honoraires exclus
Honoraires de 7,01 % TTC à la charge de l’acquéreur

Biens situés dans une copropriété. Totalité de la copropriété : 249 lots dont 79 appartements. Montant moyen annuel charges suivant budget prévisionnel calculé sur 2 années : 2189,84 Euros. Charges comprenant chauffage, eau chaude et eau froide.
Aucune procédure en cours menée sur le fondement des articles 29-1 A et 29-1 de la loi du 10 Juillet 1965 et de l’article 615-6 du code de la construction et de l’habitation.

Pour de plus amples informations n’hésitez pas à téléphoner à Philippe ROBERT [Coordonnées masquées].
Voir plus

Référence: 85573416
DPE
A
B
C
D
E
F
G
GES
A
B
C
D
E
F
G

Prêt immobilier

Vous souhaitez connaître votre capacité d’emprunt et trouver le meilleur crédit immobilier ?
Réaliser une simulation gratuite

Appartement à ORLEANS
Appartement à ORLEANS
Appartement à ORLEANS
Appartement à ORLEANS
Appartement à ORLEANS
Appartement à ORLEANS
Ce site est protégé par reCAPTCHA la Politique de confidentialité et les Conditions d’utilisation de Google s’appliquent.
Obtenir un prêt immobilier au meilleur taux ?

En poursuivant votre navigation sans modifier vos paramètres, vous acceptez l'utilisation de cookies susceptibles de réaliser des statistiques de visite. Cliquez ici pour plus d'informations