Bénéficiez des services de nos partenaires locaux soigneusement sélectionnés
pour vous accompagner dans votre parcours d'achat immobilier

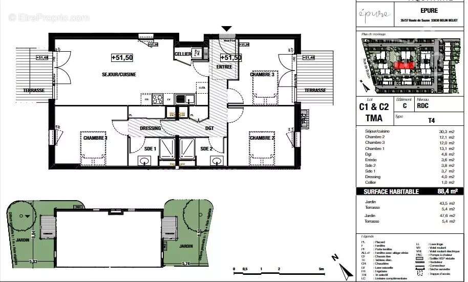
Appartement t4 neuf de 88.40 m2 à belin beliet

— Belin-Beliet 33830 —
309 000 €
4 pièces
parkingbalcon/terrassejardin

Nos partenaires locaux
La ville bénéficie d’une excellente desserte grâce à plusieurs lignes de bus, telles que la ligne 610 vers Biganos et la ligne 505 vers Bordeaux, permettant de rejoindre aisément les communes avoisinantes. L’autoroute A63, à seulement 5 minutes de la résidence, offre un accès rapide et pratique au Bassin d’Arcachon en 35 minutes. Tous les commerces et équipements scolaires et sportifs sont accessibles dans un rayon de 1km.

Située au sein d’un quartier résidentiel composé de maisons individuelles et de petits collectifs, la résidence Épure jouit d’une architecture alliant avec succès authenticité et modernité.

Chaque appartement est pourvu d’un balcon ou d’un jardin (pour les rez-de-chaussée), accessible par des coursives extérieures, tandis que les maisons avec jardins privatifs sont desservies par un chemin agrémenté d’une pergola.
Prestations

Pièces sèches : Parquet stratifié
Pièces humides : Carrelage (45x45) avec sous couche acoustique + Faïence à hauteur d’huisserie au pourtour Douche/Baignoire
Menuiserie ext : PVC
Volet roulant électrique dans le salon
Bloc porte métallique 1 vantail ou bloc porte en bois 1 vantail. Serrure 3 points A2P 1 étoile. Microviseur. Joint isophonique.
Meuble vasque + Miroir + Bandeau lumineux
Un placard aménagé pour les T2, deux placards aménagés pour les T3.
Chauffage et production d’eau chaude saniataire : individuelle. Electricité par pompe à chaleur ou ballon thermodynamique selon plan Honoraires à la charge du vendeur - Nélio MEIRELES - Agent commercial - EI - RSAC Bordeaux 501886477 - RCS 4[Coordonnées masquées]127 - Caisse de garantie QBE 500000 EUR
Voir plus

Référence: 85661522
Barème des honoraires

Prêt immobilier

Vous souhaitez connaître votre capacité d’emprunt et trouver le meilleur crédit immobilier ?
Réaliser une simulation gratuite

Appartement à BELIN-BELIET
Appartement à BELIN-BELIET
Ce site est protégé par reCAPTCHA la Politique de confidentialité et les Conditions d’utilisation de Google s’appliquent.
Obtenir un prêt immobilier au meilleur taux ?

En poursuivant votre navigation sans modifier vos paramètres, vous acceptez l'utilisation de cookies susceptibles de réaliser des statistiques de visite. Cliquez ici pour plus d'informations