Bénéficiez des services de nos partenaires locaux soigneusement sélectionnés
pour vous accompagner dans votre parcours d'achat immobilier

Tassin-la-demi-lune

— Tassin-La-Demi-Lune 69160 —
179 000 €
53 m² / 17 m²
3 pièces
jardin

Nos partenaires locaux
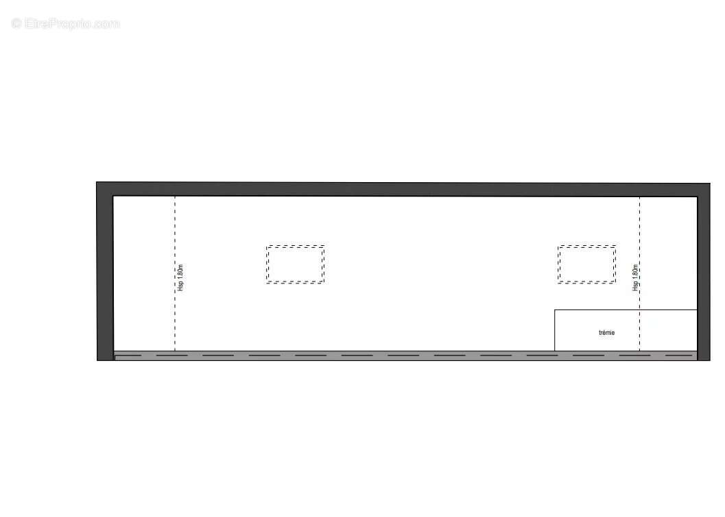
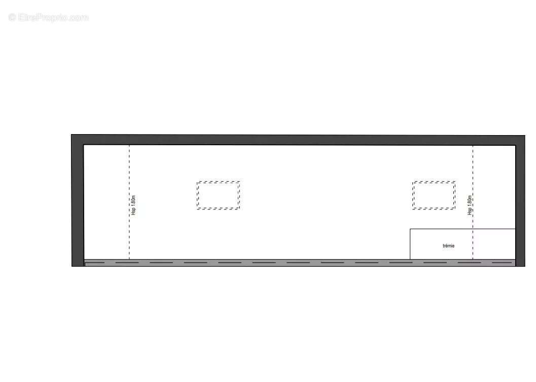
Découvrez ce local commercial en duplex de 53,01 m² en plateau à aménager, situé au cœur d’une résidence de charme réhabilitée à Tassin-la-Demi-Lune.
Place de parking en sus à 12 000€.
La résidence bénéficie d’un emplacement permettant un accès rapide aux commerces, aux transports en commun et aux services de proximité. Les arrêts de bus et la gare à quelques minutes facilitent les déplacements vers Lyon et ses environs.
Pour toute information ou pour organiser une visite, contactez Jean de Jouffrey au [Coordonnées masquées].
Voir plus

Référence: 2746 TASSIN19
Barème des honoraires
DPE
A
B
C
D
E
F
G
Commerce à TASSIN-LA-DEMI-LUNE
Commerce à TASSIN-LA-DEMI-LUNE
Commerce à TASSIN-LA-DEMI-LUNE
Commerce à TASSIN-LA-DEMI-LUNE
Commerce à TASSIN-LA-DEMI-LUNE
Géorisques

Les informations sur les risques auxquels ce bien est exposé sont disponibles sur le site Géorisques : www.georisques.gouv.fr

Ce site est protégé par hCaptcha Politique de confidentialité et Conditions d’utilisation s’appliquent.

En poursuivant votre navigation sans modifier vos paramètres, vous acceptez l'utilisation de cookies susceptibles de réaliser des statistiques de visite. Cliquez ici pour plus d'informations