Bénéficiez des services de nos partenaires locaux soigneusement sélectionnés
pour vous accompagner dans votre parcours d'achat immobilier

Appartement à vendre

— Pau 64000 —
106 500 €
34 m²
2 pièces

Nos partenaires locaux
POUR INVESTISSEUR À VENDRE APPARTEMENT LOUER 550 Euros en bail meublé – Beau T2 rénové de 34 m² – Hypercentre de Pau – 106 500 €

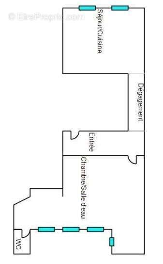
En plein cœur de Pau, dans une rue à sens unique au calme, découvrez ce charmant T2 rénové de 34 m², situé au 2ᵉ étage d'une petite copropriété bien entretenue.

L'appartement se compose d'un séjour lumineux, d'une cuisine ouverte, d'une chambre confortable, d'une salle d'eau et de WC séparés. Il bénéficie d'un chauffage individuel électrique, du double vitrage, et affiche un DPE en D, garantissant un bon confort thermique.

La taxe foncière est de 652 € et les charges de copropriété s'élèvent à 631 € par an.

Un bien idéal pour un premier achat, un pied-à-terre ou un investissement locatif, à deux pas de toutes les commodités du centre-ville.

Ne manquez pas cette opportunité d'acquérir un appartement au cœur de Pau. Prenez rendez-vous avec Maxime Pierret au [Coordonnées masquées]. (RSAC 523 324 713)
Référence agence : 6469
Voir plus

Référence: YNXO-A9W-ZP8
Honoraires à la charge du vendeur.
DPE
A
B
C
D
E
F
G
GES
A
B
C
D
E
F
G

Prêt immobilier

Vous souhaitez connaître votre capacité d’emprunt et trouver le meilleur crédit immobilier ?
Réaliser une simulation gratuite

Appartement à PAU
Appartement à PAU
Appartement à PAU
Appartement à PAU
Appartement à PAU
Appartement à PAU
Appartement à PAU
Ce site est protégé par reCAPTCHA la Politique de confidentialité et les Conditions d’utilisation de Google s’appliquent.
Obtenir un prêt immobilier au meilleur taux ?

En poursuivant votre navigation sans modifier vos paramètres, vous acceptez l'utilisation de cookies susceptibles de réaliser des statistiques de visite. Cliquez ici pour plus d'informations