Commerce à vendre - disponibilité immédiate

— Lamorlaye 60260 —
196 560 €
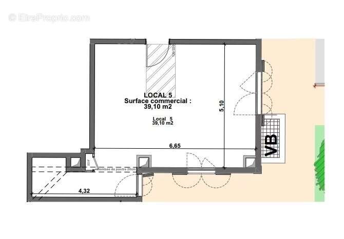
39 m²
1 pièce

Résidence Les Villas du Château - Lamorlaye

Travaux de chappe et isolation sur les murs extérieurs réalisés. Local à aménager selon vos envies

Surface local n°5 : 39 m2 (possibilité également de réunir ce commerce avec le n°4 de +51m2 pour une surface totale de 90 m2)

Prix hors taxe : 163 800 euros H.T. (commerce n°5 uniquement)

Pour plus de renseignement, contactez-nous !
[Coordonnées masquées]
[Coordonnées masquées]
Voir plus

Référence: 85318285

Prêt immobilier

Vous souhaitez connaître votre capacité d’emprunt et trouver le meilleur crédit immobilier ?
Réaliser une simulation gratuite

Commerce à LAMORLAYE
Commerce à LAMORLAYE
Commerce à LAMORLAYE
Commerce à LAMORLAYE
Commerce à LAMORLAYE
Commerce à LAMORLAYE
Commerce à LAMORLAYE
Ce site est protégé par reCAPTCHA la Politique de confidentialité et les Conditions d’utilisation de Google s’appliquent.
Obtenir un prêt immobilier au meilleur taux ?

En poursuivant votre navigation sans modifier vos paramètres, vous acceptez l'utilisation de cookies susceptibles de réaliser des statistiques de visite. Cliquez ici pour plus d'informations