Bénéficiez des services de nos partenaires locaux soigneusement sélectionnés
pour vous accompagner dans votre parcours d'achat immobilier

Appartement t3 de 73m2

— Mionnay 01390 —
235 000 €
73 m²
3 pièces
parkingascenseur

Nos partenaires locaux
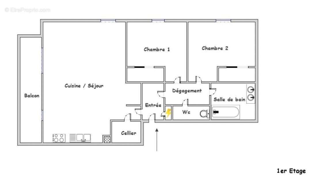
Votre agence Revô Immo de Mionnay a le plaisir de vous présenter cet appartement de type 3 et d'une surface de 73m2 avec un balcon de 11m2 exposé Ouest, au coeur de la commune. Il se compose d'une entrée, une pièce de vie lumineuse de 37m2, 2 chambres, une salle de bains et un WC indépendant. Le chauffage est au gaz individuel, la climatisation est présente dans la pièce de vie, et les menuiseries sont en PVC double vitrage. Vous bénéficierez d'une cave, et un box en sous-sol sera proposé en sus. Mionnay, village "où il fait bon vivre autour de Lyon" selon le FIGARO, bénéficie de la proximité avec La Part-Dieu en train (20min) et d'une entrée d'autoroute à 3min. Vous pourrez scolariser vos enfants jusqu'à la primaire. Un ramassage scolaire gratuit leur permettra de rejoindre le collège dans le village voisin et le Lycée à Trévoux. Enfin, il y a une boulangerie, une épicerie-tabac, des salons de coiffure, une pharmacie, des médecins généralistes, des osthéo, une crêche etc... SAS REVO IMMO - CHAGNARD Audrey EI - O611 131 644 - Plus d'informations sur www.revo.immo (réf. 4901050886). SAS REVO IMMO - CHAGNARD Audrey EI - [Coordonnées masquées] - Plus d'informations sur www.revo.immo (réf. 4901050886). Agent commercial RSAC BOURG-EN-BRESSE 993 870 435 Bien soumis au statut juridique de la Copropriété. Nb de lots : 20. Charges annuelles de copropriété (Montant moyen annuel quote-part du budget prévisionnel vendeur) : 1 800 €. Pas de procédure en cours. Surface CARREZ : 73 m² - Honoraires à la charge du vendeur - Les informations sur les risques auxquels ce bien est exposé sont disponibles sur le site Géorisques : https://www.georisques.gouv.fr/.
Voir plus

Référence: 2384
Bien en copropriété. Nombre de lots : 20. Charges de copropriété : 1800 €.
Honoraires à la charge du vendeur.
Barème des honoraires
DPE
A
B
C
D
E
F
G
GES
A
B
C
D
E
F
G

Prêt immobilier

Vous souhaitez connaître votre capacité d’emprunt et trouver le meilleur crédit immobilier ?
Réaliser une simulation gratuite

Appartement à MIONNAY
Appartement à MIONNAY
Appartement à MIONNAY
Appartement à MIONNAY
Appartement à MIONNAY
Appartement à MIONNAY
Appartement à MIONNAY
Appartement à MIONNAY
Ce site est protégé par reCAPTCHA la Politique de confidentialité et les Conditions d’utilisation de Google s’appliquent.
Obtenir un prêt immobilier au meilleur taux ?

En poursuivant votre navigation sans modifier vos paramètres, vous acceptez l'utilisation de cookies susceptibles de réaliser des statistiques de visite. Cliquez ici pour plus d'informations