Bénéficiez des services de nos partenaires locaux soigneusement sélectionnés
pour vous accompagner dans votre parcours d'achat immobilier

Appartement

— Ferney-Voltaire 01210 —
427 000 €
65 m²
3 pièces
balcon/terrasseascenseur

Nos partenaires locaux
01210-FERNEY VOLTAIRE-T3-65m2-TERRASSE 10m2- GARAGE-FRAIS DE NOTAIRE REDUITS

Efficity, l'agence qui estime votre bien en ligne, et Pablo Caraballo Machado vous proposent à Ferney Voltaire: dans un quartier Résidentiel, ce charmant appartement au troisième étage d'une surface de 65 m2, avec une terrasse de 10 m2 qui complète cet espace pour vos repas et vos moments de détente

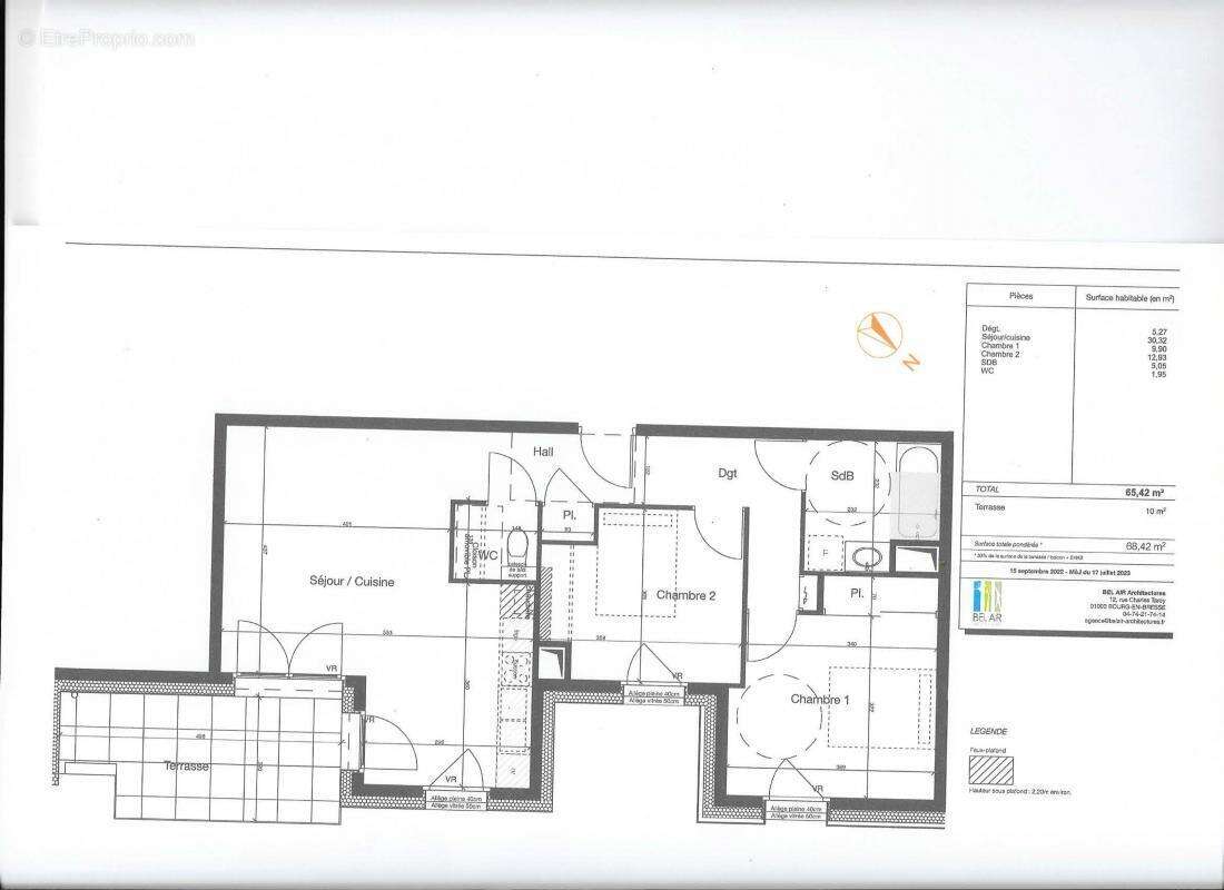
L'intérieur se compose de:
HALL: 5,27m2
SEJOUR/CUISINE :30 m2
CH1: 9,90 m2
CH2: 12,93 m2
SDB : 5,05 m2
WC : 2,00 m2

COTE TECHNIQUE:
Chauffage individuel au gaz par radiateurs
Sèche-serviette dans la SDB
Isolation thermique et acoustique aux normes actuelles
Fenêtre double vitrage
Volets roulant électrique
Carrelage 60/60 dans les pièces de vie et pièces d'eau
Parquet Flottant bois 14 mmm dans les CH
Fibre Optique

COTE PRATIQUE
Le Garage EST PREVU DANS LE PRIX

A PROXIMITE
Genève à 3 kms
A deux pas de l'hypercentre et toutes commodités et loisirs
Proche ecoles maternelles et primaires
Proche de la Cité Scolaire Internationale
Proche d'une de Bus Transfrontalière, la ligne Y reliant au CERN et à l'Aéroport, la ligne F reliant Genève-gare Cornavin

COTE FINANCES:
Charges de copropriété à définir
Taxe Foncière à définir
Frais de notaire réduits ( environ 3%)
Défiscalisation possible si le dispositif est maintenu.
Les informations sur les risques auxquels ce bien est exposé sont disponibles sur le site Georisque : georisques. gouv. fr
Pablo Caraballo Machado - EI - est Agent Commercial mandataire en immobilier, immatriculé au Registre Spécial des Agents Commerciaux du Tribunal de Commerce de Annecy sous le n°901810127.
Siège social du mandant : effiCity, 48 avenue de Villiers - 75017 PARIS - Société par Actions Simplifiée, société au capital de 132 373,05 euros, immatriculée au RCS Paris 497 617 746 et titulaire de la Carte professionnelle CPI 75[Coordonnées masquées]02 025 - CCI Paris IDF - Caisse de Garantie : GALIAN Assurances 89 rue de la Boétie 75008 Paris
Voir plus

Référence: 1767051
Honoraires à la charge du vendeur.
Barème des honoraires
DPE
A
B
C
D
E
F
G
GES
A
B
C
D
E
F
G
Appartement à FERNEY-VOLTAIRE
Appartement à FERNEY-VOLTAIRE
Appartement à FERNEY-VOLTAIRE
Appartement à FERNEY-VOLTAIRE
Géorisques

Les informations sur les risques auxquels ce bien est exposé sont disponibles sur le site Géorisques : www.georisques.gouv.fr

Ce site est protégé par hCaptcha Politique de confidentialité et Conditions d’utilisation s’appliquent.

En poursuivant votre navigation sans modifier vos paramètres, vous acceptez l'utilisation de cookies susceptibles de réaliser des statistiques de visite. Cliquez ici pour plus d'informations