Pas de parking à Montagne pour le moment. Découvrez dès maintenant les parkings dans le département Gironde.
Bénéficiez des services de nos partenaires locaux soigneusement sélectionnés
pour vous accompagner dans votre parcours d'achat immobilier

Maison de ville

— Toulouse 31400 —
611 020 €
125 m² / 198 m²
5 pièces
parkingbalcon/terrassejardin

Nos partenaires locaux
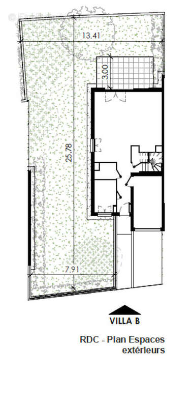
Toulouse L'Ormeau TVA 5,50% destiné à la résidence principale sous conditions de ressources zone ANRU (voir en agence) On vous présente ici cette maison de ville t5 avec jardinet/ Sur la partie basse on retrouve le garage et sa place de midi reliés à la maison, un espace cellier, un wc, du rangement sous escalier et le séjour usine de 39,45m2 exposé sud-ouest-nord sur terrasse de 16,38m2 prolongée du jardin de 198,03m2. A l'étage on retrouve un wc, une salle de bain, 3 chambres avec placard de 11,43, 12,46 et 11,84m2 et une suite parentale de 17,56m2 salle d'eau incluse. Prestations soignées : carrelage 45*45 au sol, parquet stratifié dans les chambres, pompe à chaleur air-air, peinture lisse, volets roulants motorisés .... Quartier aussi calme que vivant, l'Ormeau bénéficie de plus de 250 commerces de proximité dont des restaurants et un hypermarché. Pourvu de nombreux espaces verts tels que le Parc Alalouf et son plateau multisport, l'Ormeau affiche à la fois une ambiance paisible et dynamique, accentuée par la rencontre de deux axes majeurs de la ville : les avenues Antoine de Saint-Exupéry et Jean Rieux. Déjà desservi par les autoroutes A620 (accès n°20 Rangueil et 21 Pont des Demoiselles) et A61 (accès n°18 Montaudran), le quartier fait également l'objet d'un important remaniement en vue d'accueillir, à l'horizon 2028, deux stations de la 3ème ligne du métro toulousain reliant Labège à Colomiers en passant par le coeur de Toulouse. Pourvu de deux groupes scolaires et d'associations sportives et culturelles (16 sections sportives et 13 sections culturelles), le quartier est animé, vivant et jeune. Tout proche, le quartier de Montaudran, résolument moderne, comprend commerces, habitations et équipements publics, il répond aux besoins de tous ses habitants et reste constamment tourné vers l'avenir grâce à divers projets, dont celui de l'implantation d'entreprises de haute technologie. La réhabilitation d'anciens bâtiments historiques de l'aérodrome en musées (la Halle de La Machine, L'Envol des Pionniers) constitue la preuve qu'il s'agit bien d'un secteur en mouvement, sachant s'appuyer sur son passé pour assurer de prospères lendemains. BIEN NON SOUMIS AU DPE Pour tout renseignement : Féänor MAMEO [Coordonnées masquées]
Voir plus

Référence: SUZ-VB
Honoraires à la charge du vendeur.

Prêt immobilier

Vous souhaitez connaître votre capacité d’emprunt et trouver le meilleur crédit immobilier ?
Réaliser une simulation gratuite

Maison à TOULOUSE
Maison à TOULOUSE
Maison à TOULOUSE
Maison à TOULOUSE
Maison à TOULOUSE
Maison à TOULOUSE
Maison à TOULOUSE
Maison à TOULOUSE
Maison à TOULOUSE
Maison à TOULOUSE
Maison à TOULOUSE
Maison à TOULOUSE
Maison à TOULOUSE
Maison à TOULOUSE
Maison à TOULOUSE
Maison à TOULOUSE
Maison à TOULOUSE
Maison à TOULOUSE
Ce site est protégé par reCAPTCHA la Politique de confidentialité et les Conditions d’utilisation de Google s’appliquent.
Obtenir un prêt immobilier au meilleur taux ?

En poursuivant votre navigation sans modifier vos paramètres, vous acceptez l'utilisation de cookies susceptibles de réaliser des statistiques de visite. Cliquez ici pour plus d'informations