Bénéficiez des services de nos partenaires locaux soigneusement sélectionnés
pour vous accompagner dans votre parcours d'achat immobilier

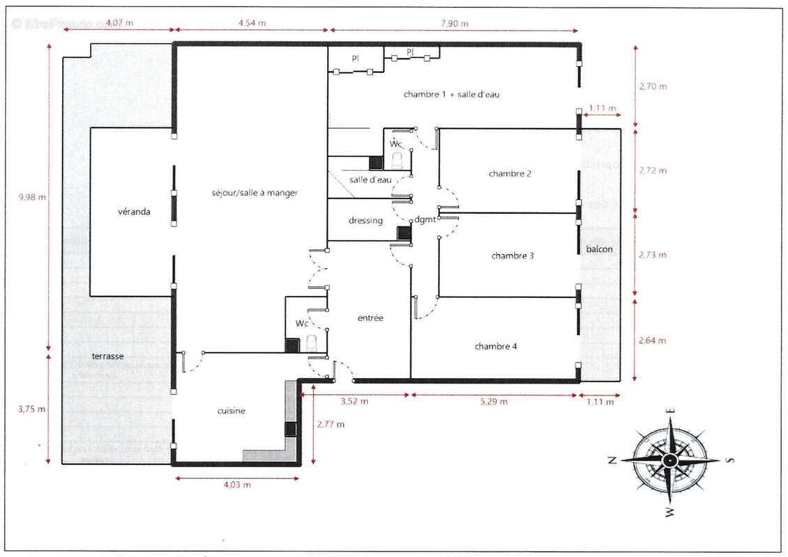
Appartement type 5 - toit terrasse - 142,69 m2 - calme - prado 1 - 13008 marseille

— Marseille-8e 13008 —
770 000 €
143 m²
5 pièces
parkingbalcon/terrasse

Nos partenaires locaux
Niché au 7ème et dernier étage d'une copropriété sécurisée, nous vous proposons ce sublime appartement type 5 traversant de 142,69 M2 Lc.
Entièrement rénové, cet appartement familial offre de beaux espaces lumineux et aériens.
Poussez sa porte et découvrez un joli hall d'entrée déservant un salon-séjour de 42 m2 et une cuisine attenante aménagée et équipée.
L'espace de vie est prolongé par une véranda de 15 m2 sur une terrasse à ciel ouvert d'environ 50m2 accessoirisé d'un coin barbecue, idéal pour recevoir famille et amis.
La partie nuit est, quant à elle, composée d'une suite parentale avec dressing et salle d'eau privative, de trois chambres donnant toutes accès à un balcon et sa vue dégagée, d'une seconde salle d'eau, d'un dressing et d'un Wc indépendant.
Les belles prestations de cet appartement, parquet massif, hauteur sous plafond, double vitrage, climatisation ne pourront que vous ravir. Celles-ci sont complétées par une cave en sous-sol et éventuellement une double place de parking (en option).
Au sein d'une petite perpendiculaire au Prado 1, cette résidence avec ascenseur est à proximité de toutes commodités, écoles, commerces ( Monoprix - Bricorama - Centre commercial du Prado) et des transports en commun (Bus et Métro).
Les charges mensuelles de 635 euros comprennent l'eau chaude et froide, le chauffage collectif, le gardien et le jardinier.
Vous êtes intéressé par ce bien, n'attendez plus et contactez Loic Pilate au [Coordonnées masquées] ou sur [Coordonnées masquées]
Voir plus

Référence: 3786
Bien en copropriété. Nombre de lots : 196.
Honoraires à la charge du vendeur.
Barème des honoraires
DPE
A
B
C
D
E
F
G
GES
A
B
C
D
E
F
G

Prêt immobilier

Vous souhaitez connaître votre capacité d’emprunt et trouver le meilleur crédit immobilier ?
Réaliser une simulation gratuite

Appartement à MARSEILLE-8E
Appartement à MARSEILLE-8E
Appartement à MARSEILLE-8E
Appartement à MARSEILLE-8E
Appartement à MARSEILLE-8E
Appartement à MARSEILLE-8E
Appartement à MARSEILLE-8E
Appartement à MARSEILLE-8E
Appartement à MARSEILLE-8E
Appartement à MARSEILLE-8E
Appartement à MARSEILLE-8E
Appartement à MARSEILLE-8E
Appartement à MARSEILLE-8E
Appartement à MARSEILLE-8E
Appartement à MARSEILLE-8E
Appartement à MARSEILLE-8E
Appartement à MARSEILLE-8E
Ce site est protégé par reCAPTCHA la Politique de confidentialité et les Conditions d’utilisation de Google s’appliquent.
Obtenir un prêt immobilier au meilleur taux ?

En poursuivant votre navigation sans modifier vos paramètres, vous acceptez l'utilisation de cookies susceptibles de réaliser des statistiques de visite. Cliquez ici pour plus d'informations